Blog Home > The Top 10 House Plan Trends of 2024 (and 5 More for 2025)

The Houseplans Blog

The Top 10 House Plan Trends of 2024 (and 5 More for 2025)

See what's hot and what's next with home design

Hero Image
Aurora Zeledon

December 13, 2024

Livabl Brand

Can't find what you're looking for?

Give us a call below or reach out and we’ll make sure to be in contact!

Send Us a Message

What were the top design trends of 2024? And what's going to be popular in 2025?

Let's take a look back, and then make some predictions.

Some of these won't surprise you. After all, open layouts and farmhouse style have been red-hot for quite awhile (and for good reason).

Others are less expected, like duplex plans and tiny homes between 500-1,000 square feet. Read on to find out and get inspired.

Explore our most popular house plans.

1. Modern Farmhouse at the Top (Yes, Still)

Bestselling Farmhouse Plan Bestselling Farmhouse Plan - Front Exterior

Bestselling Farmhouse Plan Bestselling Farmhouse Plan - Main Level

Don't listen to reports that modern farmhouse is out. It definitely isn't, especially if you're looking at sales data. Farmhouse style (including modern farmhouse) accounted for an incredible 32% of all plans sold through Houseplans and our related sites, far ahead of other styles. That's actually an increase from 2023, when farmhouses made up 30% of sales.

Why is farmhouse still the top home design style?

We speculate that it's because of its tremendous versatility. You can size a farmhouse down and it still looks great. Simple farmhouse plans look just as fresh, if not more so, than larger designs.

Also, farmhouse plans often showcase spacious wraparound porches that create abundant outdoor living space and inviting curb appeal.

Find your perfect farmhouse plan.

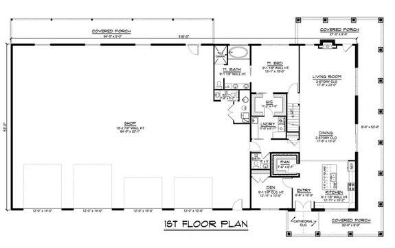
2. Barndominium Bonanza

Barndominium Plan with Workshop Barndominium Plan with Workshop - Front Exterior

Barndominium Plan with Workshop Barndominium Plan with Workshop - Main Level

Barndominium style is moving up the ranks, ascending to the fourth spot on our most popular home design style list (up from seventh place in 2023).

Why are barndos capturing people's attention? First thing to note is that these often aren't the metal buildings or converted barns that you might think of with barndominiums. Sure, some of them are available with metal framing. But more often what's selling are rustic, farmhouse-y styles that simply look like they belong in the country.

Think oversized garages with room for RVs or equipment. Super-simple footprints with just four corners (which your builder will love). Workshops!

In other words, these are some seriously functional home designs.

Browse barndominium plans.

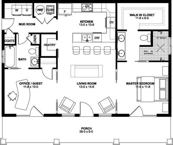
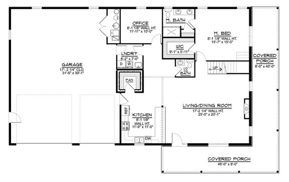
3. The Non-Negotiable Office

1,402 Square Feet with 3 Beds and a Pocket Office 1,402 Square Feet with 3 Beds and a Pocket Office - Laundry Room

Home offices are still going strong, with 32% of all single-family plans that sold in 2024 offering one (though this actually is a decrease from 2023, when it was 36%). Sometimes these are in plans that are smaller than you'd expect. For example, this small farmhouse plan gives you a spacious laundry room with a nice corner in which to put a desk.

Simple Colonial House Plan with 3 Beds and an Office Simple Colonial House Plan with 3 Beds - Office

Other small house plans still provide a dedicated office, but they just keep it small. Here's a simple three-bedroom plan with a petite office in a quiet place at the front of the home. A window provides light and a view while you're in meetings.

Need an office? Explore these home designs.

4. Wraparound Porches

Barndominium Plan with Wraparound Porch Barndominium Plan with Wraparound Porch - Front Exterior

Barndominium Plan with Wraparound Porch Barndominium Plan with Wraparound Porch - Main Level

Speaking of barndominium and farmhouse plans, some of today's most exciting styles showcase wraparound porches. That is, the porch goes around one or more corners of the home to provide you multiple angles and places for porch-sitting.

Wraparound porches create fantastic curb appeal. This popular barndominium plan gives you a massive porch that opens to the great room and also the dining area. Imagine relaxing out there with a cup of coffee!

Want a plan with a wraparound porch? Here are a bunch.

5. Smallish House Plans are Hot

Two-Bedroom House Plan with an Office Two-Bedroom House Plan with an Office - Front Exterior

Two-Bedroom House Plan with an Office Two-Bedroom House Plan with an Office - Main Level

Plans between 1,000 and 1,499 square feet gained the most as a percentage of plan sales in 2024, making up 23% of the total. That's up from 22% in 2023.

Meanwhile, plans between 1,500-1,999 square feet were the most popular size range in 2024, making up about 25% of all plan sales (an increase of about three-quarters of a percentage point).

6. Tiny (but Not Too Tiny)

988 Square Feet with an Open Layout 988 Square Feet with an Open Layout - Front Exterior

988 Square Feet with an Open Layout 988 Square Feet with an Open Layout - Main Level

Plans between 500 and 999 square feet showed a slight increase from 2023. Would you consider that tiny? (It depends on where you're building, as some areas have size limits.) These petite plans made up 10% of total plan sales in 2024.

At the same time, plans with less than 500 square feet (undeniably tiny) actually declined very slightly, making up only about 1% of the total. Note that this includes garages, accessory structures, and other plan types.

The takeaway: 500 to 1,000 square feet is the sweet spot for a little plan.

Take a look at tiny house plans.

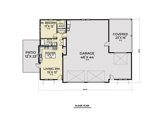
7. Is it an ADU or a Garage? Yes.

Garage Plan with Apartment on One Level Garage Plan with Apartment on One Level - Front Exterior

Garage Plan with Apartment on One Level Garage Plan with Apartment on One Level - Main Level

If you're building an accessory dwelling unit on your property and you have the space, why not add some extra parking and storage?

Some of today's hottest tiny plans are those with large garages attached, like this gorgeous garage plan with an in-law apartment all on one level. It's a win-win: your guests or family members (or perhaps even tenants, depending on what your area allows) get comfortable, independent living spaces. You also get tons of space for parking a car (some of these can even accommodate an RV or storing equipment.

Need an ADU? Explore plans here.

8. Metal Roofs

Three-Bedroom House Plan with a Carport Three-Bedroom House Plan with a Carport - Front Exterior

Three-Bedroom House Plan with a Carport Three-Bedroom House Plan with a Carport - Main Level

This goes hand-in-hand with the continued popularity of farmhouse style. A metal roof adds a sleek, contemporary vibe to a rustic home.

If you don't want to spend the extra on a full metal roof (since they can be durable but expensive), consider a design with a metal roof accent (like this new one) to get a similar visual effect.

Browse plans with metal roofs.

9. Super-Simple Footprints

1,416 Square Feet with a Very Simple Layout 1,416 Square Feet with a Very Simple Layout - Front Exterior

1,416 Square Feet with a Very Simple Layout 1,416 Square Feet with a Very Simple Layout - Main Level

Easy does it with today's popular plans. Affordable house plans keep things basic by avoiding excess bump-outs and other complications, often paring the footprint down to just four corners.

And with today's streamlined open layouts, that doesn't have to mean sacrificing style. A simple house plan feels fresh and contemporary.

Search simple house plans.

10. Room for an RV

Barndominium House Plan with RV Garage Barndominium House Plan with RV Garage - Front Exterior

Barndominium House Plan with RV Garage Barndominium House Plan with RV Garage - Main Level

With the rise of barndominium style, we've been seeing quite a few plans with designated RV garages. It makes sense - if you have the space on your lot, and you love your recreational vehicle, you may as well keep it dry and covered in a dedicated area. Of course, these large storage spots can also be used to house sports equipment, a workshop, holiday decorations - or all of the above.

Not sure if you want such a big garage as part of your house? Detached garage plans with RV storage present another option. Some of them also have living space for guests.

Get space for your RV with these house plans.

And Now: 5 Predictions for 2025

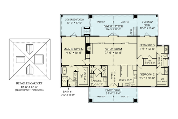
1. More Multi-Use Layouts

Ranch House Plan with a Flex Suite for In-Laws Ranch House Plan with a Flex Suite for In-Laws - Front Exterior

Ranch House Plan with a Flex Suite for In-Laws Ranch House Plan with a Flex Suite for In-Laws - Main Level

We've seen the rise of the shouse, or shop-house. That's a good example of design that challenges our ideas of what a house is, in this case by blurring the lines between a home and a work area.

In 2025, will the lines become even fuzzier? Will we see more layouts with in-law suites or apartments? It makes sense. Today's homebuyers often don't fit neatly into the imagined norm of two adults and two children. That requires a rethinking (which we've already begun to see, especially with work-from-home becoming ubiquitous in recent years) that results in greater flexibility of house plans.

This ranch plan with an accessible suite for guests or relatives is a good example. Designed for accessibility, the guest suite can accommodate a family member with limited mobility. Of course, this room would also make a great office or hobby space. And don't miss the primary suite's incredible spa-like shower.

Get inspired with plans with in-law suites.

2. Wet Rooms

Modern Farmhouse Plan with a Wet Room Modern Farmhouse Plan with a Wet Room - Primary Bathroom

This one's cheating a bit, because there's good evidence that it's already a trend. In fact, the 2024 U.S. Houzz Bathroom Trends Study states that "Among upgraded bathrooms this year, 13% are wet rooms."

But perhaps 2025 will see it become even more widespread in house plans. To back up, what's a wet room? It's when the tub is actually inside the shower, which is usually super-sized. Here's a good primer on wet rooms, and the advantages versus disadvantages.

See house plans with wet rooms.

3. Mountain Contemporary

Contemporary House Plan with Walkout Basement Contemporary House Plan with Walkout Basement - Rear Exterior

Luxury Modern House Plan for a Sloping Lot Luxury Modern House Plan for a Sloping Lot - Rear Exterior

Here's a look that we're starting to see gain popularity. These striking designs bring notably modern (but somewhat rustic) style to a hillside lot. Ideal for a location with a view, they typically showcase large windows and two levels of outdoor living (a porch for the main floor, with a patio below).

Love the look? See more of them here.

4. Rooftop Decks

Private Roof Deck for the Main Suite Private Roof Deck for the Main Suite - Rear Exterior

Modern House Plan with Roof Deck Modern House Plan with Roof Deck - Front Exterior

Contemporary Curb Appeal Contemporary Curb Appeal - Front Exterior

Bold Modern Design for a Small Lot Bold Modern Design for a Small Lot - Front Exterior

This one's related to the last trend. If you're building on a smallish lot but you really want impressive outdoor living, a rooftop deck can be an elegant solution. Note how most of these designs lean modern.

Discover plans with rooftop decks.

5. Duplex Designs On the Rise

One-Story Duplex House Plan One-Story Duplex House Plan - Front Exterior

One-Story Duplex House Plan One-Story Duplex House Plan - Main Level

Although duplex house plans only make up about 2% of overall sales, that's an increase from 1.5% in 2023. The most popular duplex plan by far (and the second-most-popular design of the year!) is this farmhouse-style duplex plan with three bedrooms on each side.

It makes sense that duplexes are having a moment. You can live in one unit while you rent out the other (where allowed). Or house extended family where they can remain close but everyone gets some privacy. And since land is expensive, this is a more efficient use of it.

Given the need for missing middle housing, we expect to see duplex plans gain even more momentum in 2025.

Discover duplex plans.

Read more blogs about design trends

Get Our Newsletter

Be the first to see new plans, special offers, and more.

By signing up for our newsletter, you agree to our Terms & Conditions and Privacy Policy, for an account

Blog Subscribe Icon