Don't lose your saved plans! 
Create an account to access your saves whenever you want. See our Terms & Conditions and Privacy Policy.
OR

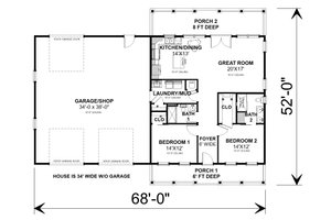
Farmhouse House Plan 44-262 1292 Sq Ft, 2 Bed, 2 Bath, 1 Floor, 3 Garage

Key Specs
  • 2
    Beds
  • 2
    Baths
  • 1
    Floors
  • 3
    Garages
  • 1292
    Square Feet
This charming bardominium boasts 1,292 square feet of living space, complete with 2 bedrooms, 2 bathrooms, and an expansive open floor layout. The well-appointed kitchen is laid out in an L-shape and features an island fitted with a snack bar and plenty of storage. French doors lead out from the Great Room to the 8’ deep rear porch. Bedroom 2 features a private bathroom and a large walk-in closet while bedroom 1 has easy access to the nearby bathroom in the hall. Also, there is a large laundry room with an extra storage closet. Finishing off this marvelous home, there is a larger-than-average garage boasting two garage doors at the front and one at the back.

Questions on this plan?

New to the process and looking for some help to kick things off? Let us know a bit about your plans and we’ll be happy to help.

Budget & Customization Tools

Modify icon
Customize this Plan
Tell us about your desired changes and we can prepare an estimate.
Cost to Build icon
Cost to Build Report
A personalized estimate based on your location, plan, & materials.
Cost to Build icon
Residential Construction Guide
This downloadable, 26-page guide is full of diagrams and details about plumbing, electrical, and more.

Full specs & Features

Basic Features

Bedrooms: 2
Baths: 2
Stories: 1
Garages: 3

Dimension

Depth: 52'
Height: 25'
Width: 68'

Area

Total: 1292 sq/ft
Garage: 1292 sq/ft
Main Floor: 1292 sq/ft
Porch: 476 sq/ft
* Total Square Footage typically only includes conditioned space and does not include garages, porches, bonus rooms, or decks.

Ceiling

Garage Ceiling: 12'
Main Ceiling: 10'

Roof

Primary Pitch: 10/12
Roof Framing: Truss
Roof Type: Standing Seam Metal
Secondary Pitch: 6/12

Exterior Wall Framing

Exterior Wall Finish: Board and Batten
Framing: 2X6 Exterior Walls

Bedroom Features

Main Floor Bedrooms
Walk In Closet

Kitchen Features

Eating Bar
Kitchen Island

Additional Room Features

Great Room Living Room
Mud Room

Garage Features

Front Entry Garage
Oversized Garage
Rear Entry Garage

Outdoor Spaces

Covered Front Porch
Covered Rear Porch

Energy Efficient Features

Energy Efficient Design

What's Included

Plans are drawn to scale and include:
  • Foundation Plan(s): This page shows all necessary notations and dimensions including footings, support columns, walls, and excavated/unexcavated areas.
  • Floor Plan(s): Detailed plans (including 3D views) for each level showing room dimensions, wall partitions, windows and doors, fixture locations, and ceiling treatments.
  • Exterior Elevations: Views of the home (including 3D images) from all four sides showing exterior materials, roof slope, ridge heights, siding and trim notes.
  • Overhead Roof Plan(s): A view of the home from above showing roof pitch, peaks, valleys, and other details.
  • Cross Section(s): Available for most plans. A slice of the home from roof to foundation, showing relationships between floors, roof, and foundation.
  • Electrical Plan(s): Shows the location of lights, receptacles, switches, etc. Wiring sizes not included.
  • Detail Sheet(s): Details sheets for items like walls, chimneys, and fireplaces, including abbreviations, span tables.
  • Construction Notes / Detail(s): Special notes pertaining to the build of the residence, assembly information, any specific code notes.
  • Specification(s): Recommendations from the designer on particular systems, products, or appliances to be used in the construction of the home.

Note: Please allow 2-5 business days if you have selected alternate options like wall framing, foundation, or reversing the plans.

Not included: engineering, HVAC, plumbing sizes, wiring sizes.


FAQs

Are designs on Houseplans ready to submit to my building department for permitting?

It depends on where you're building. Our plans contain enough information for a professional builder to construct your home, but your local government may require additional information before permitting. We strongly advise that you talk with your builder before you get started. If you are building for yourself, we recommend visiting your local building department to start your diligence. Read more here.

Can I make changes to a plan?

Absolutely! Our modification service allows you to customize almost anything - whether it's adding an extra garage bay, adjusting square footage, changing the roof pitch, or more, the plan modification service is a great value and can be completed quickly. Additionally, if you purchase an electronic plan set (PDF or CAD), you may have the option to make changes locally. CAD files offer the most flexibility for custom edits. Just let us know what you're thinking, and we’ll provide an estimate and timeframe to get started. Learn more here.

How much does a house cost to build?

Find out! Build costs vary based on the size of the home, materials used, and local rates for goods and labor. Our Cost to Build report is a great way to get some basic costs dialed in before you order your plans. Just plug in your postal code, select your desired construction quality, and we'll calculate for you.

Learn more about Cost to Build reports here.

Can I trust Houseplans?

Founded in 2004, Houseplans works with hundreds of architects and designers to offer their plans at a fraction of the price of custom design. Houseplans has an "Excellent" rating on TrustPilot.

Read more about us here.

Does Houseplans offer live support?

Yes, Houseplans has a dedicated team of house plan advisors with decades of experience between them. You can reach them by calling, emailing, filling out a form on the page of a plan that you like, or going to the Contact Us page. We're available to talk every day, even on weekends.

Builder Advantage Home

Builder Advantage Program

Are you a Pro Builder? Join the club, save 5% on your first order, get exclusive discounts, and more.

Learn More

You may also like

Save Plan
Farmhouse

Plan 126-236

$1195.00

beds2

bd

baths2

ba

stories1

story

square feet988

sq ft

Save Plan
Country

Plan 427-1

$897.60

beds3

bd

baths2.5

ba

stories2

stories

square feet1908

sq ft

Save Plan
Barndominium

Plan 455-251

$1499.00

beds4

bd

baths2

ba

stories1

story

square feet1982

sq ft

Recently viewed plans

Farmhouse Exterior - Front Elevation Plan #44-262
Save Plan

Plan 44-262

$990.00

beds2

bd

baths2

ba

stories1

story

square feet1292

sq ft