Don't lose your saved plans! 
Create an account to access your saves whenever you want. See our Terms & Conditions and Privacy Policy.
OR

Cottage House Plan 430-40 1300 Sq Ft, 3 Bed, 2 Bath, 1 Floor, 2 Garage

Key Specs
  • 3
    Beds
  • 2
    Baths
  • 1
    Floors
  • 2
    Garages
  • 1300
    Square Feet
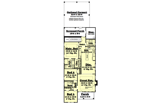
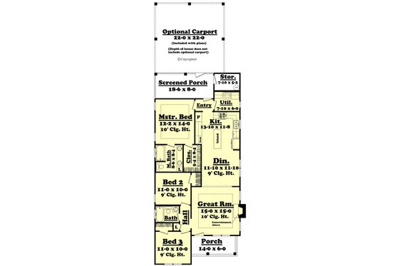
This attractive Cottage style plan features 1300 square feet of fine living with a split plan, large open spaces, kitchen island, fireplace, oversized kitchen, huge master bath and closet, screened porch, and optional garage which allows for a rear or side entry. The exterior is just as elegant with its many historical details and wonderful charm. With all these features, this plan is ready to become your new home.

Questions on this plan?

New to the process and looking for some help to kick things off? Let us know a bit about your plans and we’ll be happy to help.

Budget & Customization Tools

Modify icon
Customize this Plan
Tell us about your desired changes and we can prepare an estimate.
Cost to Build icon
Cost to Build Report
A personalized estimate based on your location, plan, & materials.
Cost to Build icon
Residential Construction Guide
This downloadable, 26-page guide is full of diagrams and details about plumbing, electrical, and more.

Full specs & Features

Basic Features

Bedrooms: 3
Baths: 2
Stories: 1
Garages: 2

Dimension

Depth: 60' 2"
Height: 22'
Width: 28' 8"

Area

Total: 1300 sq/ft
First Floor: 1300 sq/ft height 9'
Garage: 484 sq/ft
* Total Square Footage typically only includes conditioned space and does not include garages, porches, bonus rooms, or decks.

Ceiling

Garage Ceiling: 9'
Main Ceiling: 9'

Roof

Primary Pitch: 10:12
Roof Framing: stick
Roof Load: 40
Roof Type: gables
Secondary Pitch: 4:12

Exterior Wall Framing

Exterior Wall Finish: Siding/ Brick
Framing: 2"x4"
Insulation: 13

Bedroom Features

Main Floor Bedrooms
Main Floor Master Bedroom
Walk In Closet

Kitchen Features

Breakfast Nook
Kitchen Island

Additional Room Features

Great Room Living Room
Main Floor Laundry
Storage Area
Sunroom

Garage Features

Carport Porte Cochere
Rear Entry Garage

Lot Characteristics

Suited For Narrow Lot
Suited For Sloping Lot
Suited For View Lot
Zero Lot Lines

Outdoor Spaces

Covered Front Porch
Covered Rear Porch
Screened Porch

More

Empty Nester
Suited For Vacation Home
Wheelchair Adaptable

Code Compliance

Irc 2003

Structural Information Provided

Foundation Drawing
Structural 1st Floor Framing

Rooms

Bedroom 2:

width 11' x depth 10'

Bedroom 3:

width 11' x depth 10'

Covered Front Porch:

84 sq/ft width 14' x depth 6'

Dining Area:

width 11' 10" x depth 11' 10"

Great Room:

width 15' x depth 15'

Kitchen:

width 13' 10" x depth 11' 8"

Master Closet:

width 5' 4" x depth 8' 4"

Master Bath:

width 8' 6" x depth 8' 4"

Master Bedroom:

width 12' 2" x depth 14'

Screened Porch:

148 sq/ft width 18' 6" x depth 8'

Storage:

47 sq/ft width 7' 10" x depth 5' 2"

Utility:

width 7' 10" x depth 6'

What's Included

Plans are typically drawn to ¼” scale and include:
  • Cover Sheet: Drawing index, designer contact info, plan name/number, legal disclaimers.
  • Foundation Plan(s): This page shows all necessary notations and dimensions including footings, support columns, walls, and excavated/unexcavated areas.
  • Floor Plan(s): Detailed plans for each level showing room dimensions, wall partitions, windows and doors, fixture locations, and ceiling treatments.
  • Exterior Elevations: Views of the home from all four sides showing exterior materials, roof slope, ridge heights, siding and trim notes.
  • Interior Elevations: Detailed drawings of kitchen cabinet elevations and other elements like built-ins.
  • Overhead Roof Plan(s): A view of the home from above showing roof pitch, peaks, valleys, and other details.
  • Cross Section(s): A slice of the home from roof to foundation, showing relationships between floors, roof, and foundation.
  • Electrical Plan(s): Shows the location of lights, receptacles, switches, etc. Some plans that do not include an electrical plan may have it available for an additional fee.
  • Construction Notes and Detail(s): Shows basic parts and assemblies recommended for the home so the builder can see how things come together.
  • Stair Detail(s): Drawings showing stair details.

*Material List Note: When a material list is ordered, a list of the materials needed to build this plan will be sent. Please note that the materials list will conform to the standard plan (slab or crawlspace only). Additional options such as a Basement or 2x6 Wall conversion will not be reflected in the material list. Please call for details.


Note about 2x6 Wall Option: If choosing the 2x6 wall option, the added stud depth will be applied towards the interior of the walls.

FAQs

Are designs on Houseplans ready to submit to my building department for permitting?

It depends on where you're building. Our plans contain enough information for a professional builder to construct your home, but your local government may require additional information before permitting. We strongly advise that you talk with your builder before you get started. If you are building for yourself, we recommend visiting your local building department to start your diligence. Read more here.

Can I make changes to a plan?

Absolutely! Our modification service allows you to customize almost anything - whether it's adding an extra garage bay, adjusting square footage, changing the roof pitch, or more, the plan modification service is a great value and can be completed quickly. Additionally, if you purchase an electronic plan set (PDF or CAD), you may have the option to make changes locally. CAD files offer the most flexibility for custom edits. Just let us know what you're thinking, and we’ll provide an estimate and timeframe to get started. Learn more here.

How much does a house cost to build?

Find out! Build costs vary based on the size of the home, materials used, and local rates for goods and labor. Our Cost to Build report is a great way to get some basic costs dialed in before you order your plans. Just plug in your postal code, select your desired construction quality, and we'll calculate for you.

Learn more about Cost to Build reports here.

Can I trust Houseplans?

Founded in 2004, Houseplans works with hundreds of architects and designers to offer their plans at a fraction of the price of custom design. Houseplans has an "Excellent" rating on TrustPilot.

Read more about us here.

Does Houseplans offer live support?

Yes, Houseplans has a dedicated team of house plan advisors with decades of experience between them. You can reach them by calling, emailing, filling out a form on the page of a plan that you like, or going to the Contact Us page. We're available to talk every day, even on weekends.

Builder Advantage Home

Builder Advantage Program

Are you a Pro Builder? Join the club, save 5% on your first order, get exclusive discounts, and more.

Learn More

You may also like

Save Plan
Cottage

Plan 515-56

$650.00

beds2

bd

baths2

ba

stories1

story

square feet838

sq ft

Save Plan
Ranch

Plan 44-274

$1120.00

beds3

bd

baths2

ba

stories1

story

square feet1500

sq ft

Save Plan
Country

Plan 427-1

$897.60

beds3

bd

baths2.5

ba

stories2

stories

square feet1908

sq ft

Recently viewed plans

Cottage Exterior - Front Elevation Plan #430-40
Save Plan

Plan 430-40

$1345.00

beds3

bd

baths2

ba

stories1

story

square feet1300

sq ft

Craftsman Exterior - Front Elevation Plan #21-274
Save Plan

Plan 21-274

$1300.00

beds3

bd

baths2

ba

stories1

story

square feet1924

sq ft