Traditional Style House Plan - 3 Beds 2.5 Baths 1710 Sq/Ft Plan #124-877 - Houseplans.com
Search
REGISTER LOGIN SAVED No Saved Plans CART  Cart Empty
Don't lose your saved plans! Create an account to access your saves whenever you want. See our Terms & Conditions and Privacy Policy.
OR
Plan 124-877
Photographs may show modified designs.
Home  >  Style  >  Traditional

Traditional House Plan 124-877

Key Specs


Plan Sq Ft

1710
sq ft

Plan Bedrooms

3
Beds

Plan Bathrooms

2.5
Baths

Plan Floors

2
Floors

Plan Garages

2
Garages

Questions? Get Personalized Help
Select Plan Set Options
What's included?
$300.00
Additional Construction Sets$55.00/each

Additional hard copies of the plan (can be ordered at the time of purchase and within 90 days of the purchase date).

$825.00
$165.00
$295.00
$39.00
$165.00
Subtotal
$1025.00
Best Price Guaranteed

Or order by phone: 1-800-913-2350
Questions? Get Personalized Help
 

 
Hours:
Ready for Your Call 7 Days a Week
Every Day 7 am - 8:30 pm Eastern

See Terms & Conditions and Privacy Policy.

Thanks for your question.

We will be in touch shortly.

Wow!
Cost to Build Reports
$1.99 with Code
CTB2026 (Limit 1)
Our Cost to Build Report gives you a personalized estimate for building your home, based on your location, plan, and materials.

Residential Construction Guide

Learn Building Basics

This downloadable, 26-page guide is full of diagrams and details about plumbing, electrical, and more.

Key Specs


Plan Sq Ft

1710
sq ft

Plan Bedrooms

3
Beds

Plan Bathrooms

2.5
Baths

Plan Floors

2
Floors

Plan Garages

2
Garages

Plan Description


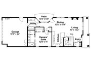
A railed porch spans the front of this large contemporary townhouse. Bold stuccoed columns support an arched opening that frames the entry. Inside, the foyer opens out into a bright and spacious area that comprises the living room, dining area and kitchen. The owners' suite it at the rear, while two bedrooms, a loft, and a third bathroom are upstairs.

This plan can be customized!

Tell us about your desired changes so we can prepare an estimate for the design service. Click the button to submit your request for pricing, or call 1-800-913-2350.

Floor Plans


Floor Plan - Main Floor

Reverse
houseplans LOGO

BUILDER Advantage Program

PRO BUILDERS

Join the club and save 5% on your first order.
PLUS download exclusive discounts and more.

LEARN MORE

Floor Plan - Upper Floor

Reverse

Floor Plan - Other Floor

Reverse

Full Specs & Features


Basic Features

Bedrooms : 3
Baths : 2.5
Stories: 2
Garages: 2

Dimension

Depth : 68'
Height : 28'
Width : 23'

Area

Total : 1710 sq/ft
Garage : 444 sq/ft
Main Floor : 951 sq/ft
Upper Floor : 759 sq/ft
* Total Square Footage typically only includes conditioned space and does not include garages, porches, bonus rooms, or decks.

Ceiling

Main Ceiling : 9'

Roof

Primary Pitch : 8:12
Roof Framing : Truss
Roof Load : 20

Exterior Wall Framing

Exterior Wall Finish : Stucco
Framing : 2x6

Bedroom Features

Main Floor Master Bedroom
Split Bedrooms
Upstairs Bedrooms
Walk In Closet

Kitchen Features

Breakfast Nook
Eating Bar

Additional Room Features

Great Room Living Room
Main Floor Laundry
Mud Room

Garage Features

Rear Entry Garage

Lot Characteristics

Suited For Narrow Lot

Outdoor Spaces

Covered Front Porch
Grill Deck Sundeck

More

Empty Nester
Suited For Vacation Home

What's included in this plan set


See a sample plan set
Please note, if ordering a PDF Print Set, it is not-modifiable. The CAD set is best for making local modifications. The "5 set + PDF" combo contains a non-modifiable PDF Print Set.

Each plan set is drawn at 1/4"=1' scale and includes the following drawings:
  • Artist's Rendering: An artist's drawing of the home, usually viewed from the front, and general construction notes.
  • Elevations: Shows the front, sides, and rear, including exterior materials, trim sizes, roof pitches, etc.
  • Main Floor Plan: Shows placement and dimensions of walls, doors, & windows. Includes the location of appliances, plumbing fixtures, beams, ceiling heights, etc.
  • Second Floor Plan (if any): Shows the second floor in the same detail as the main floor. Includes second floor framing and details.
  • Foundation Plan: Shows the location of all concrete footings, floor beams, first floor framing, and foundation details. If there is a basement, a basement plan is included which shows all basement details. Foundation types vary; please call to confirm the foundation type of the plan you are interested in.
  • Floor Framing Plan (if any): Shows location and spacing of floor joists and supporting walls or beams.
  • Roof Framing Plan: Shows roof outlines, conventional framing/trusses, beams, roof framing details, etc. Specific details such as fireplaces, stairways, decks, etc. Details are drawn at 1/2" = 1' scale, and appear as needed throughout the prints.
  • Section: Shows a cross-section of the home. Shows support members, exterior and interior materials, insulation, and foundation.
  • Electrical Plan: A schematic layout of all lighting, switches and electrical outlets.
* See important information before purchasing

Pricing


Plan Options

PDF Print Set

$1025.00
A non-modifiable, print only PDF file

5 Copy and PDF Set

$1250.00
5 printed plan sets mailed to you plus PDF plan sets are best for fast electronic delivery and inexpensive local printing.

PDF Master Set

$2100.00
An unlocked, modifiable PDF file

CAD Set

$2300.00
For use by design professionals to make substantial changes to your house plan and inexpensive local printing.

Master Builder Package

$2525.00
Includes CAD Set, PDF Masters and Unlimited Build License

Study Set

$825.00
One electronic set for bidding purposes only. Not a legal building set for construction.

Foundation Options

Crawlspace

$0.00
Ideal for semi-sloped or level lot, home can be built off of grade, typically 18” - 48”.

Slab

$350.00
Ideal for level lot, single layer concrete poured directly on grade.

Basement

$460.00
Ideal for level lot, lower level of home partially or fully underground.

*Options with a fee may take time to prepare. Please call to confirm.

Framing Options

Wood 2x6

$0.00
Wood 2x6 Exterior Walls

Wood 2x4

$350.00
Wood 2x4 Exterior Walls

*Options with a fee may take time to prepare. Please call to confirm.

Additional Options

Right-Reading Reverse

$300.00
Choose this option to reverse your plans and to have the text and dimensions readable.

Additional Construction Sets

$55.00
Additional hard copies of the plan (can be ordered at the time of purchase and within 90 days of the purchase date).

Additional Use License

$825.00
Allows you to build one more home for each additional license purchased.

Audio Video Design

$165.00
Receive an overlay sheet with suggested placement of audio and video components.

Comprehensive Material List

$295.00
A complete list of building supplies needed to construct the infrastructure of your new house, plus an overlay of materials shown directly on your PDF (foundation to rooftop with interior and exterior materials), and a detailed, itemized door and window schedule showing all sizes and types. Please allow 5-7 Business Days for completion. Note, the Comprehensive list is only available with a PDF purchase. The Comprehensive list can be ordered no matter what additional plan options you have selected.

Construction Guide

$39.00
Educate yourself about basic building ideas with these four detailed diagrams that discuss electrical, plumbing, mechanical, and structural topics.

Lighting Design

$165.00
Receive an overlay sheet with suggested placement of lighting fixtures.

*Options with a fee may take time to prepare. Please call to confirm.

Unless you buy an “unlimited” plan set or a multi-use license you may only build one home from a set of plans. Please call to verify if you intend to build more than once. Plan licenses are non-transferable and cannot be resold.

We offer a 90% credit when you upgrade from a set, that is not for construction, to a 5-Copy set (or greater).

Browse Similar Plans

Need help? Let our friendly experts help you find the perfect plan!

Contact us now for a free consultation.

Coupon Codes