Don't lose your saved plans! 
Create an account to access your saves whenever you want. See our Terms & Conditions and Privacy Policy.
OR

Craftsman House Plan 21-312 2212 Sq Ft, 4 Bed, 2.5 Bath, 1 Floor, 2 Garage

Key Specs
  • 4
    Beds
  • 2.5
    Baths
  • 1
    Floors
  • 2
    Garages
  • 2212
    Square Feet
This country design features all the things that make a house a home. Four over-sized bedrooms are complimented by large walk-in closets, and the flex space provides a perfect spot for that home office, playroom, or dining room. A breakfast area, and raised bar all provide spaces for those family meals with close access to the fully equipped kitchen. The great room includes gas logs, a coffered ceiling, and beautiful views to the covered rear porch beyond. The master bedroom also features trayed ceilings and the master bathroom leaves nothing to be desired. The expansive garage provides plenty of room for oversized trucks and SUV's and also includes a large storage area. The bonus room provides space for future expansion or for additional storage.

Questions on this plan?

New to the process and looking for some help to kick things off? Let us know a bit about your plans and we’ll be happy to help.

Budget & Customization Tools

Modify icon
Customize this Plan
Tell us about your desired changes and we can prepare an estimate.
Cost to Build icon
Cost to Build Report
A personalized estimate based on your location, plan, & materials.
Cost to Build icon
Residential Construction Guide
This downloadable, 26-page guide is full of diagrams and details about plumbing, electrical, and more.

Full specs & Features

Basic Features

Bedrooms: 4
Baths: 2.5
Stories: 1
Garages: 2

Dimension

Depth: 63'
Height: 28' 3"
Width: 70' 6"

Area

Total: 2212 sq/ft
Bonus: 436 sq/ft
First Floor: 2212 sq/ft height 9'
Garage: 803 sq/ft
* Total Square Footage typically only includes conditioned space and does not include garages, porches, bonus rooms, or decks.

Ceiling

Bonus Ceiling: 8'
Main Ceiling: 9'

Roof

Primary Pitch: 12:12
Roof Framing: stick
Roof Load: 30 lbs psf
Roof Type: Hip/Gable
Secondary Pitch: 4:12

Exterior Wall Framing

Exterior Wall Finish: stone/siding
Framing: 2"x4"

Bedroom Features

Split Bedrooms
Walk In Closet

Kitchen Features

Breakfast Nook
Eating Bar
Walk In Pantry Cabinet Pantry

Additional Room Features

Den Office Study Computer
Great Room Living Room
Play Flex Room
Storage Area
Unfinished Future Space

Outdoor Spaces

Covered Front Porch
Covered Rear Porch

Rooms

Bedroom 2:

121 sq/ft width 11' x depth 11'

Bedroom 3:

121 sq/ft width 11' x depth 11'

Bedroom 4:

117 sq/ft width 10' 8" x depth 11'

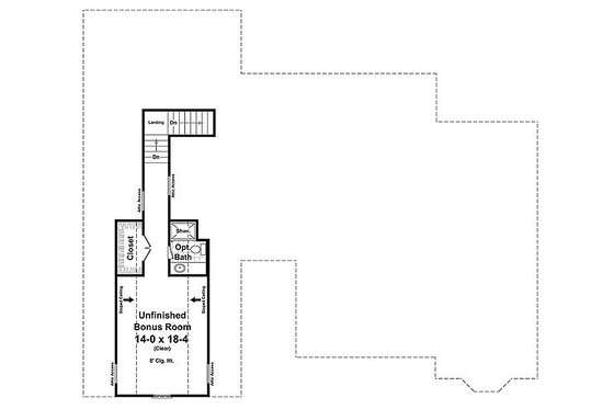
Bonus Room - Unfinished:

256 sq/ft width 14' x depth 18' 4"

Breakfast:

152 sq/ft width 12' x depth 12' 8"

Foyer:

77 sq/ft width 6' 2" x depth 12' 6"

Garage:

639 sq/ft width 23' 10" x depth 26' 10"

Great Room:

270 sq/ft width 18' x depth 15'

Kitchen:

188 sq/ft width 12' x depth 15' 8"

Master Bathroom:

141 sq/ft width 8' 10" x depth 16'

Master Bedroom:

220 sq/ft width 14' 8" x depth 15'

Master Closet:

47 sq/ft width 8' 10" x depth 5' 4"

Porch - Front:

173 sq/ft width 21' 8" x depth 8'

Porch - Rear:

135 sq/ft width 18' x depth 7' 6"

What's Included

Plans are typically drawn to ¼” scale or larger and include:
  • Cover Sheet: Color rendering or black and white image of the exterior
  • Foundation Plan(s): Drawn to 1/4" scale, this page shows all necessary notations and dimensions including support columns, walls and excavated and unexcavated areas.
  • Floor Plan(s): Detailed plans, drawn to 1/4" scale for each level showing room dimensions, wall partitions, windows, etc. as well as the location of electrical outlets and switches.
  • Exterior Elevations: A blueprint picture of all four sides showing exterior materials and measurements.
  • Interior Elevations: Where applicable, each house plan set includes relevant interior elevations, including cabinets, cabinet details, columns and walls with unique conditions.
  • Overhead Roof Plan(s): Overhead view of roof.
  • Cross Section(s): A vertical cutaway view of the house from roof to foundation showing details of framing, construction, flooring and roofing.
  • Electrical Plan(s): Lighting, outlets, switches, detectors, etc.
  • Kitchen Cabinet Elevation(s): Scaled drawings of interior cabinets.
  • Construction Notes and Detail(s): Shows basic parts and assemblies recommended for the home so the builder can see how things come together.
  • Framing Detail(s): Ceiling joist size and spacing and layouts. If included, the framing layout is intended to be a suggested layout only. Design loads and weather conditions vary by region. As a result the size, spacing, and layout of all structural elements in this home design may need approval by a structural engineer or code official based on your specific site location.
  • Wall Section(s): Exterior wall and roof sections and specialty details.

FAQs

Are designs on Houseplans ready to submit to my building department for permitting?

It depends on where you're building. Our plans contain enough information for a professional builder to construct your home, but your local government may require additional information before permitting. We strongly advise that you talk with your builder before you get started. If you are building for yourself, we recommend visiting your local building department to start your diligence. Read more here.

Can I make changes to a plan?

Absolutely! Our modification service allows you to customize almost anything - whether it's adding an extra garage bay, adjusting square footage, changing the roof pitch, or more, the plan modification service is a great value and can be completed quickly. Additionally, if you purchase an electronic plan set (PDF or CAD), you may have the option to make changes locally. CAD files offer the most flexibility for custom edits. Just let us know what you're thinking, and we’ll provide an estimate and timeframe to get started. Learn more here.

How much does a house cost to build?

Find out! Build costs vary based on the size of the home, materials used, and local rates for goods and labor. Our Cost to Build report is a great way to get some basic costs dialed in before you order your plans. Just plug in your postal code, select your desired construction quality, and we'll calculate for you.

Learn more about Cost to Build reports here.

Can I trust Houseplans?

Founded in 2004, Houseplans works with hundreds of architects and designers to offer their plans at a fraction of the price of custom design. Houseplans has an "Excellent" rating on TrustPilot.

Read more about us here.

Does Houseplans offer live support?

Yes, Houseplans has a dedicated team of house plan advisors with decades of experience between them. You can reach them by calling, emailing, filling out a form on the page of a plan that you like, or going to the Contact Us page. We're available to talk every day, even on weekends.

Builder Advantage Home

Builder Advantage Program

Are you a Pro Builder? Join the club, save 5% on your first order, get exclusive discounts, and more.

Learn More

You may also like

Save Plan
Craftsman

Plan 126-236

$1195.00

beds2

bd

baths2

ba

stories1

story

square feet988

sq ft

Save Plan
Country

Plan 427-1

$897.60

beds3

bd

baths2.5

ba

stories2

stories

square feet1908

sq ft

Save Plan
Farmhouse

Plan 430-422

$1445.00

beds3

bd

baths2.5

ba

stories1

story

square feet2494

sq ft

Recently viewed plans

Exterior - Front Elevation for Craftsman House Plan #21-312 - 4 bed, 2.5 bath
Save Plan

Plan 21-312

$1400.00

beds4

bd

baths2.5

ba

stories1

story

square feet2212

sq ft