Farmhouse Style House Plan - 3 Beds 2.5 Baths 2448 Sq/Ft Plan #1089-31 - Houseplans.com
Search
REGISTER LOGIN SAVED No Saved Plans CART  Cart Empty
Don't lose your saved plans! Create an account to access your saves whenever you want. See our Terms & Conditions and Privacy Policy.
OR
Plan 1089-31
Photographs may show modified designs.
Home  >  Style  >  Farmhouse

Farmhouse House Plan 1089-31

Key Specs


Plan Sq Ft

2448
sq ft

Plan Bedrooms

3
Beds

Plan Bathrooms

2.5
Baths

Plan Floors

2
Floors

Plan Garages

3
Garages

Questions? Get Personalized Help
Select Plan Set Options
What's included?
$245.00
$165.00
$295.00
$39.00
$165.00
Mirror Reversed Sets$245.00

Printed sets showing plan in reverse, text and dimensions will be backwards.

Subtotal
$1545.00
Best Price Guaranteed

Or order by phone: 1-800-913-2350
Questions? Get Personalized Help
 

 
Hours:
Ready for Your Call 7 Days a Week
Every Day 7 am - 8:30 pm Eastern

See Terms & Conditions and Privacy Policy.

Thanks for your question.

We will be in touch shortly.

Wow!
Cost to Build Reports
$1.99 with Code
CTB2026 (Limit 1)
Our Cost to Build Report gives you a personalized estimate for building your home, based on your location, plan, and materials.

Residential Construction Guide

Learn Building Basics

This downloadable, 26-page guide is full of diagrams and details about plumbing, electrical, and more.

Key Specs


Plan Sq Ft

2448
sq ft

Plan Bedrooms

3
Beds

Plan Bathrooms

2.5
Baths

Plan Floors

2
Floors

Plan Garages

3
Garages

Plan Description


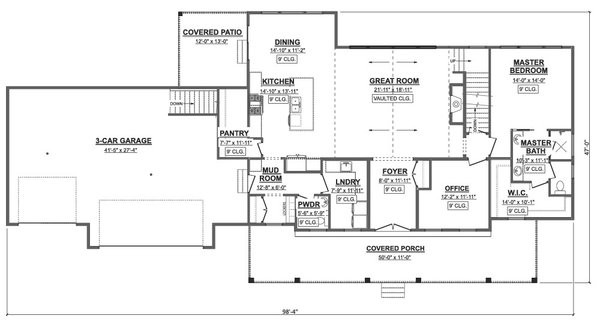
This farmhouse design floor plan is 2448 sq ft and has 3 bedrooms and 2.5 bathrooms.

This plan can be customized!

Tell us about your desired changes so we can prepare an estimate for the design service. Click the button to submit your request for pricing, or call 1-800-913-2350.

Floor Plans


Floor Plan - Main Floor

Reverse
houseplans LOGO

BUILDER Advantage Program

PRO BUILDERS

Join the club and save 5% on your first order.
PLUS download exclusive discounts and more.

LEARN MORE

Floor Plan - Upper Floor

Reverse

Full Specs & Features


Basic Features

Bedrooms : 3
Baths : 2.5
Stories: 2
Garages: 3

Dimension

Depth : 47'
Height : 30'
Width : 98' 4"

Area

Total : 2448 sq/ft
Basement : 1932 sq/ft
Garage : 1024 sq/ft
Main Floor : 1925 sq/ft
Patios : 156 sq/ft
Porch : 474 sq/ft
Upper Floor : 523 sq/ft
* Total Square Footage typically only includes conditioned space and does not include garages, porches, bonus rooms, or decks.

Ceiling

Main Ceiling : 9'
Upper Ceiling Ft : 8'

Roof

Primary Pitch : 11:12
Secondary Pitch : 10:12

Bedroom Features

Main Floor Master Bedroom
Upstairs Bedrooms
Walk In Closet

Kitchen Features

Breakfast Nook
Eating Bar
Kitchen Island
Walk In Pantry Cabinet Pantry

Additional Room Features

Den Office Study Computer
Great Room Living Room
Main Floor Laundry
Mud Room

Garage Features

Front Entry Garage
Oversized Garage

Outdoor Spaces

Covered Front Porch
Covered Rear Porch

What's included in this plan set


See a sample plan set
  • Foundation Plan(s): Drawn to 1/4" scale, this page shows all necessary notations and dimensions including support columns, walls and excavated and unexcavated areas.
  • Floor Plan(s): Detailed plans, drawn to 1/4" scale for each level showing room dimensions, wall partitions, windows, etc. as well as the location of electrical outlets and switches.
  • Exterior Elevations: A blueprint picture of all four sides showing exterior materials and measurements.
  • Overhead Roof Plan(s): A bird's-eye view of the roof showing pitches and simple overhang details.
  • Cross Section(s): A vertical cutaway view of the house from roof to foundation showing details of framing, construction, flooring and roofing.
  • Electrical Plan(s): Shows the location of lights, receptacles, switches, etc. Some plans that do not include an electrical plan may have it available for an additional fee.
  • Construction Notes / Detail(s): Shows basic parts and assemblies recommended for the home so the builder can see how things come together.
* See important information before purchasing

Pricing


Plan Options

5 Copy and PDF Set

$1545.00
5 printed plan sets mailed to you plus PDF plan sets are best for fast electronic delivery and inexpensive local printing.

CAD Single Build

$2095.00
For use by design professionals to make substantial changes to your house plan and inexpensive local printing.

CAD Unlimited Build

$2595.00
For use by design professionals to make substantial changes to your house plan and inexpensive local printing.

Single Set

$1295.00
One printed set for bidding purposes only. Not a legal building set for construction.

Foundation Options

Basement

$0.00
Ideal for level lot, lower level of home partially or fully underground.

Crawlspace

$450.00
Ideal for semi-sloped or level lot, home can be built off of grade, typically 18” - 48”.

Slab

$450.00
Ideal for level lot, single layer concrete poured directly on grade.

*Options with a fee may take time to prepare. Please call to confirm.

Framing Options

Wood 2x4

$0.00
Wood 2x4 Exterior Walls

Wood 2x6

$295.00
Wood 2x6 Exterior Walls

*Options with a fee may take time to prepare. Please call to confirm.

Additional Options

Right-Reading Reverse

$245.00
Choose this option to reverse your plans and to have the text and dimensions readable.

Audio Video Design

$165.00
Receive an overlay sheet with suggested placement of audio and video components.

Comprehensive Material List

$295.00
A complete list of building supplies needed to construct the infrastructure of your new house, plus an overlay of materials shown directly on your PDF (foundation to rooftop with interior and exterior materials), and a detailed, itemized door and window schedule showing all sizes and types. Please allow 5-7 Business Days for completion. Note, the Comprehensive list is only available with a PDF purchase. The Comprehensive list can be ordered no matter what additional plan options you have selected.

Construction Guide

$39.00
Educate yourself about basic building ideas with these four detailed diagrams that discuss electrical, plumbing, mechanical, and structural topics.

Lighting Design

$165.00
Receive an overlay sheet with suggested placement of lighting fixtures.

Mirror Reversed Sets

$245.00
A mirror-reversed set is a printed copy of your house, resulting in the same image you would see if you held the drawing up to a mirror. Everything, including the text, is backward in relation to the original design. These kinds of drawing are typically used to reorient an original plan more advantageously on a site, either because the homeowner prefers it that way or because of limitations of the site itself. Note: Mirror reverse sets are only available with a 5 copy or 8 copy set. With a Reproducible, PDF, or CAD set, you can print mirrored copies locally. In addition: 5 Copy set selected, should only allow 4 mirrored sets to be selected. 8 Copy set selected, should only allow 7 mirrored sets to be selected.

*Options with a fee may take time to prepare. Please call to confirm.

Unless you buy an “unlimited” plan set or a multi-use license you may only build one home from a set of plans. Please call to verify if you intend to build more than once. Plan licenses are non-transferable and cannot be resold.

We offer a 90% credit when you upgrade from a set, that is not for construction, to a 5-Copy set (or greater).

Other Plans By This Designer

See all plans by
this designer

Need help? Let our friendly experts help you find the perfect plan!

Contact us now for a free consultation.