Craftsman Style House Plan - 5 Beds 4.5 Baths 2757 Sq/Ft Plan #119-248 - Houseplans.com
Search
REGISTER LOGIN SAVED No Saved Plans CART  Cart Empty
Don't lose your saved plans! Create an account to access your saves whenever you want. See our Terms & Conditions and Privacy Policy.
OR
Plan 119-248
Photographs may show modified designs.
Home  >  Style  >  Craftsman

Craftsman House Plan 119-248

Key Specs


Plan Sq Ft

2757
sq ft

Plan Bedrooms

5
Beds

Plan Bathrooms

4.5
Baths

Plan Floors

2
Floors

Plan Garages

2
Garages

Questions? Get Personalized Help
Select Plan Set Options
What's included?
$200.00
$165.00
$295.00
$39.00
$165.00
Subtotal
$1295.00
Best Price Guaranteed

Or order by phone: 1-800-913-2350
Questions? Get Personalized Help
 

 
Hours:
Ready for Your Call 7 Days a Week
Every Day 7 am - 8:30 pm Eastern

See Terms & Conditions and Privacy Policy.

Thanks for your question.

We will be in touch shortly.

Wow!
Cost to Build Reports
$1.99 with Code
CTB2026 (Limit 1)
Our Cost to Build Report gives you a personalized estimate for building your home, based on your location, plan, and materials.

Residential Construction Guide

Learn Building Basics

This downloadable, 26-page guide is full of diagrams and details about plumbing, electrical, and more.

Key Specs


Plan Sq Ft

2757
sq ft

Plan Bedrooms

5
Beds

Plan Bathrooms

4.5
Baths

Plan Floors

2
Floors

Plan Garages

2
Garages

Plan Description


This craftsman design floor plan is 2757 sq ft and has 5 bedrooms and 4.5 bathrooms.

This plan can be customized!

Tell us about your desired changes so we can prepare an estimate for the design service. Click the button to submit your request for pricing, or call 1-800-913-2350.

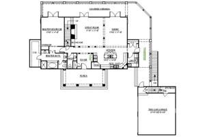
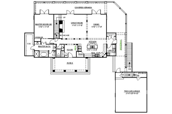
Floor Plans


Floor Plan - Main Floor

Reverse
houseplans LOGO

BUILDER Advantage Program

PRO BUILDERS

Join the club and save 5% on your first order.
PLUS download exclusive discounts and more.

LEARN MORE

Floor Plan - Upper Floor

Reverse

Full Specs & Features


Basic Features

Bedrooms : 5
Baths : 4.5
Stories: 2
Garages: 2

Dimension

Depth : 76' 7"
Height : 27'
Width : 84'

Area

Total : 2757 sq/ft
Bonus: 208 sq/ft
First Floor: 1708 sq/ft height 9'
Second Floor: 1049 sq/ft height 8'
* Total Square Footage typically only includes conditioned space and does not include garages, porches, bonus rooms, or decks.

Ceiling

Main Ceiling : 10'
Upper Ceiling Ft : 9'

Roof

Primary Pitch : 12:12
Roof Framing : Conventional

Exterior Wall Framing

Exterior Wall Finish : Siding
Framing : Wood - 2x4

Bedroom Features

Guest Suite
Main Floor Master Bedroom
Walk In Closet

Kitchen Features

Eating Bar
Kitchen Island
Walk In Pantry Cabinet Pantry

Additional Room Features

Great Room Living Room
Loft
Play Flex Room
Storage Area

Garage Features

Detached Garage
Side Entry Garage
Split Garage

Lot Characteristics

Suited For View Lot

Outdoor Spaces

Balcony
Breezeway
Covered Front Porch
Covered Rear Porch

Rooms

3rd BR Closet:

29 sq/ft width 9' x depth 3' 4"

Bedroom 2:

221 sq/ft width 13' x depth 17'

Bedroom 2 Closet:

69 sq/ft width 9' 2" x depth 7' 7"

Bedroom 3:

204 sq/ft width 12' x depth 17'

Bedroom 3 Closet:

69 sq/ft width 9' 2" x depth 7' 7"

Bonus Room - Finished:

235 sq/ft width 13' 7" x depth 17' 4"

Dining Room:

221 sq/ft width 13' x depth 17'

Foyer:

72 sq/ft width 8' x depth 9'

Gathering Room:

289 sq/ft width 17' x depth 17'

Hall Bathroom:

77 sq/ft width 6' 2" x depth 12' 7"

Kitchen:

236 sq/ft width 19' 5" x depth 12' 2"

Master Bathroom:

129 sq/ft width 14' 9" x depth 8' 9"

Master Bedroom:

221 sq/ft width 13' x depth 17'

Master Closet:

96 sq/ft width 6' 3" x depth 15' 5"

Porch - Front:

264 sq/ft width 24' x depth 11'

Porch - Rear:

510 sq/ft width 63' 10" x depth 8'

Powder Room:

46 sq/ft width 5' 4" x depth 8' 9"

Utility Room:

48 sq/ft width 6' 3" x depth 7' 9"

What's included in this plan set


See a sample plan set
  • Cover Sheet: The cover sheet features an elevation of the home, sheet number index for the plan, and contact information.
  • Foundation: These drawings will detail and illustrate the foundation of the home, exterior and interior footings to support the floors and structure above. If a basement is purchased, it will show the stairs, bearing walls, and basement windows and doors.
  • First Floor Plan: This page is drawn to ¼”=1’-0” scale and includes exterior dimensions to build the home. The notes are precise directions for your builder. Important features such as built-ins, niches, and appliances are noted. Doors and windows are identified and specific sizing can be found on window and door schedules. *Framing is not included.
  • Second Floor Plan: The second floor includes stair details. Often the reflective roof detail is shown legibly over the second floor plan. This is helpful for the framing contractor. *Framing is not included.
  • Lighting and Electrical: On this sheet you have a schematic of the lights, electrical plugs, phone location, and code items such as smoke detectors. It is common place to build with your builder and/or electrician before the work starts to review this plan. Careful planning can make your home special and convenient for your family.
  • Second Floor Lighting: The same details as provided for the first floor.
  • Front and Rear Elevations: The front and rear elevations may be on separate pages depending on the size of the house. This page comes with exterior dimensions and notes required to complete construction. This is where the windows, doors, and interior trim details are illustrated, as well as wall heights, roof pitches and ridge heights.
  • Right and Left Elevations: The right and left elevations provide the same details as the front and rear elevations.
  • Roof Plan: This drawing, usually at ¼”=1’-0” scale, will be a bird’s eye view of the home. It will show the ridges, hips, and valleys. This page will show a beautifully designed roof.*Framing is not included.
  • Cross-Sections: Sections are used to further describe any architectural intent necessary for the builder or framer. This drawing will illustrate important changes in the floor, ceiling, and roof heights.
  • Cabinet Elevations*: Cabinet elevations are provided with your plans, and like the electrical plan, they are mainly a guide for estimating purposes. Cabinets are an area that is easy to customize and your builder or cabinet maker will work with you early on in the process to ensure that the correct cabinets are specified. Archival Designs believes cabinets should reflect your taste and budget. After framing and sheet rock installation sizes of walls may change slightly. The cabinet maker must take as built measurements to properly size your cabinets. **NOTE: The majority of house plans will include cabinet elevations in construction set; however, not all will include.
  • General Notes: Separate sheets that provide standard construction notes, in addition included are the details required to comply with International Residential Code (IRC) & Southern Building Code (SBC).
* See important information before purchasing

Pricing


Plan Options

PDF Set

Best Value!
$1295.00
PDF plan sets are best for fast electronic delivery and inexpensive local printing.

5 Copy Set

$1725.00
5 printed plan sets mailed to you.

5 Copy and PDF Set

$1825.00
5 printed plan sets mailed to you plus PDF plan sets are best for fast electronic delivery and inexpensive local printing.

CAD and PDF Set

$2095.00
For use by design professionals to make substantial changes to your house plan and inexpensive local printing plus PDF plan sets are best for fast electronic delivery and inexpensive local printing.

Foundation Options

Basement

$0.00
Ideal for level lot, lower level of home partially or fully underground.

*Options with a fee may take time to prepare. Please call to confirm.

Additional Options

Right-Reading Reverse

$200.00
Choose this option to reverse your plans and to have the text and dimensions readable.

Audio Video Design

$165.00
Receive an overlay sheet with suggested placement of audio and video components.

Comprehensive Material List

$295.00
A complete list of building supplies needed to construct the infrastructure of your new house, plus an overlay of materials shown directly on your PDF (foundation to rooftop with interior and exterior materials), and a detailed, itemized door and window schedule showing all sizes and types. Please allow 5-7 Business Days for completion. Note, the Comprehensive list is only available with a PDF purchase. The Comprehensive list can be ordered no matter what additional plan options you have selected.

Construction Guide

$39.00
Educate yourself about basic building ideas with these four detailed diagrams that discuss electrical, plumbing, mechanical, and structural topics.

Lighting Design

$165.00
Receive an overlay sheet with suggested placement of lighting fixtures.

*Options with a fee may take time to prepare. Please call to confirm.

Unless you buy an “unlimited” plan set or a multi-use license you may only build one home from a set of plans. Please call to verify if you intend to build more than once. Plan licenses are non-transferable and cannot be resold.

Other Plans By This Designer

See all plans by
this designer

Need help? Let our friendly experts help you find the perfect plan!

Contact us now for a free consultation.

Coupon Codes