Don't lose your saved plans! 
Create an account to access your saves whenever you want. See our Terms & Conditions and Privacy Policy.
OR

Country House Plan 1061-36 2767 Sq Ft, 4 Bed, 2.5 Bath, 2 Floor, 0 Garage

Key Specs
  • 4
    Beds
  • 2.5
    Baths
  • 2
    Floors
  • 0
    Garages
  • 2767
    Square Feet
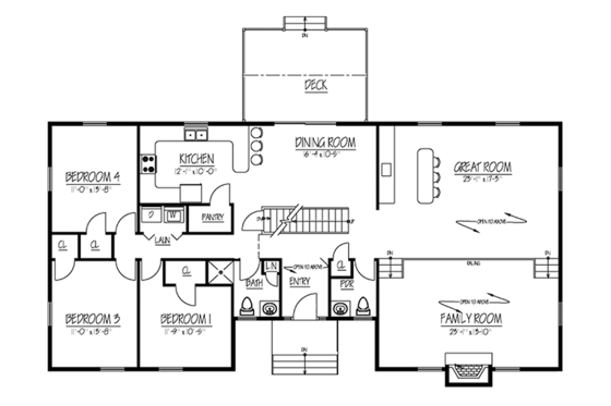
This country design floor plan is 2767 sq ft and has 4 bedrooms and 2.5 bathrooms.

Questions on this plan?

New to the process and looking for some help to kick things off? Let us know a bit about your plans and we’ll be happy to help.

Budget & Customization Tools

Modify icon
Customize this Plan
Tell us about your desired changes and we can prepare an estimate.
Cost to Build icon
Cost to Build Report
A personalized estimate based on your location, plan, & materials.
Cost to Build icon
Residential Construction Guide
This downloadable, 26-page guide is full of diagrams and details about plumbing, electrical, and more.

Full specs & Features

Basic Features

Bedrooms: 4
Baths: 2.5
Stories: 2
Garages: 0

Dimension

Depth: 32'
Height: 21' 11"
Width: 66'

Area

Total: 2767 sq/ft
Basement Unfinished: 431 sq/ft
First Floor: 2007 sq/ft height 9'
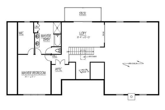
Second Floor: 760 sq/ft height 8'
* Total Square Footage typically only includes conditioned space and does not include garages, porches, bonus rooms, or decks.

Roof

Primary Pitch: 9:12
Roof Framing: Truss
Roof Type: Composition
Secondary Pitch: 12:12

Exterior Wall Framing

Exterior Wall Finish: Siding/Stone
Framing: Wood - 2x6

Bedroom Features

Fireplace
Split Bedrooms
Upstairs Master Bedrooms
Walk In Closet

Kitchen Features

Kitchenette Wet Bar
Walk In Pantry Cabinet Pantry

Additional Room Features

Family Room Keeping Room
Great Room Living Room
Loft
Open Floor Plan
Storage Area
Upstairs Laundry
Vaulted / Cathedral Ceilings

Garage Features

Front Entry Garage

Outdoor Spaces

Balcony
Covered Front Porch
Deck

Rooms

Bedroom 1:

122 sq/ft width 11' 9" x depth 10' 5"

Bedroom 3:

150 sq/ft width 11' x depth 13' 8"

Bedroom 4:

150 sq/ft width 11' x depth 13' 8"

Dining Area:

170 sq/ft width 16' 4" x depth 10' 5"

Family Room:

319 sq/ft width 23' 1" x depth 13' 10"

Great Room:

398 sq/ft width 23' 1" x depth 17' 3"

Kitchen:

121 sq/ft width 12' 1" x depth 10'

Loft:

199 sq/ft width 18' 4" x depth 10' 10"

Master Bedroom:

241 sq/ft width 14' 1" x depth 17' 1"

What's Included

  • Foundation Plan(s): This page shows all necessary notations and dimensions including footings, support columns, walls, and excavated/unexcavated areas.
  • Floor Plan(s): Detailed plans for each level showing room dimensions, wall partitions, windows and doors, fixture locations, and ceiling treatments.
  • Exterior Elevations: Views of the home from all four sides showing exterior materials, roof slope, ridge heights, siding and trim notes.
  • Overhead Roof Plan(s): May not be available for all plans. A view of the home from above showing roof pitch, peaks, valleys, and other details.
  • Cross Section(s): A slice of the home from roof to foundation, showing relationships between floors, roof, and foundation.
  • Construction Notes / Detail(s): Shows basic parts and assemblies recommended for the home so the builder can see how things come together.

FAQs

Are designs on Houseplans ready to submit to my building department for permitting?

It depends on where you're building. Our plans contain enough information for a professional builder to construct your home, but your local government may require additional information before permitting. We strongly advise that you talk with your builder before you get started. If you are building for yourself, we recommend visiting your local building department to start your diligence. Read more here.

Can I make changes to a plan?

Absolutely! Our modification service allows you to customize almost anything - whether it's adding an extra garage bay, adjusting square footage, changing the roof pitch, or more, the plan modification service is a great value and can be completed quickly. Additionally, if you purchase an electronic plan set (PDF or CAD), you may have the option to make changes locally. CAD files offer the most flexibility for custom edits. Just let us know what you're thinking, and we’ll provide an estimate and timeframe to get started. Learn more here.

How much does a house cost to build?

Find out! Build costs vary based on the size of the home, materials used, and local rates for goods and labor. Our Cost to Build report is a great way to get some basic costs dialed in before you order your plans. Just plug in your postal code, select your desired construction quality, and we'll calculate for you.

Learn more about Cost to Build reports here.

Can I trust Houseplans?

Founded in 2004, Houseplans works with hundreds of architects and designers to offer their plans at a fraction of the price of custom design. Houseplans has an "Excellent" rating on TrustPilot.

Read more about us here.

Does Houseplans offer live support?

Yes, Houseplans has a dedicated team of house plan advisors with decades of experience between them. You can reach them by calling, emailing, filling out a form on the page of a plan that you like, or going to the Contact Us page. We're available to talk every day, even on weekends.

Builder Advantage Home

Builder Advantage Program

Are you a Pro Builder? Join the club, save 5% on your first order, get exclusive discounts, and more.

Learn More

You may also like

Save Plan
Country

Plan 427-1

$897.60

beds3

bd

baths2.5

ba

stories2

stories

square feet1908

sq ft

Save Plan
Traditional

Plan 20-2346

$1305.00

beds4

bd

baths2.5

ba

stories2

stories

square feet2257

sq ft

Recently viewed plans

Exterior - Front Elevation for Country House Plan #1061-36 - 4 bed, 2.5 bath
Save Plan

Plan 1061-36

$1650.00

beds4

bd

baths2.5

ba

stories2

stories

square feet2767

sq ft

Exterior - Front Elevation for Traditional House Plan #84-603 - 4 bed, 4 bath
Save Plan

Plan 84-603

$1200.00

beds4

bd

baths4

ba

stories2

stories

square feet4031

sq ft