Contemporary Style House Plan - 4 Beds 4 Baths 3055 Sq/Ft Plan #124-1461 - Houseplans.com
Search
REGISTER LOGIN SAVED No Saved Plans CART  Cart Empty
Don't lose your saved plans! Create an account to access your saves whenever you want. See our Terms & Conditions and Privacy Policy.
OR
15% OFF: SALE ENDS SOON!
Plan 124-1461
Photographs may show modified designs.
Home  >  Style  >  Contemporary

Contemporary House Plan 124-1461

Key Specs


Plan Sq Ft

3055
sq ft

Plan Bedrooms

4
Beds

Plan Bathrooms

4
Baths

Plan Floors

1
Floors

Plan Garages

2
Garages

Questions? Get Personalized Help
Select Plan Set Options
What's included?
$374.00
Additional Construction Sets$55.25/each

Additional hard copies of the plan (can be ordered at the time of purchase and within 90 days of the purchase date).

$1283.50
$140.25
$335.75
$33.15
$140.25
Subtotal
NOW $1572.50
You save $277.50
(15% savings)
Sale ends soon!
Best Price Guaranteed

Or order by phone: 1-800-913-2350
Questions? Get Personalized Help
 

 
Hours:
Ready for Your Call 7 Days a Week
Every Day 7 am - 8:30 pm Eastern

See Terms & Conditions and Privacy Policy.

Thanks for your question.

We will be in touch shortly.

Wow!
Cost to Build Reports
$1.99 with Code
CTB2026 (Limit 1)
Our Cost to Build Report gives you a personalized estimate for building your home, based on your location, plan, and materials.

Residential Construction Guide

Learn Building Basics

This downloadable, 26-page guide is full of diagrams and details about plumbing, electrical, and more.

Key Specs


Plan Sq Ft

3055
sq ft

Plan Bedrooms

4
Beds

Plan Bathrooms

4
Baths

Plan Floors

1
Floors

Plan Garages

2
Garages

Plan Description


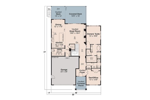
The Everwood unfolds as a striking Contemporary Plan that feels immediately connected to its setting, thoughtfully composed to work in harmony with a challenging landscape while delivering refined comfort throughout. Designed as a 1 story home, this residence embraces the natural grade of the site, making it an ideal Sloped Lot Plan that feels grounded, intentional, and visually dynamic from every angle. Clean rooflines sweep across the exterior, creating a strong architectural presence that is softened by layered materials, warm textures, and expansive windows that draw the outdoors in. The façade balances bold geometry with subtle contrast, showcasing Modern Elements that feel timeless rather than trendy. As you approach the Everwood, the entry sequence feels both dramatic and welcoming. A covered front porch introduces a vaulted foyer that immediately sets the tone for the interior experience. Inside, ceiling heights rise and fall in a deliberate rhythm, enhancing the sense of openness while maintaining intimate, livable proportions. The great room anchors the heart of the home, defined by a vaulted ceiling and generous glazing that captures views and natural light throughout the day. This space flows seamlessly into the dining area and kitchen, creating a cohesive gathering zone that supports both everyday living and relaxed entertaining. The kitchen is designed for efficiency and style, featuring ample counter space, a functional layout, and clear sightlines into the dining and great room areas. Adjacent to the kitchen, the dining space feels bright and connected, positioned to take advantage of nearby outdoor living areas. Sliding doors extend the living experience to a covered deck, where the home truly embraces its role as a Sloped Lot Plan, offering elevated views and an effortless indoor-outdoor connection that enhances the overall lifestyle. Private spaces are thoughtfully arranged to ensure comfort and flexibility. The Everwood delivers a true 4 bedroom layout, making it well suited for families, guests, or multigenerational living. The owners’ suite is quietly positioned away from secondary bedrooms, offering a peaceful retreat with generous proportions. This suite includes a spacious sleeping area, a walk-in closet, and a well-appointed bath designed for daily ease. Large windows reinforce the connection to the site, ensuring the room feels calm and restorative. Additional bedrooms are strategically placed to balance privacy with accessibility. One bedroom functions beautifully as a guest suite or hobby room, complete with nearby bath access and convenient proximity to outdoor living areas. Two more bedrooms are grouped together, ideal for family members or visitors, and share a well-designed bathroom. Each room maintains a sense of openness through carefully placed windows and efficient layouts, reinforcing the thoughtful planning behind this Contemporary Plan. A dedicated den or office near the front of the home adds versatility, easily adapting to work-from-home needs, creative pursuits, or quiet retreat space. Practical elements are seamlessly integrated throughout, including a utility room that supports daily routines and a generously sized garage that offers storage and convenience without overwhelming the overall design. What truly sets the Everwood apart is how its Modern Elements enhance livability rather than compete with it. Vaulted ceilings, clean lines, and purposeful transitions work together to create a home that feels open yet grounded, modern yet inviting. The design maximizes the benefits of a 1 story layout while leveraging the slope of the site to add architectural interest and expanded outdoor living opportunities. The Everwood stands as a refined 4 bedroom solution for those seeking a sophisticated yet approachable Contemporary Plan. Every detail, from the sloping rooflines to the layered outdoor spaces, reinforces its identity as a well-executed Sloped Lot Plan that delivers style, function, and a strong connection to place—all within a home that feels effortlessly livable and thoughtfully designed.

This plan can be customized!

Tell us about your desired changes so we can prepare an estimate for the design service. Click the button to submit your request for pricing, or call 1-800-913-2350.

Floor Plans


Floor Plan - Main Floor

Reverse
houseplans LOGO

BUILDER Advantage Program

PRO BUILDERS

Join the club and save 5% on your first order.
PLUS download exclusive discounts and more.

LEARN MORE

Floor Plan - Lower Floor

Reverse

Full Specs & Features


Basic Features

Bedrooms : 4
Baths : 4
Stories: 1
Garages: 2

Dimension

Depth : 77'
Height : 21' 10"
Width : 46'

Area

Total : 3055 sq/ft
Garage : 633 sq/ft
Lower Floor : 1175 sq/ft
Main Floor : 1880 sq/ft
* Total Square Footage typically only includes conditioned space and does not include garages, porches, bonus rooms, or decks.

Ceiling

Main Ceiling : 9'

Roof

Primary Pitch : 3/12
Roof Framing : Truss/Stick
Roof Load : 25

Exterior Wall Framing

Exterior Wall Finish : Siding/Panel/Stone
Framing : 2x6

Bedroom Features

Guest Suite
Lower Level Bedrooms
Main Floor Master Bedroom
Split Bedrooms
Walk In Closet

Kitchen Features

Breakfast Nook
Eating Bar
Kitchen Island
Walk In Pantry Cabinet Pantry

Additional Room Features

Den Office Study Computer
Family Room Keeping Room
Great Room Living Room
Hobby Rec Room Game Room

Garage Features

Front Entry Garage

Lot Characteristics

Suited For Sloping Lot

Outdoor Spaces

Covered Front Porch
Covered Rear Porch

What's included in this plan set


See a sample plan set
Please note, if ordering a PDF Print Set, it is not-modifiable. The CAD set is best for making local modifications. The "5 set + PDF" combo contains a non-modifiable PDF Print Set.

Each plan set is drawn at 1/4"=1' scale and includes the following drawings:
  • Artist's Rendering: An artist's drawing of the home, usually viewed from the front, and general construction notes.
  • Elevations: Shows the front, sides, and rear, including exterior materials, trim sizes, roof pitches, etc.
  • Main Floor Plan: Shows placement and dimensions of walls, doors, & windows. Includes the location of appliances, plumbing fixtures, beams, ceiling heights, etc.
  • Second Floor Plan (if any): Shows the second floor in the same detail as the main floor. Includes second floor framing and details.
  • Foundation Plan: Shows the location of all concrete footings, floor beams, first floor framing, and foundation details. If there is a basement, a basement plan is included which shows all basement details. Foundation types vary; please call to confirm the foundation type of the plan you are interested in.
  • Floor Framing Plan (if any): Shows location and spacing of floor joists and supporting walls or beams.
  • Roof Framing Plan: Shows roof outlines, conventional framing/trusses, beams, roof framing details, etc. Specific details such as fireplaces, stairways, decks, etc. Details are drawn at 1/2" = 1' scale, and appear as needed throughout the prints.
  • Section: Shows a cross-section of the home. Shows support members, exterior and interior materials, insulation, and foundation.
  • Electrical Plan: A schematic layout of all lighting, switches and electrical outlets.
* See important information before purchasing

Pricing


Plan Options

PDF Print Set

$1572.50
A non-modifiable, print only PDF file

5 Copy and PDF Set

$1912.50
5 printed plan sets mailed to you plus PDF plan sets are best for fast electronic delivery and inexpensive local printing.

PDF Master Set

$3213.00
An unlocked, modifiable PDF file

CAD Set

$3557.25
For use by design professionals to make substantial changes to your house plan and inexpensive local printing.

Master Builder Package

$3884.50
Includes CAD Set, PDF Masters and Unlimited Build License

Study Set

$1283.50
One electronic set for bidding purposes only. Not a legal building set for construction.

Foundation Options

Walk Out Basement

$0.00
Ideal for a sloping lot, lower level with outdoor access.

*Options with a fee may take time to prepare. Please call to confirm.

Framing Options

Wood 2x6

$0.00
Wood 2x6 Exterior Walls

Wood 2x4

$467.50
Wood 2x4 Exterior Walls

*Options with a fee may take time to prepare. Please call to confirm.

Additional Options

Right-Reading Reverse

$374.00
Choose this option to reverse your plans and to have the text and dimensions readable.

Additional Construction Sets

$55.25
Additional hard copies of the plan (can be ordered at the time of purchase and within 90 days of the purchase date).

Additional Use License

$1283.50
Allows you to build one more home for each additional license purchased.

Audio Video Design

$140.25
Receive an overlay sheet with suggested placement of audio and video components.

Comprehensive Material List

$335.75
A complete list of building supplies needed to construct the infrastructure of your new house, plus an overlay of materials shown directly on your PDF (foundation to rooftop with interior and exterior materials), and a detailed, itemized door and window schedule showing all sizes and types. Please allow 5-7 Business Days for completion. Note, the Comprehensive list is only available with a PDF purchase. The Comprehensive list can be ordered no matter what additional plan options you have selected.

Construction Guide

$33.15
Educate yourself about basic building ideas with these four detailed diagrams that discuss electrical, plumbing, mechanical, and structural topics.

Lighting Design

$140.25
Receive an overlay sheet with suggested placement of lighting fixtures.

*Options with a fee may take time to prepare. Please call to confirm.

Unless you buy an “unlimited” plan set or a multi-use license you may only build one home from a set of plans. Please call to verify if you intend to build more than once. Plan licenses are non-transferable and cannot be resold.

We offer a 90% credit when you upgrade from a set, that is not for construction, to a 5-Copy set (or greater).

Other Plans By This Designer

See all plans by
this designer

Need help? Let our friendly experts help you find the perfect plan!

Contact us now for a free consultation.

$1.99 Build Cost Reports!