Don't lose your saved plans! 
Create an account to access your saves whenever you want. See our Terms & Conditions and Privacy Policy.
OR

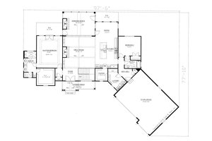
Craftsman House Plan 437-104 3869 Sq Ft, 4 Bed, 4 Bath, 1 Floor, 3 Garage

Key Specs
  • 4
    Beds
  • 4
    Baths
  • 1
    Floors
  • 3
    Garages
  • 3869
    Square Feet
Well, hello there! This fresh house plan features an open layout on the main floor, plus the master suite on one side (including a private deck and spacious bathroom) and a guest suite across the floor. Two more bedrooms and bathrooms reside downstairs, along with a variety of recreational spaces.

Questions on this plan?

New to the process and looking for some help to kick things off? Let us know a bit about your plans and we’ll be happy to help.

Budget & Customization Tools

Modify icon
Customize this Plan
Tell us about your desired changes and we can prepare an estimate.
Cost to Build icon
Cost to Build Report
A personalized estimate based on your location, plan, & materials.
Cost to Build icon
Residential Construction Guide
This downloadable, 26-page guide is full of diagrams and details about plumbing, electrical, and more.

Full specs & Features

Basic Features

Bedrooms: 4
Baths: 4
Stories: 1
Garages: 3

Dimension

Depth: 77' 10"
Height: 25'
Width: 97' 6"

Area

Total: 3869 sq/ft
Basement: 525 sq/ft
Garage: 834 sq/ft
Lower Floor: 1672 sq/ft
Main Floor: 2197 sq/ft
Porch: 421 sq/ft
* Total Square Footage typically only includes conditioned space and does not include garages, porches, bonus rooms, or decks.

Ceiling

Main Ceiling: 10'

Roof

Primary Pitch: 12/12
Roof Framing: Truss/Stick
Roof Type: Asphalt
Secondary Pitch: 4/12

Exterior Wall Framing

Exterior Wall Finish: Stone/Siding
Framing: 2x4

Bedroom Features

Main Floor Master Bedroom
Split Bedrooms
Walk In Closet

Kitchen Features

Kitchen Island
Walk In Pantry Cabinet Pantry

Additional Room Features

Great Room Living Room
Main Floor Laundry
Mud Room
Unfinished Future Space
Wet Bar

Garage Features

Oversized Garage

Outdoor Spaces

Covered Front Porch
Covered Rear Porch
Screened Porch

Rooms

Bathroom 2:

width 10' x depth 5'

Bathroom 3:

width 7' 6" x depth 8' 4"

Bedroom 2:

width 14' x depth 12'

Bedroom 3:

width 13' 4" x depth 12'

Bedroom 4:

width 13' 8" x depth 12'

Deck:

width 14' 4" x depth 6'

Dining:

width 14' x depth 13'

Exercise Room:

width 12' 3" x depth 4'

Foyer:

width 9' 6" x depth 8'

Great Room:

width 19' 10" x depth 20'

Kitchen:

width 14' x depth 16'

Laundry:

width 8' x depth 10'

Master Bath:

width 7' 8" x depth 16' 4"

Master Bedroom:

width 16' x depth 20'

Master Closet:

width 11' 4" x depth 10' 8"

Office:

width 13' 10" x depth 11'

Pantry:

width 7' 8" x depth 7' 8"

Rec Room:

width 19' 10" x depth 19' 8"

Screened Porch:

width 20' 8" x depth 15'

Wet Bar:

width 9' 2" x depth 7'

What's Included

Please note: This designer has the following the zip code restrictions: 30041, 30501, 30504, 30506, 30542, and 30566.

Plans are typically drawn to ¼” scale and include:

  • Foundation Plan(s): The foundation page shows concrete walls, footings, pads, posts, beams, bearing walls, and any retaining wall info (schematic only). Typical wall section details are shown for various footings. On plans drawn as walk out basements, if you choose the optional slab foundation, the slab foundation will not be reflected in the exterior elevations.
  • Floor Plan(s): Dimensioned exterior and interior wall framing along with labeled windows/doors sizes in each room of home. Wall heights are indicated for each level. Room sizes are indicated and any beams, posts and structural bearing points are called out.
  • Exterior Elevations: Plans include detailed front, sides, and rear exterior drawings. These drawings give notes on all exterior materials and finishes (siding, brick, stone, etc).
  • Overhead Roof Plan(s): Roof plan showing all hips, ridges, and valleys along with slope directions are indicated. Structural members are sized and called out if applicable.
  • Cross Section(s): A slice of the home from roof to foundation, showing relationships between floors, roof, and foundation.
  • Building Section(s): Building sections show changes in floor, ceiling, or roof height, and the relationship of one level to another. Some plans will have additional cross-sections and details as needed for displaying any special framing details applicable to the design.
  • Electrical Plan(s): The floorplans include an electrical legend, electrical fittings, lights, and outlets are shown.
  • Construction Notes / Detail(s): Shows basic parts and assemblies recommended for the home so the builder can see how things come together.
  • Code Drawn To: Plans meet the requirements of the ‘International Residential Code’ (year may vary). Compliance with further standards may need to be incorporated into your plan set, depending the requirements of your local/state building department — these typically are done locally.

FAQs

Are designs on Houseplans ready to submit to my building department for permitting?

It depends on where you're building. Our plans contain enough information for a professional builder to construct your home, but your local government may require additional information before permitting. We strongly advise that you talk with your builder before you get started. If you are building for yourself, we recommend visiting your local building department to start your diligence. Read more here.

Can I make changes to a plan?

Absolutely! Our modification service allows you to customize almost anything - whether it's adding an extra garage bay, adjusting square footage, changing the roof pitch, or more, the plan modification service is a great value and can be completed quickly. Additionally, if you purchase an electronic plan set (PDF or CAD), you may have the option to make changes locally. CAD files offer the most flexibility for custom edits. Just let us know what you're thinking, and we’ll provide an estimate and timeframe to get started. Learn more here.

How much does a house cost to build?

Find out! Build costs vary based on the size of the home, materials used, and local rates for goods and labor. Our Cost to Build report is a great way to get some basic costs dialed in before you order your plans. Just plug in your postal code, select your desired construction quality, and we'll calculate for you.

Learn more about Cost to Build reports here.

Can I trust Houseplans?

Founded in 2004, Houseplans works with hundreds of architects and designers to offer their plans at a fraction of the price of custom design. Houseplans has an "Excellent" rating on TrustPilot.

Read more about us here.

Does Houseplans offer live support?

Yes, Houseplans has a dedicated team of house plan advisors with decades of experience between them. You can reach them by calling, emailing, filling out a form on the page of a plan that you like, or going to the Contact Us page. We're available to talk every day, even on weekends.

Builder Advantage Home

Builder Advantage Program

Are you a Pro Builder? Join the club, save 5% on your first order, get exclusive discounts, and more.

Learn More

You may also like

Save Plan
Craftsman

Plan 126-236

$1195.00

beds2

bd

baths2

ba

stories1

story

square feet988

sq ft

Save Plan
Cottage

Plan 515-56

$650.00

beds2

bd

baths2

ba

stories1

story

square feet838

sq ft

Recently viewed plans

Exterior - Front Elevation for Craftsman House Plan #437-104 - 4 bed, 4 bath
Save Plan

Plan 437-104

$1650.00

beds4

bd

baths4

ba

stories1

story

square feet3869

sq ft