Craftsman Style House Plan - 5 Beds 4 Baths 4853 Sq/Ft Plan #929-800 - Houseplans.com
Search
REGISTER LOGIN SAVED No Saved Plans CART  Cart Empty
Don't lose your saved plans! Create an account to access your saves whenever you want. See our Terms & Conditions and Privacy Policy.
OR
Plan 929-800
Photographs may show modified designs.
Home  >  Style  >  Craftsman

Craftsman House Plan 929-800

Key Specs


Plan Sq Ft

4853
sq ft

Plan Bedrooms

5
Beds

Plan Bathrooms

4
Baths

Plan Floors

1
Floors

Plan Garages

3
Garages

Questions? Get Personalized Help
Select Plan Set Options
What's included?
$470.00
$165.00
$39.00
$165.00
$450.00
Subtotal
$2425.00
Best Price Guaranteed

Or order by phone: 1-800-913-2350
Questions? Get Personalized Help
 

 
Hours:
Ready for Your Call 7 Days a Week
Every Day 7 am - 8:30 pm Eastern

See Terms & Conditions and Privacy Policy.

Thanks for your question.

We will be in touch shortly.

Wow!
Cost to Build Reports
$1.99 with Code
CTB2026 (Limit 1)
Our Cost to Build Report gives you a personalized estimate for building your home, based on your location, plan, and materials.

Residential Construction Guide

Learn Building Basics

This downloadable, 26-page guide is full of diagrams and details about plumbing, electrical, and more.

Key Specs


Plan Sq Ft

4853
sq ft

Plan Bedrooms

5
Beds

Plan Bathrooms

4
Baths

Plan Floors

1
Floors

Plan Garages

3
Garages

Plan Description


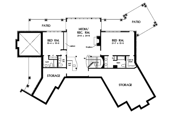
This extraordinary hillside estate features remarkable curb appeal from the stunning center dormer with arched window, to the triplet of dormers over the three-car garage. The interior is equally as luxurious, as the foyer, with cathedral ceiling, greets visitors in grand style. The open great room accesses one rear porch and overlooks another. Its proximity and natural flow into the kitchen simplifies entertaining. Perfect for family gatherings, the chef-friendly kitchen features an abundance of counter space, along with access to the dining room, screen porch with fireplace, and rear porch. Fireplaces also add warmth and ambience to the great room and media/rec room. The master suite is a true retreat with its own porch and more-than-generous closet. The luxurious bathroom makes it easy to relax at the end of the day. The basement level includes two large bedrooms, each with their own bath, while a media/rec room separates the two bedrooms.

This plan can be customized!

Tell us about your desired changes so we can prepare an estimate for the design service. Click the button to submit your request for pricing, or call 1-800-913-2350.

Floor Plans


Floor Plan - Lower Floor

Reverse
houseplans LOGO

BUILDER Advantage Program

PRO BUILDERS

Join the club and save 5% on your first order.
PLUS download exclusive discounts and more.

LEARN MORE

Floor Plan - Main Floor

Reverse

Full Specs & Features


Basic Features

Bedrooms : 5
Baths : 4
Stories: 1
Garages: 3

Dimension

Depth : 99' 3"
Height : 36' 9"
Width : 106'

Area

Total : 4853 sq/ft
Basement Living: 1755 sq/ft height 9'
First Floor: 3098 sq/ft
Garage: 877 sq/ft
* Total Square Footage typically only includes conditioned space and does not include garages, porches, bonus rooms, or decks.

Roof

Primary Pitch : 13:12
Roof Framing : Conventional
Roof Type : Shingle

Exterior Wall Framing

Exterior Wall Finish : Siding/Stone
Framing : Wood - 2x4

Bedroom Features

Fireplace
Formal Dining Room
Main Floor Master Bedroom
Walk In Closet

Kitchen Features

Kitchen Island
Kitchenette Wet Bar

Additional Room Features

Great Room Living Room
Hobby Rec Room Game Room
Main Floor Laundry
Media Room
Sunroom
Vaulted / Cathedral Ceilings

Outdoor Spaces

Covered Front Porch
Covered Rear Porch
Deck
Screened Porch

More

Jack & Jill Bath

Rooms

Balcony:

37 sq/ft width 5' 2" x depth 7' 4"

Bathroom 2:

108 sq/ft width 18' x depth 6'

Bathroom 3:

45 sq/ft width 9' 2" x depth 5'

Bathroom 4:

106 sq/ft width 13' 10" x depth 7' 8"

Bedroom 2:

168 sq/ft width 12' x depth 14'

Bedroom 2 Closet:

16 sq/ft width 8' x depth 2'

Bedroom 3:

168 sq/ft width 12' x depth 14'

Bedroom 3 Closet:

16 sq/ft width 8' x depth 2'

Bedroom 4:

199 sq/ft width 13' 4" x depth 15'

Bedroom 4 Closet:

11 sq/ft width 5' 6" x depth 2'

Bedroom 5:

323 sq/ft width 21' 7" x depth 15'

Coat Closet:

31 sq/ft width 5' 8" x depth 5' 6"

Deck:

258 sq/ft width 15' 6" x depth 16' 8"

Dining Room:

206 sq/ft width 15' 8" x depth 13' 2"

Foyer:

119 sq/ft width 21' 8" x depth 5' 6"

Game Room:

520 sq/ft width 21' 8" x depth 24'

Garage:

841 sq/ft width 23' 7" x depth 35' 8"

Gathering Room:

523 sq/ft width 21' 8" x depth 24' 2"

Hall Closet:

7 sq/ft width 2' x depth 3' 10"

Kitchen:

242 sq/ft width 15' 6" x depth 15' 8"

Linen Closet:

10 sq/ft width 3' 2" x depth 3' 2"

Master Bathroom:

181 sq/ft width 18' 7" x depth 9' 9"

Master Bedroom:

225 sq/ft width 15' x depth 15'

Master Closet:

189 sq/ft width 10' 4" x depth 18' 4"

Pantry:

8 sq/ft width 4' x depth 2'

Patio:

192 sq/ft width 24' 1" x depth 8'

Porch - Front:

36 sq/ft width 3' x depth 12' 2"

Porch - Left:

84 sq/ft width 10' 6" x depth 8'

Porch - Rear:

158 sq/ft width 19' x depth 8' 4"

Porch - Right:

84 sq/ft width 10' 6" x depth 8'

Porch - Screened:

258 sq/ft width 15' 6" x depth 16' 8"

Powder Room:

28 sq/ft width 5' 10" x depth 4' 11"

Storage:

506 sq/ft width 23' x depth 22'

Storage Closet:

193 sq/ft width 9' 6" x depth 20' 4"

Utility Room:

127 sq/ft width 10' 6" x depth 12' 2"

Wet Bar:

81 sq/ft width 6' 4" x depth 12' 10"

What's included in this plan set


See a sample plan set
Purchasing a CAD set gives you an unlimited build license. All other plan sets, excluding the Single Set for bidding purposes, allow you to build the home one time.
  • Cover Sheet: A rendering of the front exterior of the house.
  • Foundation Plan(s): This plan gives the foundation layout, including support walls, excavated and unexcavated areas, if any, foundation notes and details, and floor framing.
  • Floor Plan(s): These plans show the layout of each floor of the house. Rooms and interior spaces are carefully dimensioned and keys are given for cross-section details provided later in the plans, as well as window and door schedules. These plans may also show the location of kitchen appliances and plumbing fixtures, and may suggest locations for electrical fixtures, switches and outlets.
  • Exterior Elevations: Included are front, rear, left and right sides of the house. Exterior materials, details and measurements are also given.
  • Interior Elevations: The interior elevation drawings show a suggested layout design of cabinets, utility rooms, fireplaces, bookcases, built-in units and other special interior features depending on the nature and complexity of the item.
  • Overhead Roof Plan(s): The roof plan shows a bird's eye view of the overall layout of the roof, ridges, valleys, and slopes.
  • Cross Section(s): Important changes in floor, ceiling and roof heights or the relationship of one level to another are called out. Also shown, when applicable, are exterior details such as railing and banding.
  • Construction Notes / Detail(s): Shows basic parts and assemblies recommended for the home so the builder can see how things come together.
  • Door / Window Schedule(s): Sizes, quantities and descriptions of all doors and windows shown on the plan.
  • Structural Information: Overall layout and necessary details for the ceiling, second-floor framing (if applicable) and roof construction. If trusses are used, it's suggested that you use a local truss manufacturer to design your trusses to comply with your local codes and regulations. Important: design loads and weather conditions vary by region. As a result the size, spacing, and layout of all structural elements in this home design may need approval by a structural engineer or code official based on your specific site location.
  • Code Drawn To: Each plan is designed to be consistent with CABO One and Two Family Dwelling Code or the International Residential Code in effect at the time the plan was created. Modifications may be necessary to meet applicable building codes, ordinances, local climatic, and geographical design criteria. Consult a builder, architect or other construction professional as necessary. Manufacturer instructions should be followed for all materials, appliances, and systems. Heating/air conditioning layouts, plumbing pipe layouts, and electrical wiring layouts are not included. Consult a local mechanical contractor for systems suitable for local climate conditions.
* See important information before purchasing

Pricing


Plan Options

PDF Set

Best Value!
$2425.00
PDF plan sets are best for fast electronic delivery and inexpensive local printing.

CAD Unlimited Build

$4225.00
For use by design professionals to make substantial changes to your house plan and inexpensive local printing.

Study Set

$2225.00
One electronic set for bidding purposes only. Not a legal building set for construction.

Foundation Options

Walk Out Basement

$0.00
Ideal for a sloping lot, lower level with outdoor access.

*Options with a fee may take time to prepare. Please call to confirm.

Framing Options

Wood 2x4

$0.00
Wood 2x4 Exterior Walls

Wood 2x6

$470.00
Wood 2x6 Exterior Walls

*Options with a fee may take time to prepare. Please call to confirm.

Additional Options

Right-Reading Reverse

$470.00
Choose this option to reverse your plans and to have the text and dimensions readable.

Audio Video Design

$165.00
Receive an overlay sheet with suggested placement of audio and video components.

Construction Guide

$39.00
Educate yourself about basic building ideas with these four detailed diagrams that discuss electrical, plumbing, mechanical, and structural topics.

Lighting Design

$165.00
Receive an overlay sheet with suggested placement of lighting fixtures.

Material List

$450.00
A spreadsheet of building supplies needed to construct the infrastructure of your new house. Please note materials lists will not reflect add-ons such as alternate foundation and framing options.

*Options with a fee may take time to prepare. Please call to confirm.

Unless you buy an “unlimited” plan set or a multi-use license you may only build one home from a set of plans. Please call to verify if you intend to build more than once. Plan licenses are non-transferable and cannot be resold.

We offer a 90% credit when you upgrade from a set, that is not for construction, to a 5-Copy set (or greater).

Other Plans By This Designer

See all plans by
this designer

Browse Similar Plans

Need help? Let our friendly experts help you find the perfect plan!

Contact us now for a free consultation.