Don't lose your saved plans! 
Create an account to access your saves whenever you want. See our Terms & Conditions and Privacy Policy.
OR

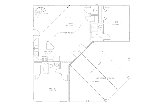
Contemporary House Plan 8-239 966 Sq Ft, 2 Bed, 1 Bath, 2 Floor, 0 Garage

Key Specs
  • 2
    Beds
  • 1
    Baths
  • 2
    Floors
  • 0
    Garages
  • 966
    Square Feet
This contemporary design floor plan is 966 sq ft and has 2 bedrooms and 1 bathrooms.

Questions on this plan?

New to the process and looking for some help to kick things off? Let us know a bit about your plans and we’ll be happy to help.

Budget & Customization Tools

Modify icon
Customize this Plan
Tell us about your desired changes and we can prepare an estimate.
Cost to Build icon
Cost to Build Report
A personalized estimate based on your location, plan, & materials.
Cost to Build icon
Residential Construction Guide
This downloadable, 26-page guide is full of diagrams and details about plumbing, electrical, and more.

Full specs & Features

Basic Features

Bedrooms: 2
Baths: 1
Stories: 2
Garages: 0

Dimension

Depth: 43'
Height: 25'
Width: 43'

Area

Total: 966 sq/ft
Bonus: 128 sq/ft
Main Floor: 966 sq/ft
Porch: 595 sq/ft
* Total Square Footage typically only includes conditioned space and does not include garages, porches, bonus rooms, or decks.

Ceiling

Bonus Ceiling: 9'
Main Ceiling: 9'

Bedroom Features

Main Floor Bedrooms
Main Floor Master Bedroom
Walk In Closet

Kitchen Features

Kitchen Island

Additional Room Features

Main Floor Laundry

Lot Characteristics

Suited For Corner Lot
Suited For View Lot

Outdoor Spaces

Covered Front Porch

More

Suited For Vacation Home
Unusual Shape

What's Included

  • Title Sheet - Isometric of Front Elevation
  • Concrete Slab Foundation Plan ‐ shows the foundation plan and details. ¼” = 1’-0. (Optional crawlspace with similar details)
  • Floor Plan(s) ‐ shows the placement of interior walls and the dimensions for rooms, doors/sizes, windows/sizes, stairways, etc. of each level of the house. ¼” = 1’-0 scale
  • Exterior Elevations ‐ shows the front, rear and sides of the house, including exterior materials, details, applicable dimensions and roof pitches. ¼” = 1’-0
  • Building Cross Section ‐ shows details of the house as though it were cut in slices from the roof to the foundation. The cross sections shows the general construction of the home, insulation, studwalls, rafters, etc,
  • Interior Elevations Millwork ‐ show the details of cabinets such as those found in the kitchen, bathroom and utility room, fireplaces and other special interior/exterior features.
  • Roof Plan ‐ provides a bird’s eye view of the roof's valleys, ridges and dormers.
  • Roof Framing Plan - provides guideline for rafters, ridges, hip framing
  • Electrical Plan ‐ suggested schematic shows the locations for fixtures, outlets, switches, fans, lighting, etc.
  • Notes & Details ‐ per IRC 2015
Plans are typically drawn to ¼” scale and include:
  • Foundation Plan(s): Most plans are available with a slab or crawlspace foundation. Optional walkout style basement (three walls masonry with a wood framed rear wall with notes for the builder to locate the windows and doors) and optional full basement foundation available if the plan allows, at an additional cost. (Walk out is not shown on elevations unless finished walk out.)
  • Floor Plan(s): Each home plan includes the floor plan showing the dimensioned locations of walls, doors, and windows as well as a schematic electrical layout.
  • Exterior Elevations: All plans include the exterior elevations (front, rear, right and left) that show and describe the finished materials of the house.
  • Overhead Roof Plan(s): This is a “bird’s eye” view showing the roof slopes, ridges, valleys and any saddles.
  • Cross Section(s): A slice of the home from roof to foundation, showing relationships between floors, roof, and foundation.**Cross section views available for an additional fee. ** (cut throughs where applicable)
  • Construction Notes / Detail(s): Shows basic parts and assemblies recommended for the home so the builder can see how things come together.
  • Title Sheet - Isometric of Front Elevation
  • Concrete Slab Foundation Plan ‐ shows the foundation plan and details. ¼” = 1’-0. (Optional crawlspace with similar details)
  • Floor Plan(s) ‐ shows the placement of interior walls and the dimensions for rooms, doors/sizes, windows/sizes, stairways, etc. of each level of the house. ¼” = 1’-0 scale
  • Exterior Elevations ‐ shows the front, rear and sides of the house, including exterior materials, details, applicable dimensions and roof pitches. ¼” = 1’-0
  • Building Cross Section ‐ shows details of the house as though it were cut in slices from the roof to the foundation. The cross sections shows the general construction of the home, insulation, studwalls, rafters, etc,
  • Interior Elevations Millwork ‐ show the details of cabinets such as those found in the kitchen, bathroom and utility room, fireplaces and other special interior/exterior features.
  • Roof Plan ‐ provides a bird’s eye view of the roof's valleys, ridges and dormers.
  • Roof Framing Plan - provides guideline for rafters, ridges, hip framing
  • Electrical Plan ‐ suggested schematic shows the locations for fixtures, outlets, switches, fans, lighting, etc.
  • Notes & Details ‐ per IRC 2015
  • FAQs

    Are designs on Houseplans ready to submit to my building department for permitting?

    It depends on where you're building. Our plans contain enough information for a professional builder to construct your home, but your local government may require additional information before permitting. We strongly advise that you talk with your builder before you get started. If you are building for yourself, we recommend visiting your local building department to start your diligence. Read more here.

    Can I make changes to a plan?

    Absolutely! Our modification service allows you to customize almost anything - whether it's adding an extra garage bay, adjusting square footage, changing the roof pitch, or more, the plan modification service is a great value and can be completed quickly. Additionally, if you purchase an electronic plan set (PDF or CAD), you may have the option to make changes locally. CAD files offer the most flexibility for custom edits. Just let us know what you're thinking, and we’ll provide an estimate and timeframe to get started. Learn more here.

    How much does a house cost to build?

    Find out! Build costs vary based on the size of the home, materials used, and local rates for goods and labor. Our Cost to Build report is a great way to get some basic costs dialed in before you order your plans. Just plug in your postal code, select your desired construction quality, and we'll calculate for you.

    Learn more about Cost to Build reports here.

    Can I trust Houseplans?

    Founded in 2004, Houseplans works with hundreds of architects and designers to offer their plans at a fraction of the price of custom design. Houseplans has an "Excellent" rating on TrustPilot.

    Read more about us here.

    Does Houseplans offer live support?

    Yes, Houseplans has a dedicated team of house plan advisors with decades of experience between them. You can reach them by calling, emailing, filling out a form on the page of a plan that you like, or going to the Contact Us page. We're available to talk every day, even on weekends.

    Builder Advantage Home

    Builder Advantage Program

    Are you a Pro Builder? Join the club, save 5% on your first order, get exclusive discounts, and more.

    Learn More

    You may also like

    Save Plan
    Contemporary

    Plan 938-119

    $2195.00

    beds3

    bd

    baths3.5

    ba

    stories1

    story

    square feet3083

    sq ft

    View Related Collections
    Shop All Styles

    Recently viewed plans

    Exterior - Front Elevation for Contemporary House Plan #8-239 - 2 bed, 1 bath
    Save Plan

    Plan 8-239

    $650.00

    beds2

    bd

    baths1

    ba

    stories2

    stories

    square feet966

    sq ft