Cost to Build 411-231 - Houseplans.com
Search
REGISTER LOGIN SAVED No Saved Plans CART  Cart Empty

Find out how much this house will cost to build

Our report will estimate your costs based on your location & materials

US & Canada Only

Or give us a call at 1-800-913-2350

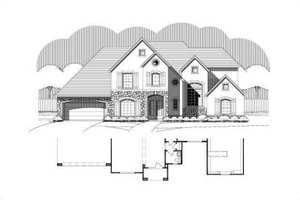
Plan 411-231

Wow! Cost to Build Reports $1.99 with Code CTBFALL (Limit 1)

Plan 411-231

4 Bedrooms |  3 Baths | 

4 Garages |  4454 sq/ft |  2 Stories | 

Our Cost to Build report is a helpful tool when budgeting for your new home. We will calculate basic build costs for your plan, based on the materials shown in the design and current pricing in your area of the U.S. or Canada. Your Cost to Build reports are typically completed within 2-3 business days and will be sent to the email on your order.

Houseplans.com Cost to Build reports are prepared by our experienced plan experts using up-to-date data supplied by Xactware, Inc. Each plan takes up to an hour to prepare. When you receive your estimate, we can work with you to adjust material and quality variables to make your estimate as accurate as possible.

Read FAQs