Modification Request

Customize your plan

Our professional plan designers will assist you with plan modifications providing insight to help craft unique, custom plan designs.

Confirm the plan pb-10
Step 1
Confirm the plan below is the one you’re looking to modify and is perfect for you.
Fill out the form pb-10
Step 2
Fill out the form below to send your changes to our design team. We'll review and send you an estimate.
Work with our Designer pb-10
Step 3
Work with our design professionals to fine-tune your plan and be one step closer to building your dream home!

Tell us a little more about your customizations

Fill out the form below so we can learn a little more about your upcoming project in order to get you what you need.

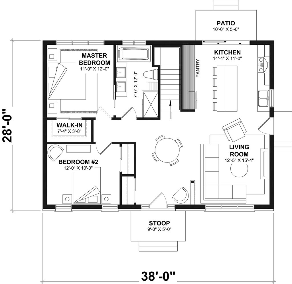
Selected Plan to Modify

23-691 Front-view
Plan 23-691 from $1450.00
  • beds 2 bd
  • baths ba
  • stories 1 story
  • sqft 1064 sq ft
View Plan
Have urgent questions? Give us a call.
1-800-913-2350