By Courtney Pittman
Raise your hand if you love the ever-so-popular barn-inspired look! These 1,000 sq. ft. barndominium floor plans hit the sweet spot with efficient layouts, contemporary amenities, and lots of storage. Big garages and workshops are welcome additions. See our roundup of modest barndo plans (each around 1,000 sq. ft.) below.
Barn-Inspired Garage Apartment Plan
 Barn-Inspired Garage Apartment Plan - Front Exterior
Barn-Inspired Garage Apartment Plan - Front Exterior
 Barn-Inspired Garage Apartment Plan - Garage Level
Barn-Inspired Garage Apartment Plan - Garage Level
 Barn-Inspired Garage Apartment Plan - Upper Level
Barn-Inspired Garage Apartment Plan - Upper Level
Nothing screams barndominium style like this garage apartment plan. We love the gable roof and the board-and-batten siding. The first floor gives you plenty of room for storage with a three-car garage. Relax on the covered patio.
Upstairs, you’ll find a one-bedroom apartment that includes a U-shaped kitchen with an island. Sliding glass doors open to a covered deck for even more outdoor living.
Barndo Plan with Wraparound Porch
 Barndo Plan with Wraparound Porch - Front Exterior
Barndo Plan with Wraparound Porch - Front Exterior
 Barndo Plan with Wraparound Porch - Main Level
Barndo Plan with Wraparound Porch - Main Level
If you’re looking for a timeless barndominium house plan – we’ve got you covered with this one-story design. Catch views and enjoy fresh air on the wraparound front porch. Inside, the island kitchen flows into the living room and the dining area.
Three bedrooms and a full hall bath rest at the back of the plan, along with the laundry room. A two-car garage completes this plan.
Rustic Barndominium Design
 Rustic Barndominium Design - Front Exterior
Rustic Barndominium Design - Front Exterior
 Rustic Barndominium Design - Garage Level
Rustic Barndominium Design - Garage Level
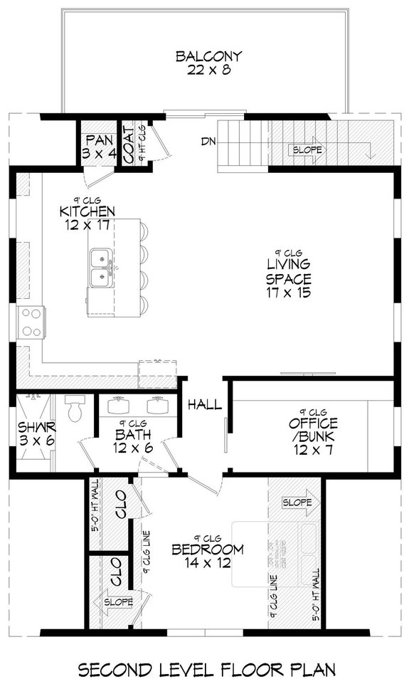
 Rustic Barndominium Design - Upper Level
Rustic Barndominium Design - Upper Level
Rustic details deliver country curb appeal to this one-bedroom barndominium house plan. On the first floor, a three-car garage offers room for storage. An entry with a built-in bench and a half bath round out this level.
Upstairs, the kitchen island sits at the center of the plan and serves the living space. Two closets highlight the bedroom. Need extra space? Check out the office/bunk room. Outdoor living options include a balcony and a covered porch.
Barndominium Plan with Shop
 Barndominium Plan with Shop - Front Exterior
Barndominium Plan with Shop - Front Exterior
 Barndominium Plan with Shop - Main Level
Barndominium Plan with Shop - Main Level
 Barndominium Plan with Shop - Upper Level
Barndominium Plan with Shop - Upper Level
This barndominium design lives larger than its modest footprint. The six-car garage includes a shop area, plus a tack room. Inside, the great room flows nicely into the kitchen, where an island is ready for relaxed meals.
The second level hosts a bedroom suite, an additional bedroom, and a full hall bath. A generous storage closet keeps items tidy. Don’t miss the sizable wraparound porch.
One-Story Barndominium Design
 One-Story Barndominium Plan - Front Exterior
One-Story Barndominium Plan - Front Exterior
 One-Story Barndominium Plan - Main Level
One-Story Barndominium Plan - Main Level
Step inside this cute barndominium house plan. The four-corner footprint makes this design builder-friendly. The main living area is anchored by a kitchen island that opens to the living room and the dining area. There’s ample room for groceries in the walk-in pantry.
The bedroom suite resides on the left side of the plan and gives you an extra-generous walk-in closet. A dreamy front porch offers shaded comfort.
Two-Car Garage with Shop
 Two-Car Garage with Shop - Front Exterior
Two-Car Garage with Shop - Front Exterior
 Two-Car Garage with Shop - Garage Level
Two-Car Garage with Shop - Garage Level
 Two-Car Garage with Shop - Upper Level
Two-Car Garage with Shop - Upper Level
A blend of stone and board-and-batten siding adds warmth to the exterior of this barn-inspired design. In the two-car garage, a large workshop gives you plenty of room for projects. Upstairs, the U-shaped kitchen opens to the vaulted living room.
Two bedrooms, a hall bath, and a laundry closet complete this plan.
Breezy Floor Plan
Breezy Floor Plan - Front Exterior
 Breezy Floor Plan - Main Level
Breezy Floor Plan - Main Level
Bright and open, this petite house plan shines with an efficient layout. An island in the kitchen encourages relaxed meals. The dining nook sits nearby.
A front porch and a side patio offer outdoor enjoyment. Two bedrooms share a full bath at the back of the plan. The two-car garage/shop is a smart touch.
Builder-Friendly Barndo Plan
 Builder-Friendly Barndo Plan - Front Exterior
Builder-Friendly Barndo Plan - Front Exterior
 Builder-Friendly Barndo Plan - Main Level
Builder-Friendly Barndo Plan - Main Level
In the market for an easy-to-build design? Check out this barndo plan, which features a four-corner footprint. Inside, the efficient layout makes it easy to move between the great room, the dining area, and the kitchen.
Two bedrooms conveniently sit near the hall bath and the laundry closet. Enjoy fresh air on the front porch.