Blog Home > 1,200 Sq. Ft. Cabin Plans

The Houseplans Blog

1,200 Sq. Ft. Cabin Plans

Live simply with these 1,200 sq. ft. cabin plans.

Hero Image

June 24, 2024

Livabl Brand

Can't find what you're looking for?

Give us a call below or reach out and we’ll make sure to be in contact!

Send Us a Message

By Courtney Pittman

Looking for a rustic design for your vacation home or everyday dwelling? Check out these cabin plans, each around 1,200 sq. ft. in size. Affordable and modest, they use space very wisely without skimping on the amenities. Look for kitchen islands, indoor/outdoor connections, flexible lofts, and more. See eight of our hand-picked favorites below.

Explore our collection of small cabin plans here.

Contemporary Cabin Plan Contemporary Cabin Plan Contemporary Cabin Plan - Exterior

Contemporary Cabin Plan Contemporary Cabin Plan - Main Level

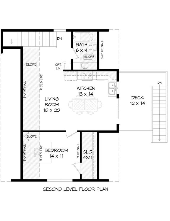
Contemporary Cabin Plan Contemporary Cabin Plan - Upper Level

Contemporary, bright, and just 26 feet wide, this modest cabin design would work well on a narrow lot. Floor-to-ceiling windows provide great views to the open living room, kitchen, and dining area. In the kitchen, an island features an eating bar and seats up to four.

A built-in bench and hooks near the entry are welcome touches. Two bedrooms share a hall bath, while a covered patio extends the living space. A loft could become an office or game room.

Compact Cabin Design Compact Cabin Design Compact Cabin Design - Exterior

Compact Cabin Design Compact Cabin Design - Main Level

Compact Cabin Design Compact Cabin Design - Upper Level

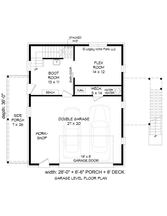
Here’s a compact cabin plan with lots of extras. For example, the main level gives you a two-car garage with a workshop, a boot room (with a built-in bench), and a handy flex room. Take in the great outdoors on the side porch.

Upstairs, you’ll find an open living area with a kitchen. Sliding glass doors open to the deck, making it easy to enjoy the view. A bedroom with a spacious closet and a bathroom complete this level.

Modern U-Shaped Cabin Plan Modern U-Shaped Cabin Plan Modern U-Shaped Cabin Plan - Exterior

Modern U-Shaped Cabin Plan Modern U-Shaped Cabin Plan - Main Level

This modern cabin design is all about outdoor living. A covered front porch greets you, while another covered porch and a deck wait out back. Inside, the smart layout encourages you to move between the living room and the kitchen with ease. Check out the cool office area nearby. A big shower highlights the primary suite.

Click through to see interior views!

A-Frame Plan with Wraparound Deck A-Frame Plan with Wraparound Deck A-Frame Plan with Wraparound Deck - Exterior

A-Frame Plan with Wraparound Deck A-Frame Plan with Wraparound Deck - Main Level

A-Frame Plan with Wraparound Deck A-Frame Plan with Wraparound Deck - Upper Level

Hello gorgeous! This A-frame house plan is full of style and thoughtful details. Don’t miss the big wraparound deck. The kitchen sports a raised eating bar that overlooks the fireplace-warmed living room and the dining nook.

A mudroom sits next to the pantry towards the back of the plan. There’s room for storage under the stairs. The primary suite, a small loft, and a balcony reside on the second level.

Two-Story Cabin Design Two-Story Cabin Design Two-Story Cabin Design - Exterior

Two-Story Cabin Design Two-Story Cabin Design - Main Level

Two-Story Cabin Design Two-Story Cabin Design - Upper Level

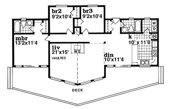
This charming cabin plan impresses with tall windows and an efficient layout. The heart of the home is the kitchen, where an island serves the great room and the dining area. A cathedral ceiling delivers an airy vibe and allows the space to feel larger than it is. Two bedrooms share a bath on this level, while a third bedroom waits upstairs. Don’t miss the convenient loft space.

Three-Bedroom Plan with Deck Three-Bedroom Plan with Deck Three-Bedroom Plan with Deck - Exterior

Three-Bedroom Plan with Deck Three-Bedroom Plan with Deck - Main Level

This contemporary cabin house plan dazzles with a large deck – perfect for outdoor relaxation. The vaulted living room flows nicely into the dining room and the U-shaped kitchen, encouraging easy living. The primary suite sits on one side of the plan, while two secondary bedrooms wait down the hallway.

Charming and Modern Charming and Modern Charming and Modern - Exterior

Charming and Modern Charming and Modern - Main Level

Here’s a 1,200 sq. ft. cabin plan that offers a well-thought-out floor plan, stylish charm, and modern amenities. Highlights include a handy home office, a spacious utility room, and a sundeck off the primary suite.

Don’t miss the big open layout between the main living areas. Head out to the covered wraparound porch when the weather is favorable.

Cabin Plan with Two Porches Cabin Plan with Two Porches Cabin Plan with Two Porches - Exterior

Cabin Plan with Two Porches Cabin Plan with Two Porches - Main Level

This budget-friendly cabin design gives you a super-simple footprint. Generous front and rear porches offer plenty of room to enjoy outdoor living. Inside, the layout is spacious and open with a vaulted ceiling in the main living areas.

The U-shaped kitchen boasts an eating bar that seats up to five. Two bedrooms rest quietly in the right wing of the plan.

Discover more small cabin plans.

Get Our Newsletter

Be the first to see new plans, special offers, and more.

By signing up for our newsletter, you agree to our Terms & Conditions and Privacy Policy, for an account

Blog Subscribe Icon