Blog Home > 2 Bedroom 1.5 Bath 800 Sq. Ft. House Plans

The Houseplans Blog

2 Bedroom 1.5 Bath 800 Sq. Ft. House Plans

Check out these small, affordable home designs.

Hero Image

July 19, 2024

Livabl Brand

Can't find what you're looking for?

Give us a call below or reach out and we’ll make sure to be in contact!

Send Us a Message

By Courtney Pittman

Smart and affordable, 2 bedroom 1.5 bath 800 sq. ft. house plans stand out with well-thought-out details like smart built-ins and comfortable living areas. Look for thoughtful outdoor living spaces like front porches and patios as well. We’ve gathered some of our favorite small designs (each around 800 square feet) that give you fun and functional layouts.

Explore our collection of 2 bedroom 1.5 bath house plans here.

Traditional Garage Apartment Plan Traditional Garage Apartment Plan Traditional Garage Apartment Plan - Front Exterior

Traditional Garage Apartment Plan Traditional Garage Apartment Plan - Main Level

Traditional Garage Apartment Plan Traditional Garage Apartment Plan - Upper Level

Here’s a traditional garage apartment plan that feels modern and fresh with mixed siding and a metal roof accent. The first level features a two-car garage and a half bath. Upstairs, an open layout creates flow between the living room and the kitchen. A dining nook waits nearby. Two beds and a full bath sit on the left side of this plan, while a deck is ready for outdoor living.

Stylish Narrow-Lot Design Stylish Narrow-Lot Design Stylish Narrow-Lot Design - Front Exterior

Stylish Narrow-Lot Design Stylish Narrow-Lot Design - Main Level

Stylish Narrow-Lot Design Stylish Narrow-Lot Design - Upper Level

Building on an infill lot? We’ve got you covered with this cute design. A front porch delivers curb appeal and offers outdoor enjoyment. The open-concept floor plan provides great flow between the living room, the dining area, and the kitchen. A half bath sits under the stairs. You’ll find two bedrooms and a hall bathroom on the second level.

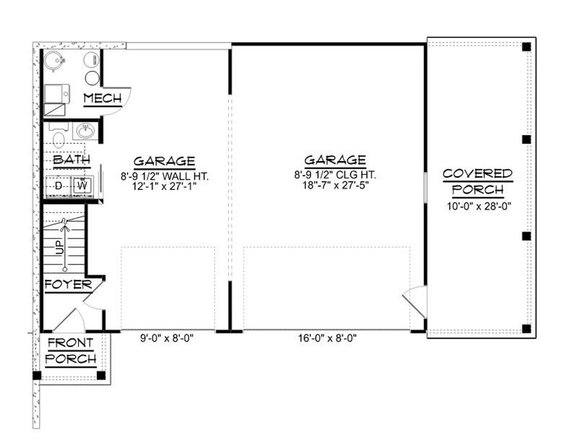
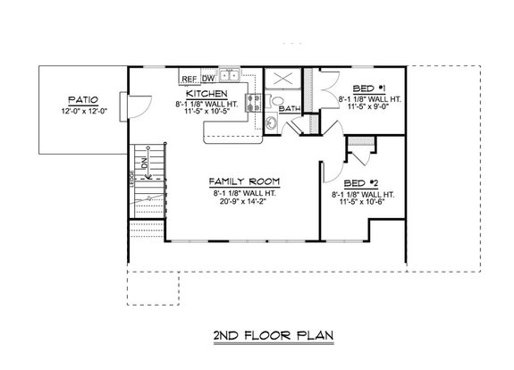
Country Plan with Three-Car Garage Country Plan with Three-Car Garage Country Plan with Three-Car Garage - Front Exterior

Country Plan with Three-Car Garage Country Plan with Three-Car Garage - Main Level

Country Plan with Three-Car Garage Country Plan with Three-Car Garage - Upper Level

Here’s a country house plan that won’t break the bank and would work well on a sloping lot. The first floor gives you a half bath and a garage that can hold up to three vehicles. Enjoy outdoor living on the wide covered porch. Upstairs, a spacious family room opens to the U-shaped kitchen, where an eating bar offers a place for relaxed meals. Don’t miss the patio nearby.

Two-Story Contemporary Plan Two-Story Contemporary Plan Two-Story Contemporary Plan - Front Exterior

Two-Story Contemporary Plan Two-Story Contemporary Plan - Main Level

Two-Story Contemporary Plan Two-Story Contemporary Plan - Upper Level

This contemporary house plan turns heads with sleek lines, metal siding, and a shed roof. The layout inside showcases easy flow between the great room and the kitchen, which includes an eating bar. Need room for storage? Check out the one-car garage.

Just off the main living areas, a generous patio maximizes the space. Conveniently located on the second level, the laundry room makes it easy to throw in a load.

Garage Plan with Apartment and Deck Upstairs Garage Plan with Apartment and Deck Upstairs Garage Plan with Apartment and Deck Upstairs- Front Exterior

Garage Plan with Apartment and Deck Upstairs Garage Plan with Apartment and Deck Upstairs - Main Level

Garage Plan with Apartment and Deck Upstairs Garage Plan with Apartment and Deck Upstairs - Upper Level

Inside this garage apartment plan is a layout that is practical and modern. The U-shaped kitchen offers an eating bar, plenty of counter space for easy meal prep, and access to the rear deck. Bright and airy, the family room sits close by. The two-car garage is a welcome amenity.

Small Plan with Big Curb Appeal Small Plan with Big Curb Appeal Small Plan with Big Curb Appeal - Front Exterior

Small Plan with Big Curb Appeal Small Plan with Big Curb Appeal - Main Level

Small Plan with Big Curb Appeal Small Plan with Big Curb Appeal - Upper Level

Here’s a small cottage plan with big curb appeal. Ready for outdoor enjoyment, a front porch and a rear patio give you room to relax. An open floor plan waits inside. Here’s a fun detail: a built-in bench with hooks in the entry keeps the clutter at bay. Work from home? You'll love the petite office nook on the second level.

Cute Cottage Design Cute Cottage Design Cute Cottage Design - Front Exterior

Cute Cottage Design Cute Cottage Design - Main Level

Cute Cottage Design Cute Cottage Design - Upper Level

This builder-friendly design boasts cute cottage style. The main level features a simple layout that feels relaxed. Check out the thoughtful built-in booth in the kitchen. Two bedrooms (one with a generous walk-in closet) share a bath on the second floor. Our favorite part: the adorable front porch.

Discover more 2 bedroom 1.5 bath house plans.

Get Our Newsletter

Be the first to see new plans, special offers, and more.

By signing up for our newsletter, you agree to our Terms & Conditions and Privacy Policy, for an account

Blog Subscribe Icon