Blog Home > 2 Bedroom 2 Bath Barndominium with Garage Floor Pans

The Houseplans Blog

2 Bedroom 2 Bath Barndominium with Garage Floor Pans

These simple barndo designs give you plenty of storage.

Hero Image
Courtney Pittman

August 5, 2024

Livabl Brand

Can't find what you're looking for?

Give us a call below or reach out and we’ll make sure to be in contact!

Send Us a Message

Barn-inspired house plans are hot right now. What do they have to offer? Think smart layouts, streamlined rooms, and (of course) bold curb appeal. Oh, and big garages with workshops. We’ve rounded up our favorite 2 bedroom 2 bath barndominium with garage floor plans that prove this rustic style is here to stay.

Want more? Browse our collection of 2 bedroom barndominium plans here.

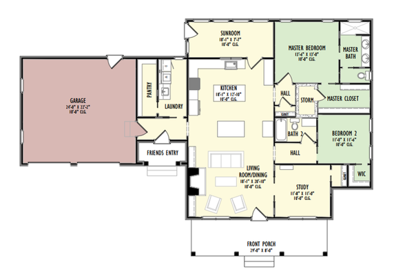
Barndo Plan with Sunroom

Barndo Plan with Sunroom Barndo Plan with Sunroom - Front Exterior

Barndo Plan with Sunroom Barndo Plan with Sunroom - Main Level

Here’s a beautiful barndominium plan with farmhouse features. We are head-over-heels for the wide front porch and the gabled dormer. Don’t miss the two-car garage. The super-open layout includes an island kitchen that overlooks the living room/dining area. Note the generous pantry.

Near the front, a study makes a great home office or hobby space. The primary suite rests at the back of the plan and gives you a spacious walk-in closet and a storm room. Our favorite part? The bright sunroom.

Under 2,000 Square Feet

Under 2,000 Square Feet Under 2,000 Square Feet - Front Exterior

Under 2,000 Square Feet Under 2,000 Square Feet - Main Level

Looking for a smaller barndominium? We’ve got you covered with this 1,737-square-foot plan. The barn-inspired exterior gives you a metal gable roof and mixed siding. Inside, the open kitchen shows off a big island that seats up to five, lots of counter space, and a walk-in pantry.

A cathedral ceiling draws the eye up in the main living areas. The primary suite enjoys privacy in the left wing of the plan and features a sizable closet and a shower. Enjoy outdoor living on the covered back porch. Check out the one-car garage.

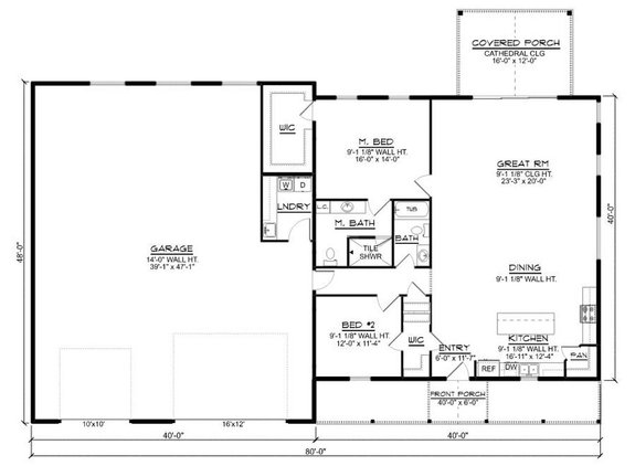
Huge Garage Plan with Living Space Above

Huge Garage Plan with Living Space Above Huge Garage Plan with Living Space Above - Front Exterior

Huge Garage Plan with Living Space Above Huge Garage Plan with Living Space Above - Garage Level

Huge Garage Plan with Living Space Above Huge Garage Plan with Living Space Above - Upper Level

Need room for storage? Maybe a shouse plan (that is, a combo of workshop and house) is for you. The first level gives you a three-car garage, plus a generous workshop area. Relax on the covered wraparound porch.

Upstairs, the vaulted living room flows effortlessly into the kitchen and the dining nook. Two bedrooms and two hall baths enjoy privacy on the left side of the plan. The laundry room sits conveniently close by.

Loving any of the plans you're seeing? Register now to easily save and return to your favorites!

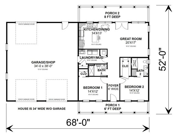
Modest Barndominium Plan

Modest Barndominium Plan Modest Barndominium Plan - Front Exterior

Modest Barndominium Plan Modest Barndominium Plan - Main Level

If you’re in the market for a small house plan – you’re in luck. Clocking in at 1,292 square feet, this barndominium design stands out. Board-and-batten siding and a metal gable roof deliver country curb appeal. A modern floor plan waits inside. Hang out in the island kitchen or in the nearby great room.

Keep items organized in the smart mudroom on the way in from the three-car garage/shop. A foyer sits between the primary suite and the other bedroom. French doors connect the great room to the covered porch out back.

See tons of small house plans here.

Generous Covered Deck Generous Covered Deck Generous Covered Deck - Front Exterior

Generous Covered Deck Generous Covered Deck - Main Level

Here’s a barndo plan that turns heads with an impressive exterior. A walk-in closet shines in the primary suite. Overlooking the great room, an angled island in the kitchen features an eating bar. The dining nook sits close by. Enjoy a morning cup of Joe on the back covered deck.

You’ll find plenty of room for storage in the three-car garage. An additional bedroom and a full bath reside at the front of the plan. For more space, finish the walkout basement.

Super-Open Layout

Super-Open Layout Super-Open Layout - Front Exterior

Super-Open Layout Super-Open Layout - Main Level

An attention-grabbing facade and a layout inside to match? Yes please. The great room opens completely to the island kitchen and the dining area. Sliding glass doors open to the covered rear porch. You’ll love the sizable closet in the primary suite. On the right side of the plan, the large garage gives you plenty of storage space.

One-Story Plan with Two-Car Garage

One-Story Plan with Two-Car Garage One-Story Plan with Two-Car Garage - Front Exterior

One-Story Plan with Two-Car Garage One-Story Plan with Two-Car Garage - Main Level

This one-story barndominium floor plan (see more single-story barndominium plans here). gives you 1,783 square feet of living space. The open living areas feature a wall of sliding glass doors that leads to a covered back porch. Both bedrooms (including the primary suite) keep clothes tidy with walk-in closets.

Explore more 2 bedroom barndominium plans.

Get Our Newsletter

Be the first to see new plans, special offers, and more.

By signing up for our newsletter, you agree to our Terms & Conditions and Privacy Policy, for an account

Blog Subscribe Icon