By Courtney Pittman
We’ll never say no to 2 car garages with lofts.
Blending practical storage with the bonus of a living space, these efficient designs deliver a host of benefits.
The main level easily accommodates two vehicles, while the loft/living space offers flexible options for living, working, or relaxing – maximizing both space and property value.
Whether you’re seeking additional storage, parking solutions, or a unique living space, these multifunctional plans offer a quiet retreat that’s conveniently detached from the main home.
See our 2 car detached garage ideas below.
Ready for more inspo? Discover our collection of garage apartment plans here.
Country-Inspired 2 Car Garage with Loft
Country-Inspired 2 Car Garage with Loft - Front Exterior
Country-Inspired 2 Car Garage with Loft - Main Level
Country-Inspired 2 Car Garage with Loft - Upper Level
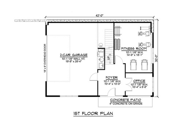
Here’s a 2 car garage with loft plan that offers 1,666 square feet of flexible space. Note the board-and-batten siding and metal roof accents. On the ground level, a two-car garage makes it easy to store items nicely.
Flexible spaces include a fitness room and a home office. Upstairs, the spacious loft features a kitchen with a large island. You’ll find ample room for organization with a walk-in closet.
Modern and Bright
Modern and Bright - Main Level
Modern and Bright - Upper Level
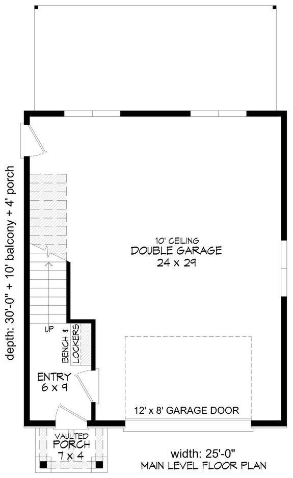
This garage apartment plan shines with modern details (like sleek lines and a shed roof). Lots of windows flood the interior with natural light. On the second level, the open-concept layout features a bright living space and a kitchen.
French doors open to a spacious balcony for streamlined indoor/outdoor living. A bedroom and a full bath rest at the opposite end. A two-car garage highlights the first floor, along with a bench and lockers in the entry.
Cottage Garage Plan with Apartment Above
Cottage Garage Plan with Apartment Above - Front Exterior
Cottage Garage Plan with Apartment Above - Main Level
Cottage Garage Plan with Apartment Above - Upper Level
Hello gorgeous! This 2 car garage apartment plan has us drooling over its cute curb appeal. We love the decorative shutters, the metal roof, and the stylish garage doors.
The first floor can accommodate two vehicles. Upstairs, the kitchen opens to the living room for a relaxed vibe. The bedroom has a big walk-in closet and direct access to the full bath.
Two-Bedroom Design
Two-Bedroom Design - Front Exterior
Two-Bedroom Design - Main Level
Two-Bedroom Design - Upper Level
Here’s a compact modern garage apartment plan that takes advantage of every square inch of space. The first floor lives large with a two-car garage. Upstairs, a versatile loft could become an office or a living room.
Two bedrooms deliver even more livable space, while a bathroom sits nearby. Nice weather? Sliding glass doors open to a generous deck.
Garage with Workshop
Garage with Workshop - Front Exterior
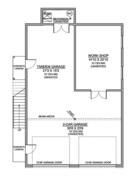
Garage with Workshop - Main Level
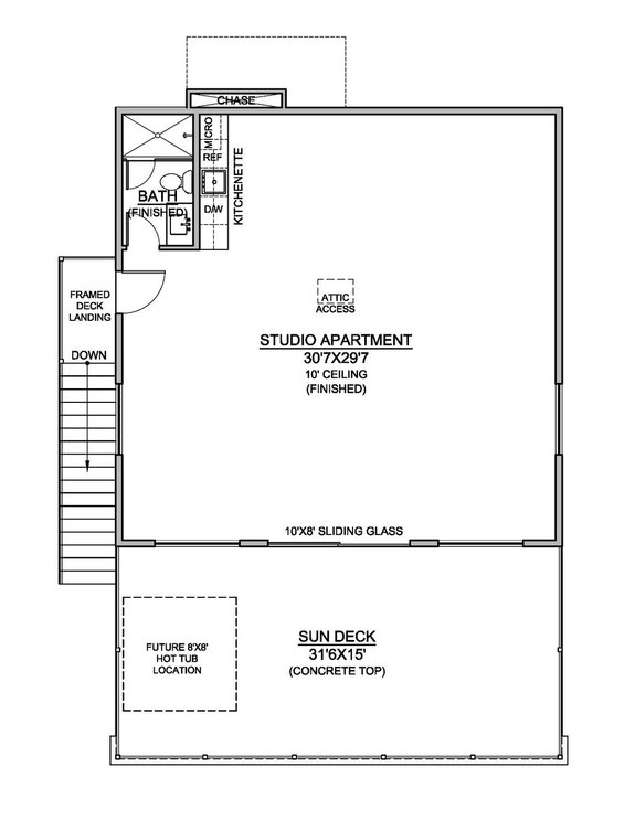
Garage with Workshop - Upper Level
Mixed siding and sleek lines give this contemporary garage apartment plan plenty of style. A large two-car tandem garage offers room for storage. Have a project in mind? Check out the dedicated workshop space.
On the second level, a handy kitchenette shines in the studio apartment. Our favorite part? The super-spacious sun deck, which features a future hot tub location.
Affordable ADU Plan
Affordable ADU Plan - Front Exterior
Affordable ADU Plan - Main Level
Affordable ADU Plan - Upper Level
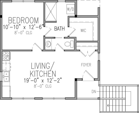
This affordable ADU (accessory dwelling unit) plan makes the most of its small size (622 square feet of living space) with a comfortable layout. The upper level gives you an open kitchen and a living area that feels airy and bright. A half bath waits close by.
In the foyer, a closet is ready to hold coats. The bedroom suite shows off a big shower and a walk-in closet. Store up to two vehicles in the roomy garage.
Craftsman Style 2 Car Garage
Craftsman Style 2 Car Garage - Front Exterior
Craftsman Style 2 Car Garage - Main Level
Craftsman Style 2 Car Garage - Upper Level
This versatile 720-square-foot design shows off Craftsman style. Two dormer windows and garage doors with square windows deliver charming curb appeal. Storage is made easy thanks to the two-car garage.
Upstairs, the spacious loft could be used as a detached home office, providing a quiet workspace. It could also become a hobby studio or a workshop for DIY projects—the options are endless!
Light-Filled Contemporary Plan
Light-Filled Contemporary Plan - Front Exterior
Light-Filled Contemporary Plan - Main Level
Light-Filled Contemporary Plan - Upper Level
We can’t help but swoon over this stunning backyard retreat. Featuring a two-car garage with a workshop area, this design offers plenty of room for storage and projects. A bench and hooks highlight the entry.
The second floor features a light-filled layout that’s up-to-date and modern. French doors connect the living room, the morning room, and the kitchen to the breezy balcony/deck. A bedroom and a full bath rest at the back of the plan.
