Looking to build a home that is trendy and timeless? Check out these barn-inspired layouts. Each features a modern floor plan, plentiful storage space, big-time curb appeal, and more. Here’s a batch of our favorite 60 x 40 (or close to it) barndominium floor plans.
Want more? Browse our collection of barndominium floor plans here.
Small Barndominium with Generous Wraparound Porch
Small Barndominium with Generous Wraparound Porch - Front Exterior
Small Barndominium with Generous Wraparound Porch - Main Level
A seamless layout and a wraparound porch highlight this barndominium floor plan. The kitchen, the dining area, and the living room share one open space. Two bedrooms share a hall bath at the back of the design. A large two-car garage and a shop area reside on the right.
Explore small barndominium plans.
Lots of Storage
Lots of Storage - Front Exterior
Bright and open, this barn-style design gives you rustic curb appeal and a relaxed floor plan. The big kitchen island serves the great room. Making it easy to age in place, the primary suite is located on the main level and features a walk-in closet.
The two-car garage shows off a workshop area. Upstairs, two bedrooms (each with a walk-in closet) share a full bath. A flexible loft and a wraparound porch complete this plan.
Loving any of the plans you're seeing? Register now to easily save and return to your favorites!
60 x 40 Barndominium with Big Kitchen Island
60 x 40 Barndominium with Big Kitchen Island - Front Exterior
60 x 40 Barndominium with Big Kitchen Island - Main Level
60 x 40 Barndominium with Big Kitchen Island - Upper Level
An effortless layout and a generous wraparound porch are just some of the highlights of this barndominium design. The U-shaped kitchen takes center stage with a spacious island that seats up to six. Storage under the stairs is a welcome detail.
A large two-car garage/shop area takes up space on the left side of the plan. Two secondary bedrooms share a hall bath on the second level. Nearby, the primary suite stands out with a big walk-in closet and an extra-roomy shower.
See barndominium floor plans with shops.
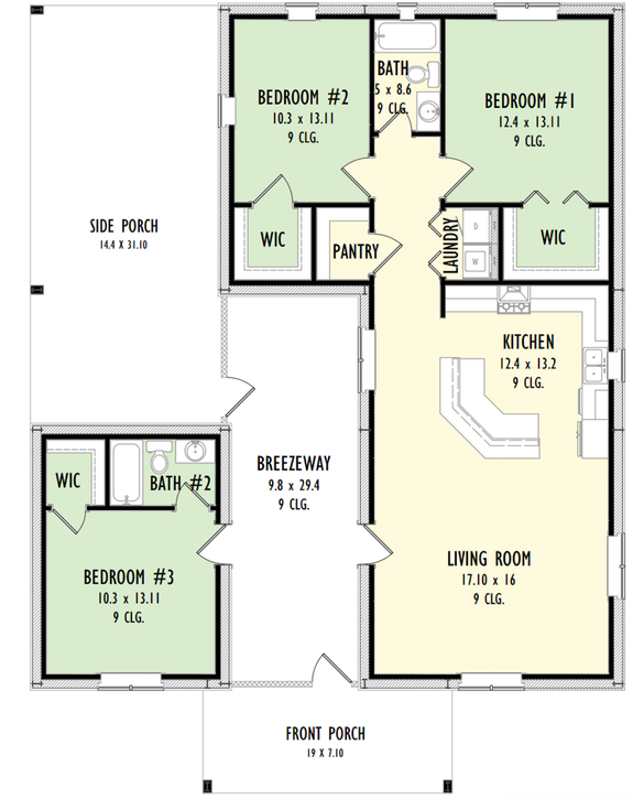
Barndo Plan with Breezeway
Barndo Plan with Breezeway - Front Exterior
Barndo Plan with Breezeway - Main Level
Looking for a budget-friendly design? Check out this modest barndominium floor plan. The simple footprint gives you a layout that is open and functional. The kitchen island serves the living room, with a walk-in pantry nearby.
At the back of the plan, two bedrooms offer walk-in closets and share a full bath. A breezeway connects the primary suite to the main house. There’s ample room for outdoor relaxation on the side porch.

