Blog Home > Build a Barndominium in 2025: Hot Open-Concept Floor Plans

The Houseplans Blog

Build a Barndominium in 2025: Hot Open-Concept Floor Plans

Check out these hot open-concept floor plans.

Hero Image

May 16, 2025

Livabl Brand

Can't find what you're looking for?

Give us a call below or reach out and we’ll make sure to be in contact!

Send Us a Message

By Courtney Pittman

Barndominiums are having a moment – and we're fully on board.

First, what is a barndominium?

The term used to describe a repurposed barn, or a new metal-framed structure with a simple open interior. And some of them are still designed as metal house plans.

But these days, you'll find hundreds of barndominium plans with conventional wood framing.

Most barndominium plans showcase simple four-corner footprints, open layouts, and oversized garages (often with room for an RV).

With rustic curb appeal and open-concept floor plans, these designs will have you wanting to build a barndominium ASAP.

Need more inspo? Discover our barndominium house plans collection here.

Read more: Is it cheaper to build a house or a barndominium in 2025?

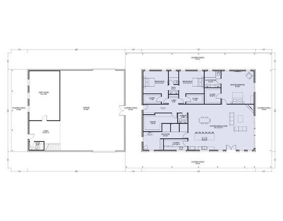
Modern Barndominium Plan

Modern Barndominium Plan Modern Barndominium Plan - Front Exterior

Modern Barndominium Plan Modern Barndominium Plan - Main Level

Modern Barndominium Plan Modern Barndominium Plan - Upper Level

Who doesn’t love a good modern barndominium plan? We sure do! And this one is designed for metal framing. It also boasts an expansive porch that wraps around the entire perimeter of the home. The four-car garage includes a lobby area and a craft room.

Inside, the open-concept floor plan creates a relaxed atmosphere. The kitchen island effortlessly flows into the dining area and the great room, where floor-to-ceiling windows draw in natural light. Store groceries in the extra-big pantry. Every bedroom, including the primary suite, features a walk-in closet.

Tiny Barndominium Plan with Stalls and Hay Loft

Tiny Barndominium Plan with Stalls and Hay Loft Tiny Barndominium Plan with Stalls and Hay Loft - Front Exterior

Tiny Barndominium Plan with Stalls and Hay Loft Tiny Barndominium Plan with Stalls and Hay Loft - Main Level

Tiny Barndominium Plan with Stalls and Hay Loft Tiny Barndominium Plan with Stalls and Hay Loft - Upper Level

This functional barn-inspired plan lives larger than its modest footprint. The first level gives you a drive-through tractor storage area. Two stalls, a tack room, and hay storage wait on the left side of the design.

On the right, the living room enjoys easy access to the open kitchen. A bedroom and a full bath rest at the back. Upstairs, a hay loft opens up all kinds of possibilities.

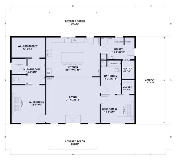
Uncomplicated Floor Plan

Uncomplicated Floor Plan Uncomplicated Floor Plan - Front Exterior

Uncomplicated Floor Plan Uncomplicated Floor Plan - Main Level

Delivering functionality in just 1,750 square feet, this barndominium plan shows off a timeless exterior and a four-corner footprint. The living room flows seamlessly into the kitchen, where an island seats up to four.

Tucked away on the left side of the plan, the primary suite enjoys privacy, a walk-in shower, and ample closet space. An additional bedroom and a full bath reside on the right. Front and rear porches offer outdoor living. Don’t miss the handy carport.

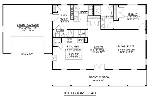
Two-Story Barndo Plan

Two-Story Barndo Plan Two-Story Barndo Plan - Front Exterior

Two-Story Barndo Plan Two-Story Barndo Plan - Main Level

Two-Story Barndo Plan Two-Story Barndo Plan - Upper Level

Here’s a barndominium plan that exudes modern ambiance with an open floor plan and sleek lines. The L-shaped kitchen features an island and flows into the open dining area and the living room. The first-floor primary suite makes it easier to age in place.

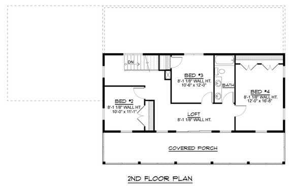
Just off the two-car garage, a mudroom with lockers gives you plenty of space for organization. Three bedrooms and a loft share a hall bath on the second level.

Mudroom with Lockers

Mudroom with Lockers Mudroom with Lockers - Front Exterior

Mudroom with Lockers Mudroom with Lockers - Main Level

This must-see barndominium plan features plenty of room for storage with a spacious two-car garage. We love the covered wraparound porch. The open living room shines with a cathedral ceiling, skylights, and a fireplace.

Nearby, the U-shaped kitchen includes an island, a snack bar, and a walk-in pantry. The organized mudroom with lockers is a welcome detail. In the primary suite, a spa-like bath boasts a wet room.

Three-Story Barndominium Design

Three-Story Barndominium Design Three-Story Barndominium Design - Front Exterior

Three-Story Barndominium Design Three-Story Barndominium Design - First Level

Three-Story Barndominium Design Three-Story Barndominium Design - Second Level

Three-Story Barndominium Design Three-Story Barndominium Design - Third Level

Here’s a barndominium plan that impresses with three levels of heated living space. The first level gives you a two-car garage, two bedroom suites, a rec room with storage, and a mud hall. On the second floor, the kitchen features an island with a view of the vaulted great room, where a double-sided fireplace takes center stage.

Other highlights include a den with built-in shelves, a versatile loft, a wet bar, a trash chute, and a butler's pantry. Don’t miss the covered deck.

Hardworking Layout

Hardworking Layout Hardworking Layout - Front Exterior

Hardworking Layout Hardworking Layout - Main Level

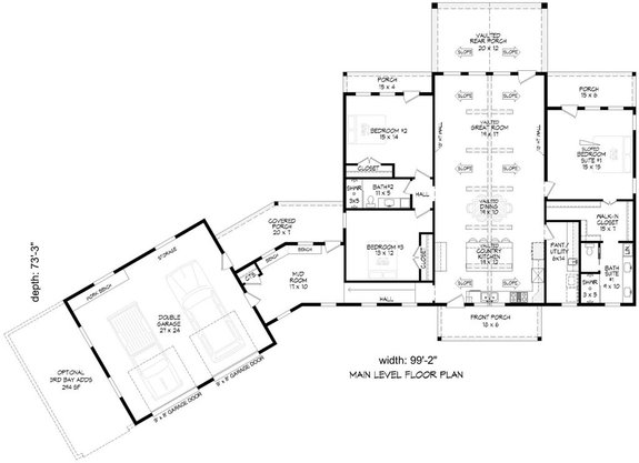
Barn-inspired style meets modern luxury in this standout barndominium design. Board-and-batten siding, a metal roof, a welcoming front porch, and rustic lighting deliver timeless curb appeal. At the heart of the home, the super-open layout features an island kitchen, a dining area, and a vaulted great room.

Check out the handy sink in the walk-in pantry. Front and rear porches provide plenty of room for outdoor living. A workbench and dedicated storage space highlight the two-car garage, plus you can add an optional third bay if needed. Our favorite part? The extra-generous mudroom.

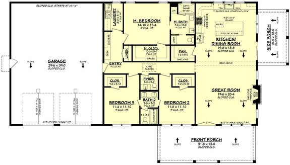
Four-Corner Footprint

Four-Corner Footprint Four-Corner Footprint - Front Exterior

Four-Corner Footprint Four-Corner Footprint - Main Level

Looking to build a barndominium plan with charming curb appeal? Here ya go! This simple design features a four-corner footprint and an open-concept floor plan. An island connects the kitchen with the dining area and the vaulted great room. Built-in shelves highlight the walk-in pantry.

A custom shower and a sizable closet (with a dresser) stand out in the primary suite, while the laundry room waits conveniently close by. Check out the desk and the lockers in the mudroom. Outdoor living options include two porches.

See more barndominium house plans.

Get Our Newsletter

Be the first to see new plans, special offers, and more.

By signing up for our newsletter, you agree to our Terms & Conditions and Privacy Policy, for an account

Blog Subscribe Icon