By Courtney Pittman
These well-designed contemporary home plans emphasize the heart of the home – the kitchen. Think big islands, casual seating, generous pantries, and plenty of prep space. Check out 11 of our favorites below.
Want more? Browse our contemporary home plans collection here.
Contemporary Home Plan with Sizable Pantry
Contemporary Home Plan with Sizeable Pantry 1070-178 - Front Exterior
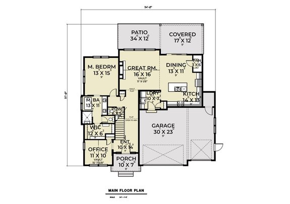
Contemporary Home Plan with Sizable Pantry 1070-178 - Main Floor Plan

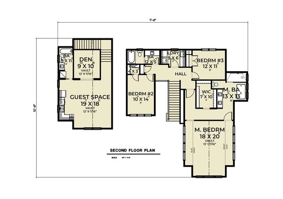
Contemporary Home Plan with Sizable Pantry 1070-178 - Upper Floor Plan
Contemporary Home Plan with Sizable Pantry 1070-178 - Lower Floor Plan
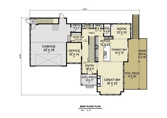
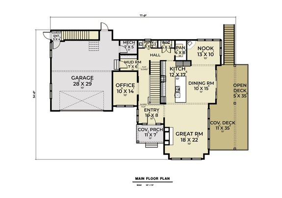
This contemporary home plan gives you sleek curb appeal and would work well on a sloping lot. Inside, the open kitchen takes center stage with a big island and loads of counter space. The walk-in pantry is ready to hold groceries (take a look at these pantry organization ideas from Apartment Therapy). An office on the main level gives you a quiet place to work.
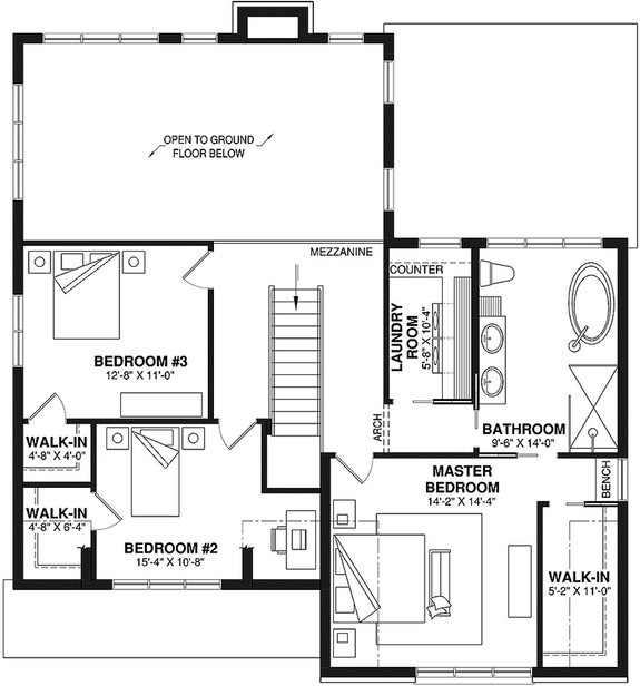
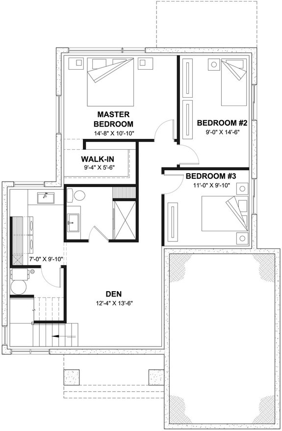
Upstairs, the luxurious primary suite features a walk-in closet and a spa-like bathroom. A flexible guest space above the two-car garage shows off a kitchenette, a den area, and a full bath. Don’t miss the spacious covered deck just off the dining room.
Farmhouse-Inspired Touches
Farmhouse-Style Touches 23-2776 - Front Exterior
Farmhouse-Style Touches 23-2776 - Main Floor Plan
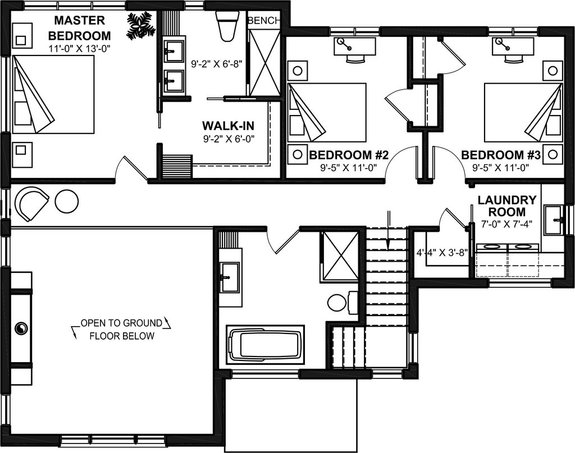
Farmhouse-Style Touches 23-2776 - Upper Floor Plan
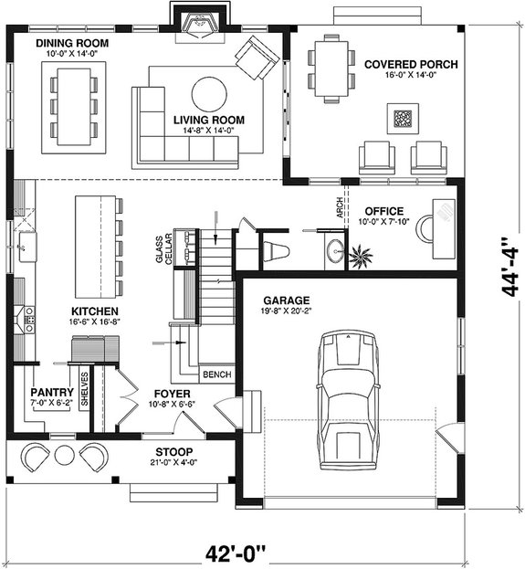
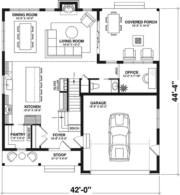
Here’s a contemporary home plan with a farmhouse-style exterior and thoughtful layout details. The open kitchen features a big island and plenty of space for meal prep. Check out the cool built-in cellar and the handy pantry. The nearby living room opens to the covered porch for easy outdoor living.
Work from home in the smart office space on the main level. Conveniently located on the second floor, the roomy laundry room is easy to reach from the primary suite and the two secondary bedrooms.
Contemporary Design with Lots of Storage
Contemporary Design with Lots of Storage 20-2502 - Front Exterior
Contemporary Design with Lots of Storage 20-2502 - Main Floor Plan
Contemporary Design with Lots of Storage 20-2502 - Upper Floor Plan
This striking contemporary design gives you a functional floor plan that feels cool and modern. The super-open layout creates easy flow between the island kitchen, the family room, and the dining area. An impressive pantry (with built-in shelves) adds extra storage.
Other highlights include not one but two primary suites (one on the main floor and one upstairs), a flex room, and a family lounge on the second floor.
Modern and Open
Modern and Open 1070-175 - Front Exterior
Modern and Open 1070-175 - Main Floor Plan
Modern and Open 1070-175 - Upper Floor Plan
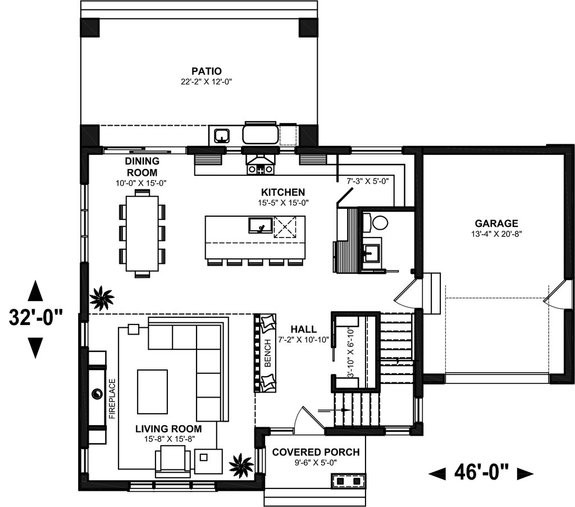
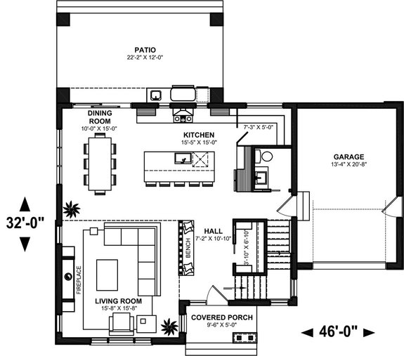
This stylish home gives you contemporary farmhouse vibes. Check out the big kitchen and the covered back porch and patio. A vaulted ceiling adds volume to the great room. For extra convenience, the primary suite is located on the main floor and features a huge walk-in closet, dual sinks, a modern shower, and a soaking tub.
An office near the front offers a place to work from home. Two additional bedrooms share a full bath on the second level, while a bonus room offers versatility.
Contemporary Cottage Style
Contemporary Cottage Style 23-2766 - Front Exterior
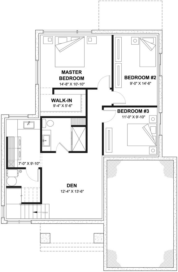
Contemporary Cottage Style 23-2766 - Main Floor Plan
Contemporary Cottage Style 23-2766 - Lower Floor Plan
Featuring cottage style, this contemporary home plan makes relaxing easy with an open floor plan and smart details throughout. Grab a snack at the big kitchen island. A cathedral ceiling in the main living areas is a nice touch.
Highlights of the lower level include the generous den, three bedrooms, a sleek bathroom, and a nice laundry room.
Modern Layout Under 2,000 Square Feet
Modern Layout Under 2,000 Square Feet 23-2761 - Front Exterior
Modern Layout Under 2,000 Square Feet 23-2761 - Main Floor Plan
Modern Layout Under 2,000 Square Feet 23-2761 - Upper Floor Plan
This 1,912-square-foot contemporary home plan offers a layout that is simple and modern. The kitchen overlooks the living room and offers a big island for easy serving. A bench in the entryway is a welcome detail.
Upstairs, the primary suite gives you a generous bedroom, a large shower, and tons of clothing storage. Two additional bedrooms, a full bath, and a laundry room (check out this laundry room makeover from Country Living) round out this level.
Small Plan with Updated Details
Small Plan with Updated Details 23-2755 - Front Exterior
Small Plan with Updated Details 23-2755 - Main Floor Plan
This small contemporary home plan stands out with special details like well-placed storage and a spa-like primary suite. The kitchen’s island adds casual seating next to the dining room.
Step through the living room’s sliding glass doors to enjoy outdoor living on the rear deck. The handy mudroom gives you storage and space for a stacked washer and dryer.
Big Covered Porch
Big Covered Porch 1064-153 - Front Exterior
Big Covered Porch 1064-153 - Main Floor Plan
Big Covered Porch 1064-153 - Upper Floor Plan
Here’s a clean-lined, contemporary two-story home. The open island kitchen and dining area deliver a relaxed vibe. Hidden on the right side of the main floor plan, the primary suite enjoys privacy and direct access to the laundry room.
The upper floor offers two secondary bedrooms, a loft space, and a full bath. Outdoor living is emphasized with a large, covered porch just off the main living areas.
Super-Spacious Kitchen
Super-Spacious Kitchen 923-214 - Front Exterior
Super-Spacious Kitchen 923-214 - Main Floor Plan
Here’s a kitchen plan that really understands modern living. For example, the extra-big pantry provides plenty of space for storage, while the expansive island overlooks the fireplace-warmed great room. The striking primary suite sports two vanities, a freestanding tub, a large shower, and two walk-in closets.
Two secondary bedrooms (one a suite) and a full bath sit on the right side of the floor plan. Access the covered back porch from the great room via sliding glass doors.
Contemporary Design with Abundant Windows
Contemporary Design with Abundant Windows 1070-7 - Front Exterior
Contemporary Design with Abundant Windows 1070-7 - Main Floor Plan
Contemporary Design with Abundant Windows 1070-7 - Upper Floor Plan
Contemporary Design with Abundant Windows 1070-7 - Lower Floor Plan
This contemporary home plan is ready to capture the view with tons of windows. In the kitchen, an island is open to the great room and dining area. There’s no shortage of outdoor living space thanks to the spacious deck and patio.
The second floor hosts the primary suite (with a big walk-in closet), an additional bedroom, and a full bath. Check out the smart mudroom and the two-car garage on the lower level.
Two Primary Suites
Two Primary Suites 20-2493 - Front Exterior
Two Primary Suites 20-2493 - Main Floor Plan
Two Primary Suites 20-2493 - Upper Floor Plan
With its clean, sleek lines, open floor plan, and special amenities, this contemporary home plan is a showstopper. A convenient mudroom (with lockers) keeps clutter at bay.
Need a private place to work? Check out the office near the front. The upper level holds an additional bedroom suite, while two more bedrooms share a Jack-and-Jill bath.
