Blog Home > Cozy 1800 Sq. Ft. Barndominium Floor Plans

The Houseplans Blog

Cozy 1800 Sq. Ft. Barndominium Floor Plans

Browse these 1,800 sq. ft. barndominium floor plans.

Hero Image

November 22, 2023

Livabl Brand

Can't find what you're looking for?

Give us a call below or reach out and we’ll make sure to be in contact!

Send Us a Message

By Devin Uriarte

What’s included in these four 1,800 sq. ft. barndominium plans are simple layouts ideal for cozy living and spacious bedrooms perfect for guests. These floor plans also offer charming curb appeal with their elevated entryways and porches. Our selection of barndominium floor plans would be the talk of the neighborhood.

Browse the full barndominium house plan collection here.

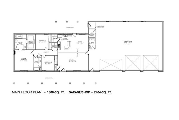
1,800 Sq. Ft. Barndominium with Four-Car Garage 1,800 Sq. Ft. Barndominium with Four-Car Garage 1,800 Sq. Ft. Barndominium with Four-Car Garage - Front Exterior

1,800 Sq. Ft. Barndominium with Four-Car Garage 1,800 Sq. Ft. Barndominium with Four-Car Garage - Main Floor

This 1,800 sq. ft. barndominium features rustic curb appeal with a cozy covered porch and sleek metal roof. Check out the oversized four-car garage and workshop. The main floor plan is incredibly open with the living room flowing into the dining area and kitchen. When owners are hosting guests, they can open the door to the rear patio and create great indoor-outdoor flow. Down the long hallway there are two guest bedrooms and the primary suite with a walk-in closet.

1,800 Sq. Ft. Barndominium Plan with Welcoming Porch 1,800 Sq. Ft. Barndominium Plan with Welcoming Porch 1,800 Sq. Ft. Barndominium Plan with Welcoming Porch - Front Exterior

1,800 Sq. Ft. Barndominium Plan with Welcoming Porch 1,800 Sq. Ft. Barndominium Plan with Welcoming Porch - Main Floor

This attractive barndominium has a beautiful front porch that welcomes guests into the open great room. There’s a carport at the rear, a location that doesn’t obstruct curb appeal. Double doors open to a spacious living room with a vaulted ceiling, a fireplace, and (back near the kitchen) a cozy eating nook. Two guest bedrooms sit on one side of the barndominium plan, giving owners privacy on the opposite side. Owners will enjoy having a luxurious private bathroom, a walk-in closet, and easy access to the walk-in laundry room.

Stylish 1,800 Sq. Ft. Barndominium Floor Plan Stylish 1,800 Sq. Ft. Barndominium Floor Plan Stylish 1,800 Sq. Ft. Barndominium Floor Plan - Front Exterior

Stylish 1,800 Sq. Ft. Barndominium Floor Plan Stylish 1,800 Sq. Ft. Barndominium Floor Plan - Main Floor

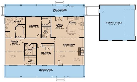
The screened porch, open floor plan, and fireplace make this 1,800 sq. ft. barndominium a stylish plan. A vaulted ceiling in the main living space provides a sense of volume and the fireplace adds a touch of coziness. Another vaulted ceiling can be found in the primary suite, which features a convenient office nook. There’s a grilling porch and screened porch attached to the kitchen, making this barndominium a great place to host guests. Additionally, there are two guest bedrooms, with one having an impressive walk-in closet.

1,800 Sq. Ft. Barndominium with Vaulted Ceilings 1,800 Sq. Ft. Barndominium with Vaulted Ceilings 1,800 Sq. Ft. Barndominium with Vaulted Ceilings - Front Exterior

1,800 Sq. Ft. Barndominium with Vaulted Ceilings 1,800 Sq. Ft. Barndominium with Vaulted Ceilings - Main Floor

The vaulted ceilings paired with the fireplace make this 1,800 sq. ft. barndominium a cozy and charming plan. A large, covered porch opens to the great room, which leads to the kitchen with a spacious prep island. By opening the French doors in the dining room, indoor-outdoor flow is achieved. The two guest bedrooms are ideal for guests, with one having a walk-in closet. In the primary suite, owners will enjoy the large bathroom and walk-in closet. A unique addition to this plan is the attached at-home office in the primary suite.

Browse the full barndominium house plan collection here.

Get Our Newsletter

Be the first to see new plans, special offers, and more.

By signing up for our newsletter, you agree to our Terms & Conditions and Privacy Policy, for an account

Blog Subscribe Icon