By Courtney Pittman
Can we hear it for farmhouse building plans? These country charmers stand out with spot-on style and smart design choices. Here are eight plans that showcase hot design choices like a small footprint, (mostly) three bedrooms, one level of living, generous porches, and more.
Want more? Discover our collection of farmhouse building plans here.
Wide Front Porch
Wide Front Porch - Front Exterior
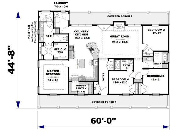
We love a wide front porch! From the board-and-batten siding to the metal gable roof, this farmhouse building plan feels warm and welcoming. Inside, the country kitchen gives you a moveable island, a coffee bar, a hidden pantry, and a snack bar. Nearby, a fireplace delivers a cozy ambiance to the great room.
The primary suite stands out with two closets and a custom shower. Unwind on the large back porch. Three more bedrooms, one of them with a private bath, complete this design.
Modest Farmhouse Building Plan
Modest Farmhouse Building Plan - Front Exterior
Modest Farmhouse Building Plan - Main Level
This modest farmhouse building plan maximizes space with an efficient floor plan. The vaulted living room creates a breezy vibe and boasts a wood-burning fireplace. In the kitchen, an island offers casual seating. Note the walk-in pantry and the farm sink.
Just off the side porch, lockers keep things tidy in the entry. The hardworking laundry room waits close by. A walk-in closet impresses in the primary suite.
Three-Bedroom Farmhouse Design
Three-Bedroom Farmhouse Design - Front Exterior
Three-Bedroom Farmhouse Design - Main Level
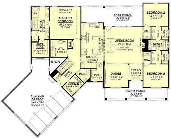
This three-bedroom farmhouse design stands out with metal roof accents, board-and-batten siding, and stylish barn lights. At the heart of the home, the kitchen takes center stage with a big island and a well-equipped pantry. Next to the entry, a versatile study gives you space for work or hobbies.
The peaceful primary suite enjoys privacy at the back of the plan. Sliding glass doors connect the open family room to the covered patio. Other welcome details include a two-car garage, an organized mudroom, and a safe room.
Two Porches
Two Porches - Front Exterior
Clocking in at 1,615 square feet, this farmhouse building plan gives you an airy floor plan. The open layout features a fireplace-warmed great room and an island kitchen. Front and rear porches offer plenty of room for outdoor enjoyment.
Need room for storage? Check out the two-car garage. The primary suite gives you a big closet and a luxe bath.
Loving any of the plans you're seeing? Register now to easily save and return to your favorites!
Modern Farmhouse Plan with Outdoor Living
Modern Farmhouse Plan with Outdoor Living - Front Exterior
Modern Farmhouse Plan with Outdoor Living - Main Level
Step inside this standout modern farmhouse plan. An island in the kitchen features a snack bar and opens to the vaulted living room. Sliding glass doors bring the outdoors in and connect the main living areas to the back porch.
The primary suite hosts an extra-big closet. Other cool details include a two-car garage, a mudroom, a walk-in pantry, and a covered front porch.
Farmhouse Plan with Office
Farmhouse Plan with Office - Front Exterior
Farmhouse Plan with Office - Main Level
Here’s a plan that grabs your attention with a handsome exterior and an open design. A kitchen island (with an eating bar) serves the great room, where a vaulted ceiling draws the eye up. Here’s a welcome amenity: a cabinet door accesses the pantry, which features built-in shelves.
The laundry room is conveniently located next to the luxe primary suite. A home office gives you a quiet place to work. Front and rear porches offer shaded comfort, while a two-car garage includes dedicated storage space.
Country Plan with Bunkroom
Country Plan with Bunkroom - Front Exterior
Country Plan with Bunkroom - Main Level
Country Plan with Bunkroom - Upper Level
This farmhouse plan gives you a warm welcome with two dormer windows, a metal roof, and a covered front porch. A fireplace delivers cozy comfort in the great room, which flows seamlessly into the island kitchen. In the dining room, sliding glass doors open to a rear porch.
The primary suite enjoys luxury with a freestanding tub, a sizable shower, and a private porch. Other highlights we love: the bright sunroom, the flexible bunkroom, and the bonus room.
Popular Farmhouse Plan Under 2,000 Square Feet
Popular Farmhouse Plan Under 2,000 Square Feet - Front Exterior
Popular Farmhouse Plan Under 2,000 Square Feet - Main Level
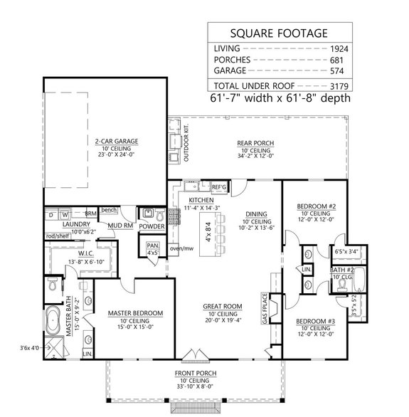
It's easy to see why this one sells well. Just under 2,000 square feet, this farmhouse building plan lives large with an open concept floor plan. The great room flows nicely into the island kitchen and out to the rear porch, where an outdoor kitchen is ready for relaxed meals. The primary suite enjoys privacy and direct access to the laundry room on the left wing of the plan.
Two additional bedrooms share a full bath on the right. In the mudroom, a bench makes it easy to take off your boots. A two-car garage waits close by.

