Blog Home > Fun & Functional: Multigenerational House Plans

The Houseplans Blog

Fun & Functional: Multigenerational House Plans

Check out these multigenerational house plans.

Hero Image

September 7, 2022

Livabl Brand

Can't find what you're looking for?

Give us a call below or reach out and we’ll make sure to be in contact!

Send Us a Message

By Courtney Pittman

It’s all about functionality and up-to-date features with these multigenerational house plans. Designed to house multiple families (or renters), these plans include a mix of duplex house plans and designs with in-law suites. Other highlights include relaxed spaces, island kitchens, and open layouts. Take a look at ten of our favorites.

Discover the full multigenerational house plans collection here.

Farmhouse Multigenerational House Plan Farmhouse Multigenerational House Plan Farmhouse Multigenerational House Plan - Front Exterior

Farmhouse Multigenerational House Plan Farmhouse Multigenerational House Plan - Main Floor Plan

This farmhouse design offers flexibility with private living quarters on the left wing of the plan. The main floor plan features a breezy layout that is bright and open. Check out the big pantry in the kitchen.

Near the front, the primary suite impresses with two walk-in closets. A Jack-and-Jill bathroom sits between two secondary bedrooms. Don’t miss the covered front porch or the nice back patio.

Traditional Multigenerational House Plan Traditional Multigenerational House Plan Traditional Multigenerational House Plan - Front Exterior

Traditional Multigenerational House Plan Traditional Multigenerational House Plan - Main Floor Plan

Traditional Multigenerational House Plan Traditional Multigenerational House Plan - Upper Floor Plan

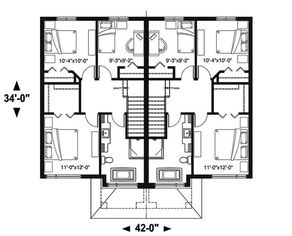
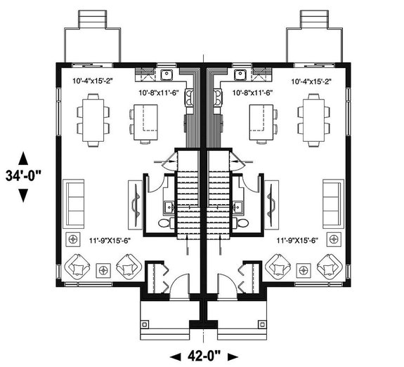
Here’s a duplex house plan with traditional curb appeal. Inside, each unit boasts a super-efficient layout that is simple and open. The snack counter overlooks the great room and is ready for casual meals.

Upstairs, you'll find three bedrooms and a full bath.

Modern Multigenerational House Plan Modern Multigenerational House Plan Modern Multigenerational House Plan - Front Exterior

Modern Multigenerational House Plan Modern Multigenerational House Plan - Main Floor Plan

Modern Multigenerational House Plan Modern Multigenerational House Plan - Upper Floor Plan

Modern Multigenerational House Plan Modern Multigenerational House Plan - Lower Floor Plan

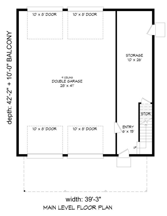
Building on a narrow lot? Check out this modern duplex house plan. Lots of windows provide natural light and let you take in the view. The lower level includes a four-car garage and ample storage space (discover these garage storage tips from Family Handyman). Matching three-bedroom apartments wait on the second and third levels.

We love the open gathering areas – which include an island kitchen and a large living space. The primary suite takes center stage with an extra-big shower (with two shower heads). Enjoy the fresh air on the nice balcony.

Multigenerational House Plan with Casita Multigenerational House Plan with Casita Multigenerational House Plan with Casita - Front Exterior

Multigenerational House Plan with Casita Multigenerational House Plan with Casita - Main Floor Plan

Multigenerational House Plan with Casita Multigenerational House Plan with Casita - Upper Floor Plan

Just 40 feet wide, this practical plan is designed for a tight lot. The generous family room features a fireplace and opens to the dining room and the kitchen. An island in the kitchen is ready for relaxed meals. Check out the thoughtful pocket office (take a look at these office ideas from Country Living).

Upstairs, a roomy shower and dual sinks highlight the homeowner’s suite. Two more bedrooms share a hall bath. Nearby but accessed through its own entrance downstairs, the casita includes an efficient living space with a kitchen, a bedroom, and a full bath (with a walk-in closet).

Multigenerational House Plan with Small Unit Multigenerational House Plan with Small Unit Multigenerational House Plan with Small Unit - Front Exterior

Multigenerational House Plan with Small Unit Multigenerational House Plan with Small Unit - Main Floor Plan

This duplex is a great choice for a live-in relative (or even a renter). On the left, a one-bedroom unit features an open living space with a kitchen, a full bath, and its own private entrance. On the right, the larger unit gives you a modern floor plan with an island kitchen and a big pantry.

Ready to impress, the primary suite boasts a luxe bathroom and a convenient seat in the walk-in closet. A covered porch adds indoor/outdoor living.

Duplex Multigenerational House Plan Duplex Multigenerational House Plan Duplex Multigenerational House Plan - Front Exterior

Duplex Multigenerational House Plan Duplex Multigenerational House Plan - Main Floor Plan

Duplex Multigenerational House Plan Duplex Multigenerational House Plan - Upper Floor Plan

Here’s a duplex design with cool farmhouse style. Mirrored identical units each showcase an open floor plan on the main floor. An island in the kitchen is a modern touch.

The covered back patio is a nice place to unwind. Upstairs, the primary suite features a private bathroom with a large walk-in closet. Two more bedrooms and a bath wait down the hall.

Multigenerational House Plan with Open Layout Multigenerational House Plan with Open Layout Multigenerational House Plan with Open Layout - Front Exterior

Multigenerational House Plan with Open Layout Multigenerational House Plan with Open Layout - Main Floor Plan

Multigenerational House Plan with Open Layout Multigenerational House Plan with Open Layout - Upper Floor Plan

Check out this streamlined duplex house plan. Inside, the vibe is relaxed. The kitchen island conveniently serves the open dining area and the great room. Sliding glass doors access a small patio out back.

Three bedrooms (one with a walk-in closet) complete the upper level, along with a full bathroom.

Multigenerational House Plan with Wraparound Porch Multigenerational House Plan with Wraparound Porch Multigenerational House Plan with Wraparound Porch - Front Exterior

Multigenerational House Plan with Wraparound Porch Multigenerational House Plan with Wraparound Porch - Main Floor Plan

Multigenerational House Plan with Wraparound Porch Multigenerational House Plan with Wraparound Porch - Upper Floor Plan

A wraparound porch decorates the exterior of this country style duplex plan. A fireplace warms the open family room. More smart touches include a thoughtful drop zone, a large back deck, and an optional built-in seat in the family room.

On the second floor, the owner’s suite is dressed up with a spacious shower and a walk-in closet. An additional bedroom, along with a full bath, shares the second floor.

Three-Bedroom Multigenerational House Plan Three-Bedroom Multigenerational House Plan Three-Bedroom Multigenerational House Plan - Front Exterior

Three-Bedroom Multigenerational House Plan Three-Bedroom Multigenerational House Plan - Main Floor Plan

Three-Bedroom Multigenerational House Plan Three-Bedroom Multigenerational House Plan - Upper Floor Plan

This three-bedroom Craftsman style duplex features two matching units with efficient layouts. The U-shaped kitchen overlooks the living room and the breakfast nook. A coat closet in the foyer is a welcome amenity.

Conveniently located on the second floor, the laundry is steps away from the primary suite (and the two secondary bedrooms).

Multigenerational House Plan with Pocket Office Multigenerational House Plan with Pocket Office Multigenerational House Plan with Pocket Office - Front Exterior

Multigenerational House Plan with Pocket Office Multigenerational House Plan with Pocket Office - Main Floor Plan

Multigenerational House Plan with Pocket Office Multigenerational House Plan with Pocket Office - Upper Floor Plan

Here’s a multigenerational house plan that gives you lots of flexibility. The casita on the first floor offers privacy with an open kitchen/living area, a bedroom, a full bath, a pocket office, and its own entrance. Also on this level in the larger part of the home, the island kitchen features easy access to the dining room.

Store items in the well-organized drop zone next to the two-car garage. Two secondary bedrooms, a full bath, and the deluxe owner’s suite wait upstairs. Like to grill? Check out the optional back deck.

Explore more multigenerational house plans here.

Get Our Newsletter

Be the first to see new plans, special offers, and more.

By signing up for our newsletter, you agree to our Terms & Conditions and Privacy Policy, for an account

Blog Subscribe Icon