By Courtney Pittman
Get the ultimate barn look with these gambrel roof house plans. What do they have in common? Look for great outdoor spaces, generous garages, and functional layouts. Here’s our latest roundup of barndominium house plans that balance timeless curb appeal with functional interiors.
Barndo Plan with Loft
 Barndo Plan with Loft - Front Exterior
Barndo Plan with Loft - Front Exterior
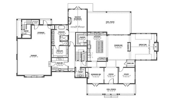
 Barndo Plan with Loft - Main Level
Barndo Plan with Loft - Main Level
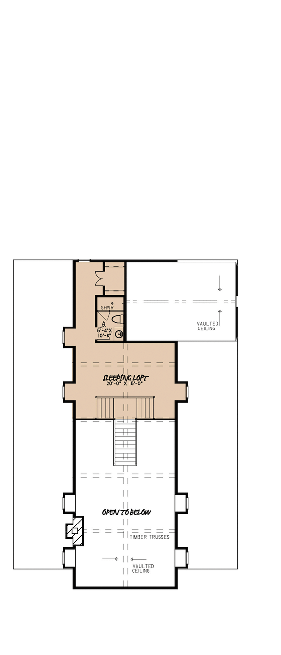
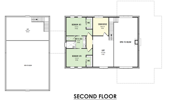
 Barndo Plan with Loft - Upper Level
Barndo Plan with Loft - Upper Level
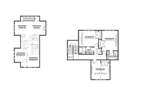
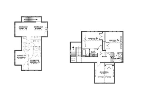
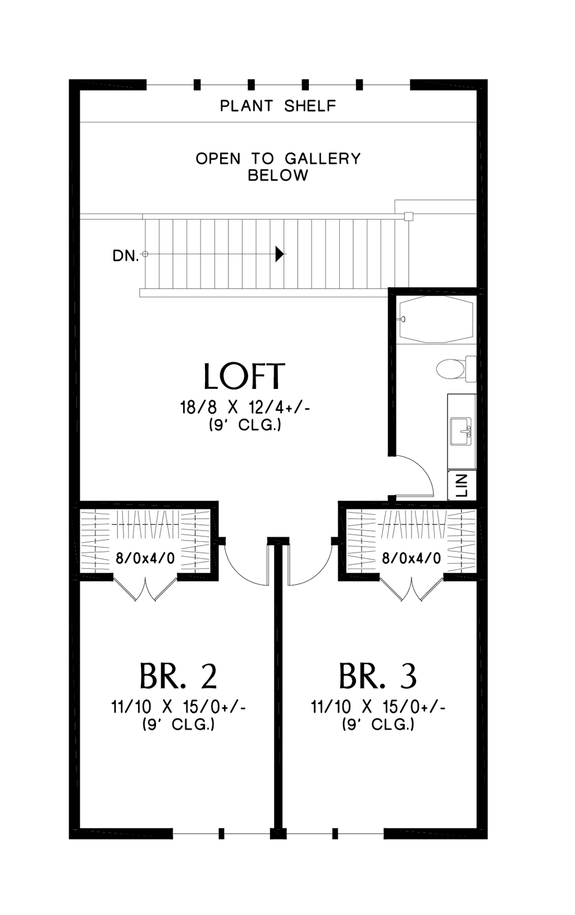
Here’s a barn-inspired house plan with a classic gambrel roof. The well-designed layout gives you an island kitchen that overlooks the vaulted great room, which includes a warm fireplace. Check out the extra-spacious pantry.
The primary suite rests on the main level (making it easy to age in place) and shows off a super-generous closet, a big shower, and a separate tub. A guest room could also become a home office. Upstairs, you’ll find four bedrooms and two double-vanity bathrooms. Don’t miss the versatile loft space.
Barn-Inspired Garage Apartment Plan
 Barn-Inspired Garage Apartment Plan - Front Exterior
Barn-Inspired Garage Apartment Plan - Front Exterior
 Barn-Inspired Garage Apartment Plan - Main Level
Barn-Inspired Garage Apartment Plan - Main Level
 Barn-Inspired Garage Apartment Plan - Upper Level
Barn-Inspired Garage Apartment Plan - Upper Level
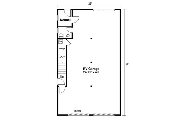
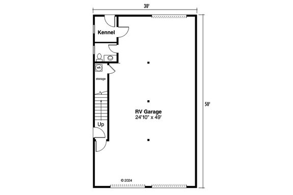
This garage apartment plan shows off barndominium style with a metal gambrel roof and board-and-batten siding. The two-car garage includes room for RV storage and a half bath. On the second level, a vaulted great room delivers a breezy feeling and features a utility sink. Two bedroom suites (each with a walk-in closet) complete this design.
Room for Storage
 Room for Storage - Front Exterior
Room for Storage - Front Exterior
 Room for Storage - Upper Level
Room for Storage - Upper Level
Board-and-batten siding, a metal gable roof (plus a gambrel roof), and a wide front porch highlight the exterior of this classic country design. You’ll find plenty of room for storage in the two-car garage and the handy mudroom (which gives you a bench with hooks). The foyer sits between the study and the morning room.
The island kitchen opens to the dining room and the great room, encouraging modern living. Sliding glass doors open to the covered patio out back. Residing on the main level, the primary suite offers a deluxe bathroom and a large walk-in closet. A bedroom suite, two additional bedrooms, and a bathroom wait upstairs. Need room to expand? Note the unfinished in-law suite.
Barndominium Plan with Wraparound Porch
 Barndominium Plan with Wraparound Porch - Front Exterior
Barndominium Plan with Wraparound Porch - Front Exterior
 Barndominium Plan with Wraparound Porch - Main Level
Barndominium Plan with Wraparound Porch - Main Level
 Barndominium Plan with Wraparound Porch - Upper Level
Barndominium Plan with Wraparound Porch - Upper Level
Here’s a barndominium plan that makes an impression inside and out. For example, the wraparound porch offers room to kick back and relax when the weather is nice. In the kitchen, an island seats up to six and overlooks the two-story great room. An office/flex space sits nearby.
The primary suite impresses with a spa-like bathroom and direct access to the laundry room. Two secondary bedrooms share a bathroom on the left side of the plan. Check out the three-car garage, which gives you a big storage closet. The second level hosts a sleeping loft and a bathroom.
Two-Car Garage Apartment Plan
Two-Car Garage Apartment Plan - Front Exterior
 Two-Car Garage Apartment Plan - Main Level
Two-Car Garage Apartment Plan - Main Level
 Two-Car Garage Apartment Plan - Upper Level
Two-Car Garage Apartment Plan - Upper Level
This sweet garage apartment plan boasts a barn-like facade. We love the timeless gambrel roof. The main level can store up to two vehicles and features a storage closet.
Upstairs, the living space includes a sitting area with a sleeper sofa and a kitchen with a breakfast nook. A bedroom (with a spacious closet) and a bathroom round out this level.
Two-Story Plan with Courtyard
 Two-Story Plan with Courtyard - Front Exterior
Two-Story Plan with Courtyard - Front Exterior
 Two-Story Plan with Courtyard - Main Level
Two-Story Plan with Courtyard - Main Level
 Two-Story Plan with Courtyard - Upper Level
Two-Story Plan with Courtyard - Upper Level
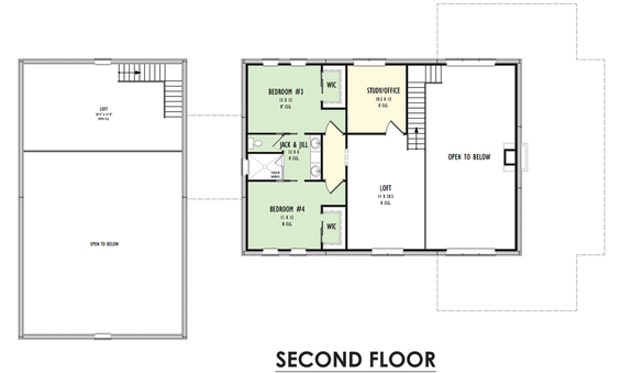
Cool details make this barndominium plan stand out. Vaulted office? Check. Generous courtyard? You got it. Oh, and check out the two-story gallery wall just off the foyer. The island kitchen and the great room flow into one another with ease.
The primary suite boasts an extra-large closet with direct access to the laundry room, making it easy to throw in a load. Two bedrooms and a full bath wait upstairs, along with a loft. Our favorite part? The cool courtyard at the center of the plan.
Four-Bedroom Barn Design
 Four-Bedroom Barn Design - Front Exterior
Four-Bedroom Barn Design - Front Exterior
 Four-Bedroom Barn Design - Main Level
Four-Bedroom Barn Design - Main Level
 Four-Bedroom Barn Design - Upper Level
Four-Bedroom Barn Design - Upper Level
With clean lines and a gambrel roof, this barndominium house plan delivers bold curb appeal. In the great room, two sets of French doors open to the wraparound front porch. The main-level primary suite pampers you with ample closet space, dual sinks, and a walk-in shower (with a free-standing tub inside!).
Flexible amenities include: a loft and a study/office on the second level. Don’t miss the two-car garage.