Blog Home > Garage Plans with Apartments

The Houseplans Blog

Garage Plans with Apartments

These plans make the perfect addition to your property

Hero Image

December 13, 2021

Livabl Brand

Can't find what you're looking for?

Give us a call below or reach out and we’ll make sure to be in contact!

Send Us a Message

By Gabby Torrenti

This collection of garage plans with apartments provides the perfect addition to your existing property, allowing these spaces to serve as guest suites or extra storage. Explore some of our favorite garage apartment plans to enhance your existing lot.

Want to explore all of our garage apartment plans? View the full collection here.

Farmhouse-Style Garage Apartment with New Photos! Exterior - Front Elevation for Barndominium House Plan #1070-121 - 1 bed, 1 bath Farmhouse-Style Garage Apartment 1070-121 - Front Exterior Garage Plans with Apartments Farmhouse-Style Garage Apartment 1070-121 - Main Floor Plan

This farmhouse-style garage apartment plan is so much more than just a garage, with 784 square feet of living space, plus lots of room for convenient storage. Space for two vehicles comprises most of this unit, with a separate covered storage area located to the right, which is ideal for storing lawn equipment or tools. On the left side of this garage, a separate entrance leads into the living room space, which leads toward a contemporary island kitchen with pantry storage. At the rear of the space, a bedroom lets this unit double as a guest apartment, giving your guests or relatives their own walk-in closet and full bathroom. When the day is done, relax on the left-side patio, just steps away from the main house.

Contemporary Rustic Garage with Offices Exterior - Front Elevation for Contemporary House Plan #498-3 - 2 bed, 0.5 bath Contemporary Rustic Garage 498-3 - Front Exterior Garage Plans with Apartments Contemporary Rustic Garage 498-3 - Main Floor Plan Garage Plans with Apartments Contemporary Rustic Garage 498-3 - Upper Floor Plan

With over 1,000 square feet of space upstairs, this contemporary rustic garage apartment is the perfect way to make the most of your home’s lot space. On the main level, storage takes precedence with room for all of your household’s vehicles. Upstairs, a studio space makes up most of the level, bordered by two offices that are perfect for those working from home. A wet bar makes preparing drinks or snacks simple.

Modern Garage Apartment Exterior - Front Elevation for Contemporary House Plan #25-4753 - 1 bed, 1 bath Modern Garage Apartment 25-4753 - Front Exterior Garage Plans with Apartments Modern Garage Apartment 25-4753 - Main Floor Plan Garage Plans with Apartments Modern Garage Apartment 25-4753 - Upper Floor Plan

This 490-square-foot garage loft provides space for two cars on the main level, plus simple access to the second floor. Upstairs, a combined living room and kitchen space with a center island makes the perfect area for guests to relax, with a bedroom located close by. Visitors can also enjoy their own full bathroom, as well as outdoor balcony space that can overlook your property. Chic exterior details and clean building lines make this structure that much more desirable and the perfect fit on any lot.

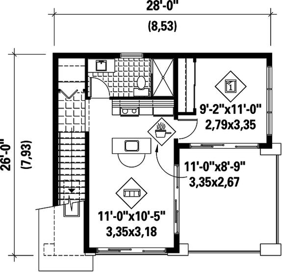
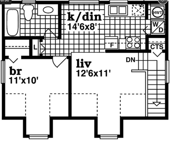
Traditional Garage Exterior - Front Elevation for Farmhouse House Plan #47-1081 - 1 bed, 1 bath Traditional Garage 47-1081 - Front Exterior Garage Plans with Apartments Traditional Garage 47-1081 - Main Floor Plan Garage Plans with Apartments Traditional Garage 47-1081 - Upper Floor Plan

At 588 square feet, this garage apartment is on the smaller side, while still featuring plenty of comfortable amenities for your guests or relatives. The main floor includes space for two cars, with easy access to the second level via a flight of stairs. Upstairs, a living room comprises most of the space, with a kitchen and dining room giving visitors lots of space to relax. The bedroom accesses a bathroom and closet, making it the perfect retreat for guests to enjoy. A laundry closet and a variety of windows to let in light make this space even more appealing.

Looking for garage design inspiration? Check out these ideas from MyDomaine.

Barn-Style Garage Plan Exterior - Front Elevation for Country House Plan #124-1052 - 3 bed, 3.5 bath Barn-Style Garage Plan 124-1052 - Front Exterior Garage Plans with Apartments Barn-Style Garage Plan 124-1052 - Main Floor Plan Garage Plans with Apartments Barn-Style Garage Plan 124-1052 - Second Floor Plan
Garage Plans with Apartments Barn-Style Garage Plan 124-1052 - Third Floor Plan

With three floors, three bedrooms, and three-and-a-half bathrooms, this luxurious barn plan features lots of room for storage and plenty of additional features that make this space feel like home. On the main floor, parking space is flanked by offices on one side and bedrooms on the other. Don't miss the entry/mudroom.

Upstairs, you'll find loft space and a game room. Another flight of stairs leads to the third level, which opens with a vaulted living room. The kitchen and dining room are located to the left, featuring a center island and access to the covered deck for relaxing outdoors. Across the home, the owners’ suite features a sizable closet and a full bathroom with double sinks. This garage apartment truly does not spare a single detail and could enhance any property.

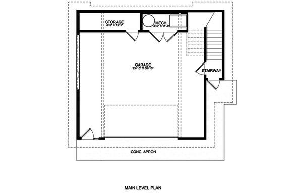
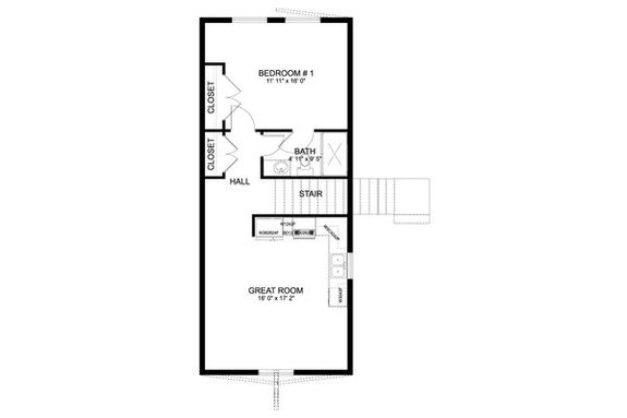
Modern Farmhouse Garage Exterior - Front Elevation for Barndominium House Plan #1060-97 - 1 bed, 1 bath Modern Farmhouse Garage 1060-97 - Front Exterior Garage Plans with Apartments Modern Farmhouse Garage 1060-97 - Main Floor Plan Garage Plans with Apartments Modern Farmhouse Garage 1060-97 - Second Floor Plan

On the main level, this garage plan features space for three vehicles, plus a separate mechanical closet and a covered porch. A flight of convenient stairs leads to the second level, which makes the perfect apartment for guests or older children to stay in. The great room and L-shaped kitchen comprise the main living space and make this garage feel like home. Down the hallway, a closet helps keep your space organized, just around the corner from the primary bedroom. This room features its own closet and full bathroom (also accessed from the hall), creating a versatile suite that any guest would enjoy.

Luxe Four-Car Garage Exterior - Front Elevation for Traditional House Plan #932-417 - 2 bed, 2.5 bath Luxe Four-Car Garage 932-417 - Front Exterior Garage Plans with Apartments Luxe Four-Car Garage 932-417 - Main Floor Plan Garage Plans with Apartments Luxe Four-Car Garage 932-417 - Upper Floor Plan

With space for four cars and lots of living space, this ultra-spacious garage apartment is a great choice for car enthusiasts or anyone who wants tons of storage and versatile living space. On the main level, plenty of parking spaces sit next to an office and half bath, creating a space to work from home just steps from your home. Up the stairs, a spacious living area features a living room, dining area, breakfast nook, and kitchen with a center island, and even access to a deck. Down a short hallway, the primary suite includes a large bedroom, walk-in closet, and full bathroom with two vanities and a spa-like "wet room," creating the ultimate owners’ retreat. Across the hall, a second bedroom (also quite large) enjoys use of the hall bathroom. The plan is made complete with a laundry closet, helping keep your space tidy.

Want to see more of our favorite garage apartment plans? View the full collection here.

Get Our Newsletter

Be the first to see new plans, special offers, and more.

By signing up for our newsletter, you agree to our Terms & Conditions and Privacy Policy, for an account

Blog Subscribe Icon