Blog Home > Versatile & Spacious: House Plans with Basements

The Houseplans Blog

Versatile & Spacious: House Plans with Basements

Expand your home with these house plans with basements.

Hero Image

July 2, 2022

Livabl Brand

Can't find what you're looking for?

Give us a call below or reach out and we’ll make sure to be in contact!

Send Us a Message

By Courtney Pittman

Ready to expand? These house plans with basements maximize your living space with functional lower levels. Look for flex spaces, additional bedrooms, extra storage, and more. Check out some of our favorites below.

Want more? Check out our house plans with basements collection here.

Ranch House Plan with Basement Ranch House Plan with Basement Ranch House Plan with Basement - Front Exterior

Ranch House Plan with Basement Ranch House Plan with Basement - Main Floor Plan

Ranch House Plan with Basement Ranch House Plan with Basement - Optional Finished Basement Floor Plan

Here’s a ranch style house plan with a relaxed layout. The great room features a ten-foot ceiling and views of the front porch. The open kitchen flows effortlessly into the dining area. Check out the big pantry and the hardworking laundry room.

Near the back, the well-appointed primary suite includes a freestanding tub, a custom shower, and a roomy closet. Two more bedrooms share a hall bath on the left side of the plan. Need more space? Optional stairs lead down to a future basement (explore these basement ideas from HGTV).

Country House Plan with Basement Country House Plan with Basement Country House Plan with Basement - Front Exterior

Country House Plan with Basement Country House Plan with Basement - Main Floor Plan

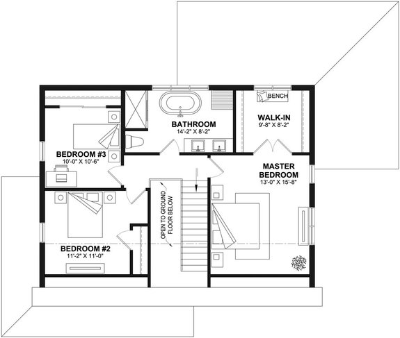
Country House Plan with Basement Country House Plan with Basement - Upper Floor Plan

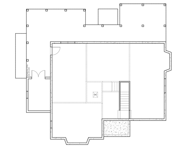
Country House Plan with Basement Country House Plan with Basement - Optional Finished Basement Floor Plan

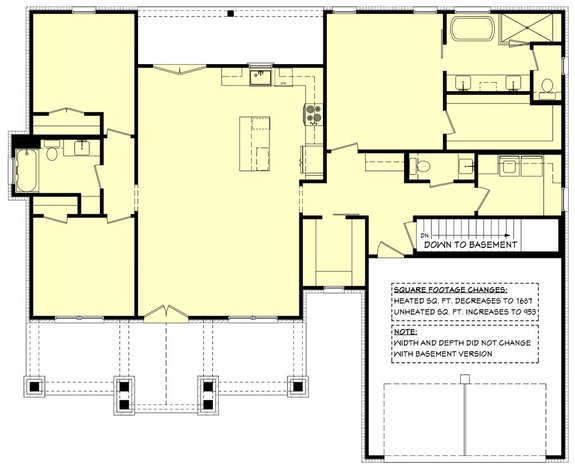
This modern farmhouse plan offers an open layout between the main living areas. The kitchen island overlooks the great room and the informal dining area. Groceries stay organized in the big pantry. Near the foyer, an office (or den) gives you a quiet place to work.

Relax in the luxe primary suite (with two sinks, a generous shower, and a separate tub) on the second level. All three additional bedrooms sport walk-in closets. The future lower level includes a large family room, a game room, and another bedroom.

House Plan with Basement and Office House Plan with Basement and Office House Plan with Basement and Office - Front Exterior

House Plan with Basement and Office House Plan with Basement and Office - Main Floor Plan

House Plan with Basement and Office House Plan with Basement and Office - Optional Finished Basement Floor Plan

A front porch welcomes you to this three-bedroom farmhouse plan. Inside, the open kitchen features a snack bar that seats four at the island. Nearby, the great room boasts a fireplace and stylish built-ins (decorate your built-ins with these tips from the DIY Playbook).

When it’s time to relax, head to the spacious primary suite on the main floor (check out the big shower). Don’t miss the handy home office, the smart mudroom, or the future walkout basement.

Stylish House Plan with Basement Stylish House Plan with Basement Stylish House Plan with Basement - Front Exterior

Stylish House Plan with Basement Stylish House Plan with Basement - Main Floor Plan

Stylish House Plan with Basement Stylish House Plan with Basement - Optional Finished Basement Floor Plan

Classic charm meets a modern layout in this farmhouse design. An island with an eating bar and a veggie-rinsing sink adds functionality to the kitchen. A large pantry sits nearby. The primary suite enjoys direct access to the laundry room.

A formal dining room rests next to the foyer. Nice weather? Go use the outdoor kitchen. Extra storage in the garage is a welcome touch.

Four-Bedroom House Plan with Basement Four-Bedroom House Plan with Basement Four-Bedroom House Plan with Basement - Front Exterior

Four-Bedroom House Plan with Basement Four-Bedroom House Plan with Basement - Main Floor Plan

Four-Bedroom House Plan with Basement Four-Bedroom House Plan with Basement - Lower Floor Plan

Here’s a spacious four-bedroom design with lots of thoughtful amenities. A cathedral ceiling highlights the living room and draws the eye up. Serve up casual meals in the big island kitchen.

The primary suite enjoys privacy on the left side of the floor plan. When the weather is pleasant, head out to the terrace out back. The options are endless with the flexible lower level.

Modern House Plan with Basement Modern House Plan with Basement Modern House Plan with Basement - Front Exterior

Modern House Plan with Basement Modern House Plan with Basement - Main Floor Plan

Modern House Plan with Basement Modern House Plan with Basement - Lower Floor Plan

This inviting modern house plan gives you stylish curb appeal with mixed siding, a cute front porch, and a gable roof. On the lower level, you’ll find a spacious den, the primary bedroom, the laundry room, and two secondary bedrooms. Upstairs, the main floor hosts the main living spaces.

The living room flows easily into the informal dining area and the island kitchen. Don’t miss the drop zone on the way in from the garage or the convenient laundry chute.

House Plan with Basement and Outdoor Living House Plan with Basement and Outdoor Living House Plan with Basement and Outdoor Living - Front Exterior

House Plan with Basement and Outdoor Living House Plan with Basement and Outdoor Living - Main Floor Plan

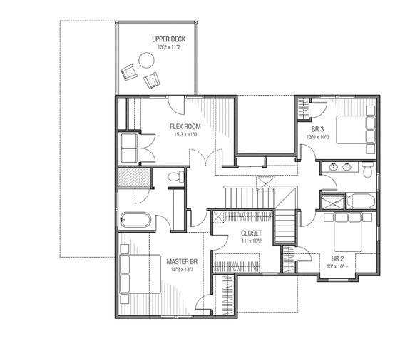
House Plan with Basement and Outdoor Living House Plan with Basement and Outdoor Living - Upper Floor Plan

House Plan with Basement and Outdoor Living House Plan with Basement and Outdoor Living - Optional Finished Basement Floor Plan

Here’s a plan with lots of possibilities for future expansion (thanks to the optional basement). The kitchen gives you a large island and a built-in breakfast nook. A double-sided fireplace separates the versatile library and the elegant parlor.

Out back, the screened porch and the patio/deck add even more space, accessed via two sliding glass doors from the kitchen. Check out the flex room and the deck on the second level, along with the primary suite and two secondary bedrooms.

House Plan with Basement and Storage House Plan with Basement and Storage House Plan with Basement and Storage - Front Exterior

House Plan with Basement and Storage House Plan with Basement and Storage - Main Floor Plan

House Plan with Basement and Storage House Plan with Basement and Storage - Second Floor Plan

House Plan with Basement and Storage House Plan with Basement and Storage - Third Floor Plan

House Plan with Basement and Storage House Plan with Basement and Storage - Lower Floor Plan

This Craftsman style home gives you lots of versatility. A flex room on the main floor could be used as a home office or hobby space. Hang out at the kitchen’s snack bar or next to the fireplace in the living room.

Kick back in style in the deluxe primary suite on the second level. Two more bedrooms share a hall bath. Other flexible features include the playroom in the basement (along with extra storage and an additional bedroom) and the attic upstairs.

Relaxed House Plan with Basement Relaxed House Plan with Basement Relaxed House Plan with Basement - Front Exterior

Relaxed House Plan with Basement Relaxed House Plan with Basement - Main Floor Plan

Relaxed House Plan with Basement Relaxed House Plan with Basement - Upper Floor Plan

Relaxed House Plan with Basement Relaxed House Plan with Basement - Lower Floor Plan

Here’s a five-bedroom home that offers functionality and a relaxed floor plan. The island kitchen seats five and looks into the dining room – where sliding glass doors open to the covered porch.

Need more space? The family room in the basement can become almost anything. Convenient details include the primary bedroom’s walk-in closet, the kitchen’s spacious island, and the generous mudroom.

Explore more house plans with basements here.

Get Our Newsletter

Be the first to see new plans, special offers, and more.

By signing up for our newsletter, you agree to our Terms & Conditions and Privacy Policy, for an account

Blog Subscribe Icon