Don't lose your saved plans! 
Create an account to access your saves whenever you want. See our Terms & Conditions and Privacy Policy.
OR

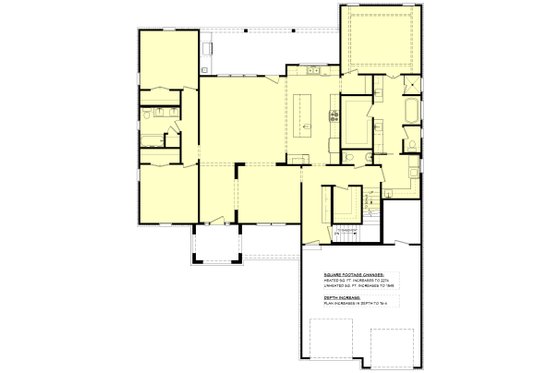
Farmhouse House Plan 430-281 2241 Sq Ft, 3 Bed, 2.5 Bath, 1 Floor, 2 Garage

Key Specs
  • 3
    Beds
  • 2.5
    Baths
  • 1
    Floors
  • 2
    Garages
  • 2241
    Square Feet
This modern farmhouse offers 3 bedrooms and 2.5 baths. Designed with entertaining in mind, the spacious great room with oversized windows that open to the rear porch is adjacent to a large kitchen that boasts an eat-at bar and walk-in pantry. In the main suite you'll find a bathroom with separate vanities that can also be accessed through the laundry room. This home has curb appeal and functional space for a family at any stage of life.

Questions on this plan?

New to the process and looking for some help to kick things off? Let us know a bit about your plans and we’ll be happy to help.

Budget & Customization Tools

Modify icon
Customize this Plan
Tell us about your desired changes and we can prepare an estimate.
Cost to Build icon
Cost to Build Report
A personalized estimate based on your location, plan, & materials.
Cost to Build icon
Residential Construction Guide
This downloadable, 26-page guide is full of diagrams and details about plumbing, electrical, and more.

Full specs & Features

Basic Features

Bedrooms: 3
Baths: 2.5
Stories: 1
Garages: 2

Dimension

Depth: 72'
Height: 26'
Width: 59' 6"

Area

Total: 2241 sq/ft
Bonus: 315 sq/ft
Garage: 633 sq/ft
Main Floor: 2241 sq/ft
Porch: 428 sq/ft
Storage: 44 sq/ft
* Total Square Footage typically only includes conditioned space and does not include garages, porches, bonus rooms, or decks.

Ceiling

Bonus Ceiling: 9'
Garage Ceiling: 9'
Main Ceiling: 9'

Roof

Primary Pitch: 8:12
Roof Type: stick
Secondary Pitch: 3:12, 12:12

Exterior Wall Framing

Framing: 2x4

Bedroom Features

Guest Suite
Main Floor Bedrooms
Main Floor Master Bedroom
Split Bedrooms
Walk In Closet

Kitchen Features

Breakfast Nook
Eating Bar
Kitchen Island
Walk In Pantry Cabinet Pantry

Additional Room Features

Great Room Living Room
Main Floor Laundry
Mud Room
Storage Area
Unfinished Future Space

Garage Features

Front Entry Garage
Oversized Garage

Outdoor Spaces

Covered Front Porch
Covered Rear Porch
Outdoor Kitchen Grill

More

Additional Half Bath
Wheelchair Adaptable

What's Included

Plans are typically drawn to ¼” scale and include:
  • Cover Sheet: Drawing index, designer contact info, plan name/number, legal disclaimers.
  • Foundation Plan(s): This page shows all necessary notations and dimensions including footings, support columns, walls, and excavated/unexcavated areas.
  • Floor Plan(s): Detailed plans for each level showing room dimensions, wall partitions, windows and doors, fixture locations, and ceiling treatments.
  • Exterior Elevations: Views of the home from all four sides showing exterior materials, roof slope, ridge heights, siding and trim notes.
  • Interior Elevations: Detailed drawings of kitchen cabinet elevations and other elements like built-ins.
  • Overhead Roof Plan(s): A view of the home from above showing roof pitch, peaks, valleys, and other details.
  • Cross Section(s): A slice of the home from roof to foundation, showing relationships between floors, roof, and foundation.
  • Electrical Plan(s): Shows the location of lights, receptacles, switches, etc. Some plans that do not include an electrical plan may have it available for an additional fee.
  • Construction Notes and Detail(s): Shows basic parts and assemblies recommended for the home so the builder can see how things come together.
  • Stair Detail(s): Drawings showing stair details.

*Material List Note: When a material list is ordered, a list of the materials needed to build this plan will be sent. Please note that the materials list will conform to the standard plan (slab or crawlspace only). Additional options such as a Basement or 2x6 Wall conversion will not be reflected in the material list. Please call for details.


Note about 2x6 Wall Option: If choosing the 2x6 wall option, the added stud depth will be applied towards the interior of the walls.

FAQs

Are designs on Houseplans ready to submit to my building department for permitting?

It depends on where you're building. Our plans contain enough information for a professional builder to construct your home, but your local government may require additional information before permitting. We strongly advise that you talk with your builder before you get started. If you are building for yourself, we recommend visiting your local building department to start your diligence. Read more here.

Can I make changes to a plan?

Absolutely! Our modification service allows you to customize almost anything - whether it's adding an extra garage bay, adjusting square footage, changing the roof pitch, or more, the plan modification service is a great value and can be completed quickly. Additionally, if you purchase an electronic plan set (PDF or CAD), you may have the option to make changes locally. CAD files offer the most flexibility for custom edits. Just let us know what you're thinking, and we’ll provide an estimate and timeframe to get started. Learn more here.

How much does a house cost to build?

Find out! Build costs vary based on the size of the home, materials used, and local rates for goods and labor. Our Cost to Build report is a great way to get some basic costs dialed in before you order your plans. Just plug in your postal code, select your desired construction quality, and we'll calculate for you.

Learn more about Cost to Build reports here.

Can I trust Houseplans?

Founded in 2004, Houseplans works with hundreds of architects and designers to offer their plans at a fraction of the price of custom design. Houseplans has an "Excellent" rating on TrustPilot.

Read more about us here.

Does Houseplans offer live support?

Yes, Houseplans has a dedicated team of house plan advisors with decades of experience between them. You can reach them by calling, emailing, filling out a form on the page of a plan that you like, or going to the Contact Us page. We're available to talk every day, even on weekends.

Builder Advantage Home

Builder Advantage Program

Are you a Pro Builder? Join the club, save 5% on your first order, get exclusive discounts, and more.

Learn More

You may also like

Save Plan
Farmhouse

Plan 430-422

$1445.00

beds3

bd

baths2.5

ba

stories1

story

square feet2494

sq ft

Save Plan
Country

Plan 427-1

$897.60

beds3

bd

baths2.5

ba

stories2

stories

square feet1908

sq ft

Save Plan
Southern

Plan 44-222

$935.00

beds2

bd

baths1

ba

stories1

story

square feet890

sq ft

Recently viewed plans

Exterior - Front Elevation for Contemporary House Plan #1080-25 - 5 bed, 4.5 bath
Save Plan

Plan 1080-25

$1495.00

beds5

bd

baths4.5

ba

stories2

stories

square feet3485

sq ft

Exterior - Front Elevation for Southern House Plan #120-260 - 3 bed, 2.5 bath
Save Plan

Plan 120-260

$1295.00

beds3

bd

baths2.5

ba

stories2

stories

square feet2458

sq ft

Exterior - Front Elevation for Farmhouse House Plan #1096-124 - 4 bed, 4.5 bath
Save Plan

Plan 1096-124

$2330.00

beds4

bd

baths4.5

ba

stories1

story

square feet4038

sq ft

Exterior - Front Elevation for Farmhouse House Plan #1080-29 - 4 bed, 3 bath
Save Plan

Plan 1080-29

$1495.00

beds4

bd

baths3

ba

stories2

stories

square feet3110

sq ft

Exterior - Front Elevation for Farmhouse House Plan #430-281 - 3 bed, 2.5 bath
Save Plan

Plan 430-281

$1445.00

beds3

bd

baths2.5

ba

stories1

story

square feet2241

sq ft

Signature
Exterior - Front Elevation for Farmhouse House Plan #928-355 - 4 bed, 3 bath
Save Plan

Plan 928-355

$1495.00

beds4

bd

baths3

ba

stories2

stories

square feet2252

sq ft

Exterior - Front Elevation for Craftsman House Plan #430-172 - 3 bed, 2 bath
Save Plan

Plan 430-172

$1445.00

beds3

bd

baths2

ba

stories1

story

square feet2086

sq ft

Exterior - Front Elevation for Farmhouse House Plan #430-260 - 4 bed, 3.5 bath
Save Plan

Plan 430-260

$1645.00

beds4

bd

baths3.5

ba

stories2

stories

square feet3216

sq ft

Signature
Exterior - Front Elevation for Craftsman House Plan #928-282 - 2 bed, 2.5 bath
Save Plan

Plan 928-282

$1995.00

beds2

bd

baths2.5

ba

stories2

stories

square feet2851

sq ft

Exterior - Front Elevation for Country House Plan #1080-8 - 4 bed, 3 bath
Save Plan

Plan 1080-8

$1350.00

beds4

bd

baths3

ba

stories2

stories

square feet2937

sq ft

Exterior - Front Elevation for Farmhouse House Plan #437-92 - 4 bed, 4.5 bath
Save Plan

Plan 437-92

$1595.00

beds4

bd

baths4.5

ba

stories2

stories

square feet4020

sq ft