Blog Home > How Big is 3,500 Square Feet?

The Houseplans Blog

How Big is 3,500 Square Feet?

How big is 3,500 square feet? Check out these plans!

Hero Image

May 28, 2024

Livabl Brand

Can't find what you're looking for?

Give us a call below or reach out and we’ll make sure to be in contact!

Send Us a Message

By Courtney Pittman

How big is 3,500 square feet? With well-thought-out amenities and lots of extras, these house plans feel modern and large. Look for impressive primary suites, big island kitchens, indoor/outdoor connections, and versatile rooms. Here are some of our favorites (all around 3,500 square feet).

Explore our collection of 3,500 square foot plans here.

Modern Farmhouse Design Modern Farmhouse Design Modern Farmhouse Design - Front Exterior

Modern Farmhouse Design for a View Lot Modern Farmhouse Design for a View Lot - Main Level

Modern Farmhouse Design for a View Lot Modern Farmhouse Design for a View Lot - Upper Level

Here’s a standout design with farmhouse style. Just 40 feet wide, this house plan is ideal for a narrow lot, especially one with a view since the main living spaces are upstairs. The first floor gives you a bedroom suite, a flexible den, and a rec room. Upstairs, the primary suite shines with a generous walk-in closet, a big shower, and a separate tub.

The vaulted kitchen opens to the dining nook and the great room. Don’t miss the sizable island. Sliding glass doors bring the outdoors in and open to a waterproof deck. An elevator delivers accessibility.

Farmhouse Plan with Three Porches Farmhouse Plan with Three Porches Farmhouse Plan with Three Porches - Front Exterior

Farmhouse Plan with Three Porches Farmhouse Plan with Three Porches - First Level

Farmhouse Plan with Three Porches Farmhouse Plan with Three Porches - Upper Level

An inviting front porch and metal roof accents highlight the exterior of this farmhouse plan. Inside, the layout feels bright and modern. The kitchen island overlooks the vaulted great room, while a keeping room and a formal dining room sit nearby.

On the left side of the plan, the primary suite shows off a luxurious bathroom and an extra-big closet. A second bedroom suite sits on the right. Nice weather? You’re in luck – a front porch and two back porches create space for outdoor living. Two storage closets and lockers in the three-car garage are convenient touches.

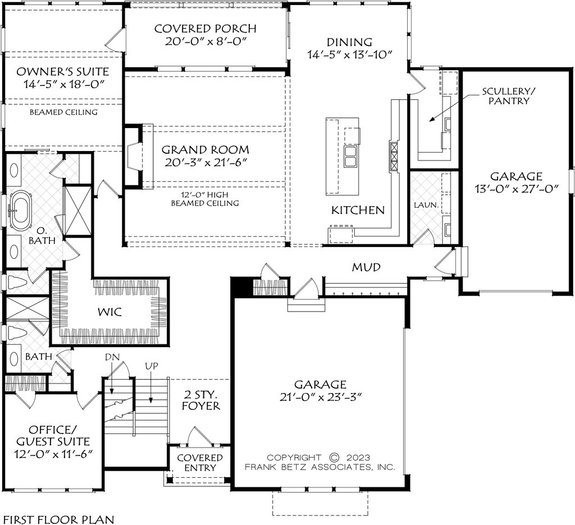
Five-Bedroom Traditional Plan Five-Bedroom Traditional Plan Five-Bedroom Traditional Plan - Front Exterior

Five Bedroom Traditional Plan Five Bedroom Traditional Plan - Main Level

Five Bedroom Traditional Plan Five-Bedroom Traditional Plan - Upper Level

Smart details make this traditional house plan stand out. For example, a scullery pantry is ready for meal prep and extra storage. Nearby, the open kitchen boasts a big island and tons of counter space. A beamed ceiling in the grand room delivers character and charm.

The first-floor primary suite makes it easy to age in place and features access to the rear porch. Two more bedroom suites wait on the second level, along with an additional bedroom and a loft.

Mudroom with Lockers Mudroom with Lockers Mudroom with Lockers - Front Exterior

Mudroom with Lockers Mudroom with Lockers - Main Level

Mudroom with Lockers Mudroom with Lockers - Upper Level

It’s all about functionality and practical spaces in this elegant plan. The relaxed floor plan gives you a spacious island kitchen that opens to the fireplace-warmed living room. A dining room sits nearby. Lockers in the mudroom are a smart touch.

A bedroom is located near the foyer, while three bedroom suites (including the primary suite) wait on the second level. Flex spaces include the versatile den and the home office.

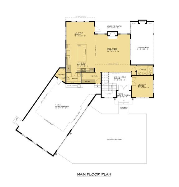
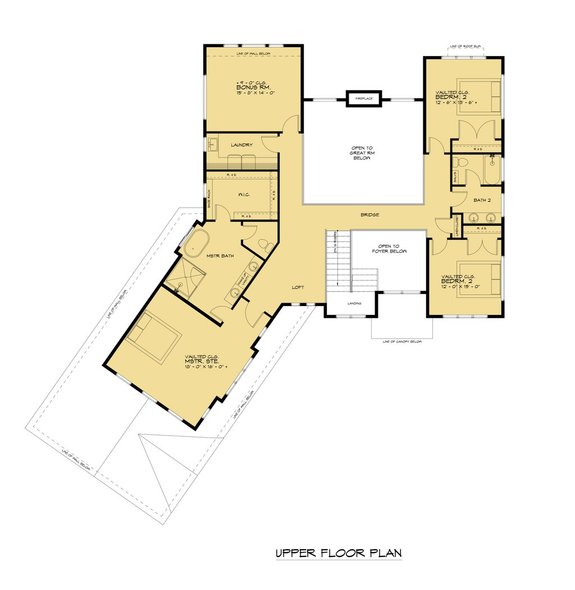
Two-Story Plan with Three-Car Garage Two-Story Plan with Three-Car Garage Two-Story Plan with Three-Car Garage - Front Exterior

Two-Story Plan with Three-Car Garage Two-Story Plan with Three-Car Garage - Main Level

Two-Story Plan with Three-Car Garage Two-Story Plan with Three-Car Garage - Upper Level

This two-story design feels warm and modern with an effortless flow between the main living areas. The well-equipped kitchen boasts an island and a big pantry with built-in shelves and a sink. Check out the organized mudroom on the way in from the three-car garage.

On the second level, the deluxe primary suite enjoys privacy on the left side of the plan with the laundry room conveniently close by. Two more bedrooms share a hall bath on the right. A loft and a bonus room add flexibility.

Farmhouse Plan with Wraparound Porch Farmhouse Plan with Wraparound Porch Farmhouse Plan with Wraparound Porch - Front Exterior

Farmhouse Plan with Wraparound Porch Farmhouse Plan with Wraparound Porch - Main Level

Farmhouse Plan with Wraparound Porch Farmhouse Plan with Wraparound Porch - Upper Level

Jam-packed with style, this modern farmhouse plan greets you with a wraparound porch, mixed siding, and metal roof accents. The kitchen gives you a spacious prep area and a large island. A cozy fireplace warms the great room while sliding glass doors open to the rear porch.

Located on the main level, the primary suite pampers you with a modern shower, a separate tub, and access to the outdoor living space. Don’t miss the sizable loft on the second floor.

Sleek and Contemporary Plan Sleek and Contemporary Plan Sleek and Contemporary Plan - Front Exterior

Sleek and Contemporary Plan Sleek and Contemporary Plan - Main Level

Sleek and Contemporary Plan Sleek and Contemporary Plan - Upper Level

Here’s a striking design that impresses with sleek lines and two gables. Inside, smart amenities include a mudroom with a bench and cubbies and an extra-spacious pantry. The kitchen shines with an island and convenient access to the dining room and the family room.

Relax in the quiet primary suite at the back of the plan. Three bedroom suites and a storage closet round out the second level.

Big Outdoor Living Space Big Outdoor Living Space Big Outdoor Living Space - Front Exterior

Big Outdoor Living Space Big Outdoor Living Space - Main Level

This stunning house plan gives you plenty of luxurious amenities all on one convenient level. Check out the generous rear porch, which features an outdoor kitchen, a big island, and a fireplace. The left side of the plan is dedicated to the luxe primary suite, which features a walk-through shower.

The kitchen sports an island that overlooks the great room for easy serving. Don’t miss these details: the three-car garage, the handy mudroom, and the safe room.

See more 3,500 square foot house plans.

Get Our Newsletter

Be the first to see new plans, special offers, and more.

By signing up for our newsletter, you agree to our Terms & Conditions and Privacy Policy, for an account

Blog Subscribe Icon