How much does it cost to build a 2,000 sq. ft. house? This number depends on many factors (such as location, materials, and construction costs). Building a single-family home (2,647 sq. ft.) in 2024 cost an average of $428,215 (or $162 per sq. ft.), according to the latest Cost of Construction Survey from NAHB.
2,000 sq. ft. house plans offer an ideal balance of comfort and practicality. These moderate-sized plans are thoughtfully designed with versatile layouts that typically boast three to four bedrooms and two to three bathrooms.
Interested in building your dream home? Check out our Cost-to-Build reports here.
Here are some cost-to-build estimates from Zonda (the parent company of Houseplans) for 2,000 sq. ft. homes in Houston, Orlando, and Charlotte:
How much does it cost to build a 2,000 sq. ft. house in Houston, Texas?
The average cost to build a 2,000 sq. ft. house in Houston is $231,600 ($115.8 per sq. ft.)
How much does it cost to build a 2,000 sq. ft. house in Orlando, Florida?
The average cost to build a 2,000 sq. ft. house in Orlando is $240,200 (or $120.1 per sq. ft.)
How much does it cost to build a 2,000 sq. ft. house in Charlotte, North Carolina
The average cost to build a 2,000 sq. ft. house in Charlotte is $240,800 (or $120.4 per sq. ft.)
Note: these values include contractor margins and overhead, and an overall markup for the general contractor. Margins on land and other financing are not built into these numbers. It also doesn't include land costs.

Explore these must-see house plans (all around 2,000 sq. ft.) below!
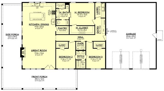
2,000 Sq. Ft. Farmhouse Plan
2,000 Sq. Ft. Farmhouse Plan - Front Exterior
2,000 Sq. Ft. Farmhouse Plan - Main Level
This 2,000 sq. ft. farmhouse plan greets you with a welcoming front porch and a metal gable roof. The generous kitchen island is ideal for casual dining. The walk-in pantry is a convenient detail.
Nice weather? Kick back and relax on the large rear porch. Thoughtful touches in the primary suite include dual sinks, a custom shower, and a sizable closet. On the left side of the plan, a two-car garage keeps you organized.
Modern Barndominium Plan
Modern Barndominium Plan - Front Exterior
Modern Barndominium Plan - Main Level
Check out this must-see barndominium plan. With clean lines and a modern layout, this design has us swooning. A wide front porch graces the exterior and offers outdoor enjoyment. The open great room keeps things warm and cozy with a central fireplace.
Grab a seat at the kitchen island. In the walk-in pantry, built-in shelves keep groceries tidy. Each bedroom features a walk-in closet (including the primary suite). Other handy details include a two-car garage and built-in lockers (and a desk) in the side entry.
Super-Open Layout
Super-Open Layout - Front Exterior
Super-Open Layout - Main Level
Love the popular barn-inspired look? You’re in luck. Embracing traditional charm and an up-to-date layout, this barndo plan feels effortlessly cool. The open floor plan creates comfortable gathering areas.
A walk-in pantry keeps groceries organized in the open kitchen. Note the clever mudroom just off the three-car garage. The luxe primary suite impresses with an extra-big closet with an island. Take in the view on the generous back porch.
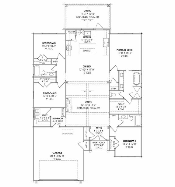
Cottage Plan with Two Bedroom Suites
Cottage Plan with Two Bedroom Suites - Front Exterior
Cottage Plan with Two Bedroom Suites - Main Level
Clocking in at 2,000 square feet, this cottage gives you everything you need with four bedrooms and three bathrooms. An island in the kitchen is a modern touch. A mudroom with lockers rests next to the utility room.
Check out the generous closet in the primary suite. We love the vaulted ceiling in the living room. Best of all, a vaulted rear porch offers lots of room for outdoor living.
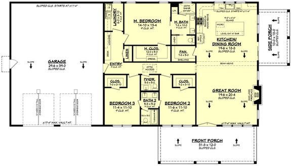
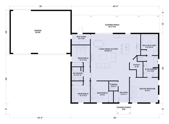
Rustic Builder-Friendly Plan
Rustic Builder-Friendly Plan - Front Exterior
Rustic Builder-Friendly Plan - Main Level
Modern meets rustic with this 2,000-square-foot house plan. The four-corner footprint makes this design a builder-friendly option. We love the wraparound porch and the board-and-batten siding.
Inside, a comfortable layout awaits you. Serve up casual meals at the kitchen island (which features a level eating bar). Warm up next to the cozy fireplace in the open great room. Note the mudroom with lockers (and a desk) and the stylish barn door in the primary suite.
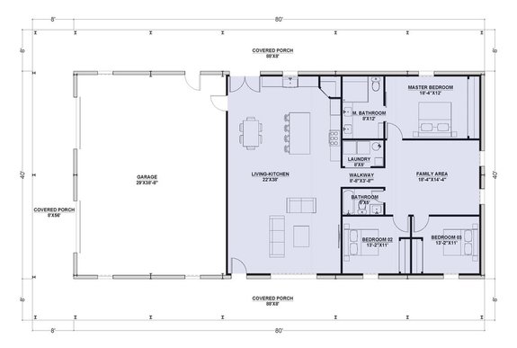
Simple and Modern
Simple and Modern - Front Exterior
Simple and Modern - Main Level
Delivering luxury in just 2,000 square feet, this barndominium plan impresses with a simple, yet modern, layout. Offering optimal outdoor living, a covered porch wraps around three sides of the design.
The well-placed island connects the kitchen to the breakfast nook and the living room. Two bedrooms share a full bath at the front of the plan, while the primary suite enjoys privacy at the back.
Contemporary Plan for Sloping Lot
Contemporary Plan for Sloping Lot - Front Exterior
Contemporary Plan for Sloping Lot - Main Level
Contemporary Plan for Sloping Lot - Lower Level
Building on a sloping lot? Check out this contemporary design. On the main level, the living room opens to the island kitchen and the breakfast nook. French doors open to a large balcony/deck.
A bedroom and a hall bath wait at the back of the plan, along with a small porch. The lower level gives you two bedrooms and a spa-like bath with a sauna. A second living room opens up all kinds of possibilities.