By Courtney Pittman
Love the look of large luxury home plans? These elegant designs give you big open layouts, lavish details throughout (like spa-like master bathrooms and dreamy outdoor living spaces), and are sure to wow you. Check out some of our most popular luxury home plans with pictures below.
See more luxury home plans in our collection here
Luxurious Home Plan with Impressive Details
Plan 930-477
Modern and luxurious, this design gives you an open floor plan that includes impressive details. For example, every bedroom features a private bathroom with a large walk-in shower. In the open gathering spaces, disappearing walls connect the great room and dining area to the spacious lanai. A versatile study (with a full bathroom nearby) can also open up to the lanai via disappearing walls. Don't miss the big kitchen island or the resort-like master suite.
Check out these DIY spa-like bathroom ideas from The Budget Decorater
Stunning Modern House Design
Plan 1066-125
This standout luxury house design shows off contemporary curb appeal. Inside, the layout is simple and open. The kitchen overlooks both the family room and the dining areas, with a big island that gives homeowners lots of space to prepare tasty treats. The home office features plenty of privacy and invites clients to get work done. Enjoy relaxing in the private master suite (located on the second floor) that’s complete with dual sinks and a huge walk-in closet.
Explore these DIY home office ideas from Big DIY Ideas
Luxury House Design with Farmhouse Style
Plan 51-1160
Get bold curb appeal and farmhouse flair with this luxury house design. The open floor plan flows from the great room to the island kitchen. Check out the main-level master suite, where a big shower and soaking tub invite you to relax. Also, the huge walk-in closet features an island and plenty of space for organization. A pocket office on the first floor allows you to work from home with ease. Don’t miss the spacious loft and media room on the second level.
Luxurious House Plan with Outdoor Living
Plan 930-513
With a variety of outdoor spaces (including a large lanai) this luxury home plan makes outdoor living easy. Inside, the kitchen's big island takes center stage. A versatile study on the first floor could become a home office, a hobby space, or a private yoga room. In the master suite, you'll find a modern bathroom with two showers, a soaking tub, dual sinks, and two walk-in closets.
Contemporary Design with Large Master Closet
Plan 928-287
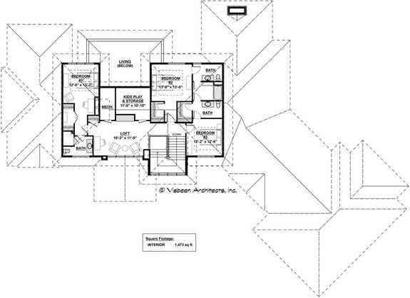
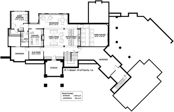
A wide island joins forces with a built-in banquette and nearby dining room to create a food-focused center in this contemporary home (the Cicero) from Visbeen Architects. Outdoor living is made easy with a side covered patio, which flows into the screened porch with a fireplace to warm chilly nights. The master suite offers a generous layout with a huge walk-in closet between the bedroom and the spacious bathroom.
You’ll love the roomy second level, where a loft separates a private suite (ideal for an older child or guests) from two additional bedrooms. The basement can be finished to become a fun retreat for visitors, complete with a home theater, wet bar, exercise room, and more.
European House Plan with Lots of Storage
Plan 430-192
Explore tons of photos of this elegant home. Our favorite part? The brick accent walls inside that provide a fun welcome to the large, open kitchen. Or maybe the ultra-luxurious, two-part master bathroom (no sharing!). Work from home? A home office space gives you plenty of room to get work done. This design also gives you lots of room for storage (note the master closets and kitchen pantry). Head out to the screened porch (just off the great room) when the weather is nice.
Smart Details Throughout
Plan 1074-8
Luxury design today looks like this home: spacious, open, and full of smart details like extra storage. We love how spacious the vaulted ceiling makes everything feel, along with the open layout of the kitchen. Don’t miss the master shower, part of your spa-like bathroom that leads into the enormous closet.
Craftsman House Plan with Two Islands
Plan 927-5
It’s not hard to figure out why this home sells really well – just look at it! The stunning Craftsman-inspired exterior shows off a large porch and plenty of windows. Explore photos of the interior (modified somewhat from the plan, but still helpful) to feel as if you’re there. We love the cozy keeping room. The family room flows into the kitchen, where a serving bar and additional island give you tons of room for cooking and hanging out. Take a look at the master suite’s huge closet.
Popular Farmhouse Plan with Luxury Features
Plan 51-1132
Get a good look inside this luxurious farmhouse design, from the spacious kitchen to the main-level master suite. The bathroom gives you two sinks and a whole lot of counter space. Don’t miss the home office just off the dining room. In the great room, a cozy fireplace creates a grand focal point. The kitchen sits just steps away for easy flow. Check out the wide front porch and out-of-sight garage.



























