Blog Home > Luxury House Plans We Love

The Houseplans Blog

Luxury House Plans We Love

These luxury house plans stand out with elegant details.

Hero Image

June 6, 2022

Livabl Brand

Can't find what you're looking for?

Give us a call below or reach out and we’ll make sure to be in contact!

Send Us a Message

By Courtney Pittman

Like the look of luxury? We’ve got you covered. These luxury house plans are filled with thoughtful details like spa-like primary suites, big kitchen islands, and plenty of outdoor living spaces. See our roundup below.

Want to discover more luxury house plans? See the full collection here.

Luxe Farmhouse Design Luxe Farmhouse Design Luxe Farmhouse Design 51-1213 - Front Exterior

Luxe Farmhouse Design Luxe Farmhouse Design 51-1213 - Main Floor Plan

Luxe Farmhouse Design Luxe Farmhouse Design 51-1213 - Upper Floor Plan

Inside this impressive farmhouse design is a functional layout with clever touches. A spacious mudroom sits near the two-car garage. Steps away, the kitchen island overlooks the open great room. Check out the extra-spacious pantry.

The primary suite enjoys privacy on the main level (good for aging in place) and gives you a relaxing tub, a separate shower, and a big walk-in closet. Three additional bedrooms and two full baths wait on the second floor. Other details include a home office, flexible loft space, and a sitting area.

Two Spa-Like Primary Suites Two Spa-Like Primary Suites Two Spa-Like Primary Suites 923-274 - Front Exterior

Two Spa-Like Primary Suites Two Spa-Like Primary Suites 923-274 - Main Floor Plan

Here’s a luxury house plan that delivers grand curb appeal. Inside, special amenities include not one, but TWO elegant primary suites. The kitchen showcases an open island with a snack bar and a walk-in pantry. Steps away, a butler’s pantry sits next to the formal dining room (check out these butler pantry ideas from The Spruce).

Barn doors deliver style to the home office near the front. The big covered back porch is a thoughtful touch.

European Luxury European Luxury European Luxury 1074-60 - Front Exterior

European Luxury European Luxury 1074-60 - Main Floor Plan

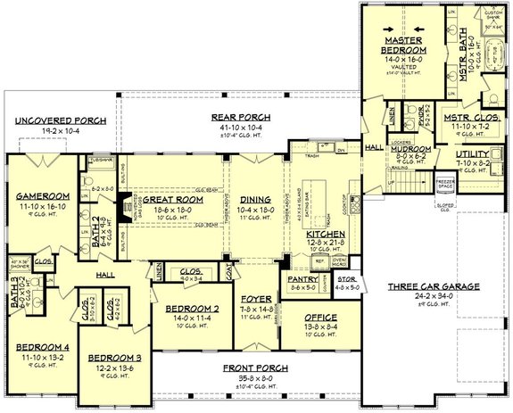
An island in the primary suite’s spacious closet is just one of the impressive features in this European house plan. You’ll also find a walk-in closet in each bedroom, a rear porch with an outdoor kitchen, and a handy home office.

Don’t miss the open great room and the kitchen’s wide island. Designed to impress, the exterior delivers European luxury and a roomy front porch. Storage in the mudroom is a nice detail (enjoy these mudroom storage tips from Homes & Gardens).

Modern and Efficient Modern and Efficient Modern and Efficient 1070-181 - Front Exterior

Modern and Efficient Modern and Efficient 1070-181 - Main Floor Plan

Modern and Efficient Modern and Efficient 1070-181 - Upper Floor Plan

Modern and Efficient Modern and Efficient 1070-181 - Lower Floor Plan

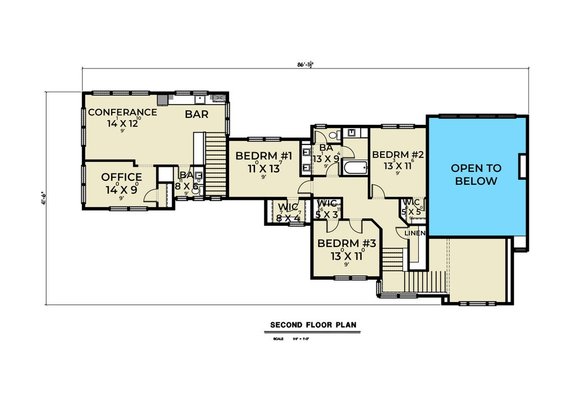
Easy living flows through the generous great room, the island kitchen, the open dining area, and out to the covered patio. The primary suite is conveniently located on the main level and gives you a big walk-in closet and direct access to the back porch. Check out the cool mudroom on the way in from the garage.

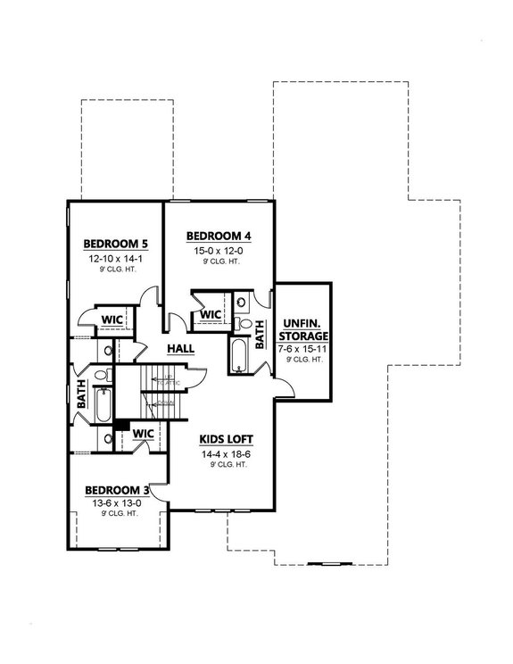
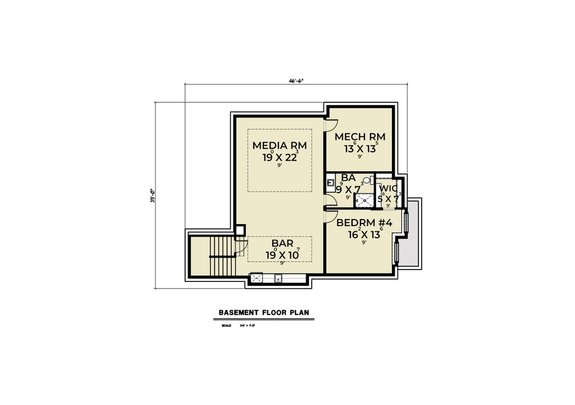
The second floor offers luxury with three bedrooms (each with a walk-in closet), two-and-a-half baths, an office, and a versatile conference area with a bar. Highlights of the basement include extra storage, a flexible media room, and an additional bedroom.

Two-Story Contemporary Plan Two-Story Contemporary Plan Two-Story Contemporary Plan 1066-165 – Front Exterior

Two-Story Contemporary Plan Two-Story Contemporary Plan 1066-165 - Main Floor Plan

Two-Story Contemporary Plan Two-Story Contemporary Plan 1066-165 - Upper Floor Plan

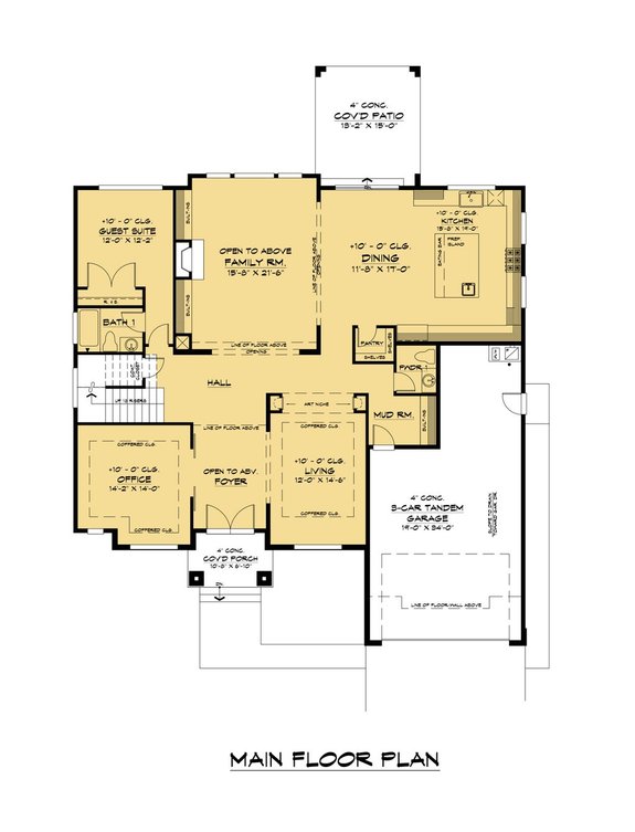
Discover this streamlined two-story contemporary house plan. The head-turning exterior gives you sleek curb appeal with clean lines, mixed siding, and lots of windows. Inside, a well-equipped kitchen offers a central island, a big pantry, and overlooks the open dining area and family room.

You’ll find plenty of storage throughout, especially in the generous mudroom. Upstairs, the primary suite showcases a massive walk-in closet. Three secondary bedrooms, a bonus room, and two full baths occupy this level. Don’t miss the home office, guest suite (on the main floor), and the covered patio.

Fresh Farmhouse with Summer Kitchen Fresh Farmhouse with Summer Kitchen Fresh Farmhouse with Summer Kitchen 120-250 - Front Exterior

Fresh Farmhouse with Summer Kitchen Fresh Farmhouse with Summer Kitchen 120-250 - Main Floor Plan

Fresh Farmhouse with Summer Kitchen Fresh Farmhouse with Summer Kitchen 120-150 - Upper Floor Plan

Board-and-batten siding, a gable roof, and a welcoming front porch add farmhouse flair to this fresh design. The great room opens to the island kitchen, the dining nook, and the back lanai (which features a summer kitchen) with ease. A quiet office sits near the foyer.

Located on the main level, the primary suite makes it easy to age in place and includes a safe room. Two bedroom suites, an additional bedroom, and a full bath round out the second floor. A game room also rests up here.

Two Kitchen Islands Two Kitchen Islands Two Kitchen Islands 930-476 - Front Exterior

Two Kitchen Islands Two Kitchen Islands 930-476 - Main Floor Plan

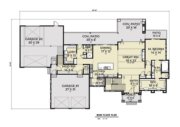
Contemporary and cool, this three-bedroom house plan gives you luxurious style and a striking layout. Disappearing walls connect the open gathering spaces to the cool "Florida room" – which opens up on two sides for indoor/outdoor living. The thoughtful kitchen gives you two islands, a double oven, and a dry bar.

A versatile study sits near the front and boasts a full bath. The primary suite keeps things organized with two walk-in closets. Don’t miss the cool courtyard!

Family-Friendly with Screened Porch Family-Friendly with Screened Porch Family-Friendly with Screened Porch 1080-1 - Front Exterior

Family-Friendly with Screened Porch Family-Friendly with Screened Porch 1080-1 - Main Floor Plan

Family-Friendly with Screened Porch Family-Friendly with Screened Porch 1080-1 - Upper Floor Plan

Here’s a family-friendly design with lots of room to grow. For example, the unfinished attic space offers room for a future bedroom (with a walk-in closet) and a full bath. Check out the big island kitchen – which opens directly to the family room and the breakfast nook. Relaxing is made easy on the screened porch.

The main bedroom is conveniently located on the first floor. Upstairs, two bedrooms share a Jack-and-Jill bath. An additional bedroom suite and a loft round out this level.

Warm Exterior Warm Exterior Warm Exterior 430-222 - Front Exterior

Warm Exterior Warm Exterior 430-222 - Main Floor Plan

A metal roof covers the wide front porch of this welcoming farmhouse plan. Inside, the main living spaces merge into one open gathering area for easy living. The split-bedroom layout gives you plenty of privacy in the primary suite (which gives you direct access to the laundry room).

Other amenities we love include a walk-in closet in each secondary bedroom, the large rear porch, the handy office near the front, and the flexible game room.

Browse more luxury house plans here.

Get Our Newsletter

Be the first to see new plans, special offers, and more.

By signing up for our newsletter, you agree to our Terms & Conditions and Privacy Policy, for an account

Blog Subscribe Icon