Blog Home > Open Concept Floor Plans for Houses

The Houseplans Blog

Open Concept Floor Plans for Houses

These open concept plans make your space feel grand!

Hero Image

October 30, 2021

Livabl Brand

Can't find what you're looking for?

Give us a call below or reach out and we’ll make sure to be in contact!

Send Us a Message

By Gabby Torrenti

An open concept floor plan allows your home to flow freely and feel grand regardless of its size. These plans are built around main living and dining spaces, with a kitchen anchoring one end of the plan. Each of these open floor plans can also be customized based on your family’s needs, helping to create the ultimate open floor plan home. Explore some of our favorites below.

Want to see the full collection of open concept floor plans for houses? View the collection here.

Family-Friendly Modern Farmhouse Exterior - Front Elevation for Farmhouse House Plan #430-156 - 4 bed, 2.5 bath Family-Friendly Modern Farmhouse Plan 430-156 - Front Exterior Open Concept Floor Plans for Houses Family-Friendly Modern Farmhouse Plan 430-156 - Main Floor Plan Open Concept Floor Plans for Houses Family-Friendly Modern Farmhouse Plan 430-156 - Upper Floor Plan

This 2,686-square-foot modern farmhouse plan features contemporary details, making the space feel on-trend and sophisticated. On the main level, this plan opens to a foyer, which is flanked by a formal dining space to the right and a guest bedroom to the left. Straight ahead, the home is anchored by a great room with a high ceiling and a built-in fireplace, with the kitchen effortlessly flowing into this space. A center island makes this space flow even better, allowing you to easily entertain guests in both rooms with ease. A breakfast nook toward the rear of the home provides the perfect place to enjoy a cup of coffee with access to the rear porch. On the opposite side of the kitchen, a pantry helps keep your space neat and organized, while keeping all your favorite ingredients within reach.

Beyond the kitchen, the primary suite is located to the far right of the home. The suite itself comprises a sizable bedroom, a five-piece bathroom with double vanities and a private toilet closet, a huge walk-in closet (with an island!), and direct access to the laundry room to simplify chores.

Back across the home, guests or children can enjoy their own private spaces in three additional bedrooms with their walk-in closets and an additional bathroom with dual sinks. If more guests are in town or your family is looking for more space to relax, a short flight of stairs from the kitchen leads to a second-floor bonus room, which you can finish to give you a versatile space with a full bathroom.

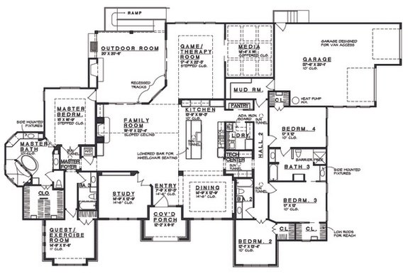
One-Story Prairie Home with Accessible Design Exterior - Front Elevation for Prairie House Plan #935-13 - 5 bed, 4 bath One-Story Prairie House Plan 935-13 - Front Exterior Open Concept Floor Plans for Houses One-Story Prairie House Plan 935-13 - Main Floor Plan

This one-story plan maximizes a single floor of living space with an open floor plan that allows simple access to each room. A covered porch leads into the entryway, which provides access to the family room with a sloped ceiling that opens the space further. A large center island welcomes you into the kitchen, which includes a pantry and dining space as well. Behind the kitchen, a laundry room and tech center add both fun and convenience to your home, leading toward the three guest bedrooms. Each of these rooms includes its own closet, while two bathrooms in this wing make preparing for the day simple.

Across the main living space, a foyer leads toward the primary suite, which gives the owners a luxe escape. This suite includes a bedroom with a stepped ceiling, a bathroom with two vanities, and enough closet space to hold all of your outfits. An optional guest or exercise room can allow you to have visitors stay close by or create a private gym in your own home.

The details of this home certainly don’t stop here, though. At the rear of the home, a game room and media room flow together, creating the perfect place for entertaining loved ones or giving kids their own room to enjoy with friends. An additional outdoor room lets you enjoy the elements or host guests outside when the weather allows.

The designer has included a variety of details that make this home more accessible, including a lowered snack bar for wheelchair seating, a garage designed for van access, and a barrier-free shower.

Easy-to-Navigate Contemporary Home Exterior - Front Elevation for Contemporary House Plan #892-10 - 4 bed, 3.5 bath Easy-to-Navigate Contemporary House Plan 892-10 - Front Exterior Open Concept Floor Plans for Houses Easy-to-Navigate Contemporary House Plan 892-10 - Main Floor Plan

This modern open-concept home opens directly to the great room, with a large dining area to the right, leading to the kitchen with a large center island. In this wing of the house, the space right off the garage includes a mudroom, laundry room, and powder room for keeping everything organized and convenient.

Across the home, a primary suite includes a bathroom with double sinks and a spacious walk-in closet. Two additional bedrooms are also in this wing, though separated enough from the primary suite to give you plenty of privacy. These two bedrooms each have their own closets and share a bathroom with double sinks to make brushing teeth and preparing for the day faster.

Upstairs, a designated den/studio area is perfect for hobbyists to enjoy, but can also be a cozy retreat for relaxation, too. The second level is made complete by another space that can be used as either a guest space or TV room (or perhaps a digital meeting space?), with a full bathroom located close by.

Open-Concept Farmhouse Exterior - Front Elevation for Farmhouse House Plan #430-184 - 4 bed, 2.5 bath Open-Concept Farmhouse Plan 430-184 - Front Exterior Open Concept Floor Plans for Houses Open-Concept Farmhouse Plan 430-184 - Main Floor Plan Open Concept Floor Plans for Houses Open-Concept Farmhouse Plan 430-184 - Upper Floor Plan

This four-bedroom modern farmhouse includes 2,373 square feet of wide-open living space, which is introduced by a front porch that leads into the foyer. Beyond the welcoming entryway, the home opens with the great room, with a spacious island kitchen located to the right. A large pantry with cabinet door entry makes grocery storage easy and chic, and a dining area at the opposite side allows you to enjoy your culinary creations with loved ones while overlooking the rear porch.

Steps away, the primary suite gives homeowners their own escape, including a bathroom with two vanities and a private toilet closet and access to a spacious closet for all of your favorite outfits. Conveniently accessed through the closet, the laundry room leads to an area with lockers to help keep your home neat and organized.

Across the main level, two more bedrooms with their own closets are the perfect retreats for children or guests with a full hall bathroom between the two rooms. An additional hall closet makes storage simple, too. The first floor is made complete by a versatile fourth bedroom, which can also be used as a home office if you choose. This space includes a closet and shelves as well, allowing you to store clothing or files with ease. Think you might want more space? The second-floor bonus room includes its own full bathroom and closet.

Interested in exploring more open-concept floor plans? View the full collection here.

Get Our Newsletter

Be the first to see new plans, special offers, and more.

By signing up for our newsletter, you agree to our Terms & Conditions and Privacy Policy, for an account

Blog Subscribe Icon