By Courtney Pittman
Dreaming of enhancing your backyard oasis? Check out these pool house plans. Whether you’re looking to create a stylish retreat or additional storage for pool equipment, these designs are sure to elevate your outdoor living experience. Make a splash with these pool house plans!
Contemporary Pool House Plan
 Contemporary Pool House Plan - Front Exterior
Contemporary Pool House Plan - Front Exterior
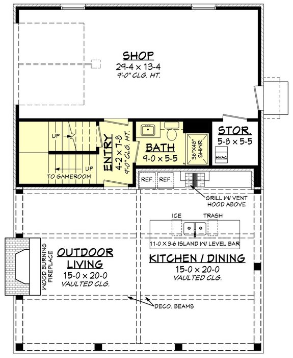
 Contemporary Pool House Plan - Main Level
Contemporary Pool House Plan - Main Level
 Contemporary Pool House Plan - Upper Level
Contemporary Pool House Plan - Upper Level
Here’s a multi-functional pool house plan with a contemporary exterior to boot. The vaulted outdoor space is ready to entertain with a long kitchen island that includes an eating bar. The grill area features a hood vent and plenty of counter space.
Nearby, a wood-burning fireplace offers warmth during the colder months. Need room for storage? You’ll find plenty in the one-car garage/shop. Check out the versatile game room on the second level.
Pool House with Kitchen
 Pool House with Kitchen - Front Exterior
Pool House with Kitchen - Front Exterior
 Pool House with Kitchen - Main Level
Pool House with Kitchen - Main Level
Eye-catching stone and a gable roof decorate the exterior of this pool house plan. A modern island kitchen anchors the interior. A soaring cathedral ceiling creates an airy vibe.
A bathroom with a shower waits at the back. A spacious covered patio offers shaded comfort. Need room for storage? Check out the pump house.
Versatile Pool House Plan
 Versatile Pool House Plan - Front Exterior
Versatile Pool House Plan - Front Exterior
 Versatile Pool House Plan - Main Level
Versatile Pool House Plan - Main Level
Looking for a versatile pool house plan? We’ve got you covered. This contemporary design features a generous outdoor living space ideal for lounging or entertaining. A vaulted ceiling delivers a breezy atmosphere, while a wood-burning fireplace keeps things cozy.
Our favorite part? The outdoor kitchen. Inside, the open-concept living area includes a kitchen island with an eating bar. A wall of sliding glass doors offers a seamless indoor/outdoor flow. The bathroom features a custom shower with a seat. The garage boasts two dedicated storage spaces. This flexible plan could also become a guest suite or a hobby studio.
Dedicated Storage
 Dedicated Storage - Front Exterior
Dedicated Storage - Front Exterior
 Dedicated Storage - Main Level
Dedicated Storage - Main Level
Boasting Mediterranean style, this house plan offers thoughtful features throughout. For example, the covered patio gives you a shaded retreat for relaxing by the pool. A buffet and an outdoor kitchen grill provide plenty of room for entertaining guests or serving up tasty refreshments.
The decorative niche in the center is a great spot for a TV. At the back of the plan, the dedicated storage keeps you organized with built-in shelves. A half bath adds convenience.
Practical Oasis
 Practical Oasis - Front Exterior
Practical Oasis - Front Exterior
Here’s a welcoming oasis with practical details. Ideal for relaxing poolside, the spacious pavilion features a hardworking outdoor kitchen. Nearby, a fireplace delivers cozy charm.
At the back of the plan, a bathroom (with a shower) offers a convenient changing area. The storage room is another practical touch.
Pool House Plan with Outdoor Shower
 Pool House Plan with Outdoor Shower - Front Exterior
Pool House Plan with Outdoor Shower - Front Exterior
 Pool House Plan with Outdoor Shower - Main Level
Pool House Plan with Outdoor Shower - Main Level
Compact and efficient, this pool house plan packs in a lot of fun. The vaulted lanai is the perfect spot for chilling out in the shade after a swim. Plus, there’s a spot on the wall for a hidden TV.
Enjoy snacks and drinks at the bar/grill area. Storage area keeps pool gear tidy. The bathroom features a shower and a built-in bench and shelves. Don’t miss the cool outdoor shower!
Bright and Open
 Bright and Open - Front Exterior
Bright and Open - Front Exterior
Bright and open, this pool house plan keeps things simple and functional. The covered porch gives you a reprieve from the sun. The outdoor grill area is ready for cookouts.
A wall of sliding glass doors connects the pool house to the outdoors, creating an effortless indoor/outdoor transition. Handy built-ins frame the fireplace. The half bath is a convenient touch.
Pool House Plan with Country Charm
 Pool House Plan with Country Charm - Front Exterior
Pool House Plan with Country Charm - Front Exterior
 Pool House Plan with Country Charm - Main Level
Pool House Plan with Country Charm - Main Level
 Pool House Plan with Country Charm - Upper Level
Pool House Plan with Country Charm - Upper Level
Here’s a pool house plan that’s bursting with farmhouse charm. We love the board-and-batten siding, the classic gable roof, and the French doors. The covered patio includes a cathedral ceiling and a long bar top, where a large window connects it to the interior.
Inside, you’ll find a wet bar and an optional island. A ladder leads you up to the versatile loft space.
Pool House Plan with Workshop
 Pool House Plan with Workshop - Front Exterior
Pool House Plan with Workshop - Front Exterior
 Pool House Plan with Workshop - Main Level
Pool House Plan with Workshop - Main Level
Here’s a bungalow-inspired pool house plan that shows off a classic beachy vibe with board-and-batten siding. The flexible workshop space is ideal for hobbies and projects. There’s plenty of room for storage in the pool supply closet.
The full bath features a built-in bench and hooks. We love the breezeway!