By Courtney Pittman
Interested in barndominium-style house designs? Single-story barndominium with wraparound porch plans are all the rage right now. Spacious garages with workshops? Check. Generous island kitchens? Yes please. These eight designs (most with conventional wood framing but the rustic look of a barndo) display spot-on style with timeless exteriors and practical floor plans (with little wasted space) that encourage modern living. Best of all, they offer well-thought-out amenities like organized mudrooms and luxe primary suites.
Want to see more? Check out our collection of single-story barndominium plans here.
Barndo Plan with Three-Car Garage
Barndo Plan with Three-Car Garage - Front Exterior
Barndo Plan with Three-Car Garage - Main Level
This sweet design turns heads with a wraparound porch and big windows. The open floor plan shows off a big island in the kitchen with an eating bar. Nearby, the vaulted great room/dining area keeps things cozy with a wood-burning fireplace.
On the left side of the plan, the primary suite shines with a sizable walk-in closet. Built-in shelves in the pantry are a nice touch. You’ll find plenty of room for storage in the three-car garage.
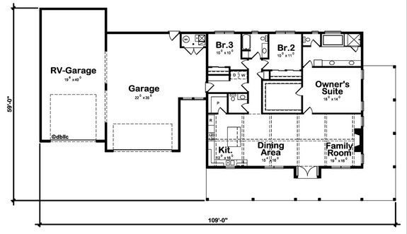
Room for an RV
Room for an RV - Front Exterior
Need room to store an RV? You’re in luck. This single-story barndominium plan gives you a three-car garage with RV storage. The fun doesn’t stop there; check out the extra-spacious closet in the primary suite. The family room opens to the island kitchen and the dining area. Two bedrooms share a full bath at the back of the plan. Don’t miss the lovely wraparound porch out front.
Affordable Barndominium Design
Affordable Barndominium Design - Front Exterior
Affordable Barndominium Design - Main Level
Here’s a cute barndominium design that offers 1,260 square feet of efficient living space. The interior feels bright and airy thanks to the open-concept floor plan and the vaulted ceiling. A farm sink in the kitchen delivers function and style. You’ll find ample room for groceries in the walk-in pantry.
The primary suite and a secondary bedroom take up space on the left side of the plan. Enjoy fresh air on the wraparound porch.
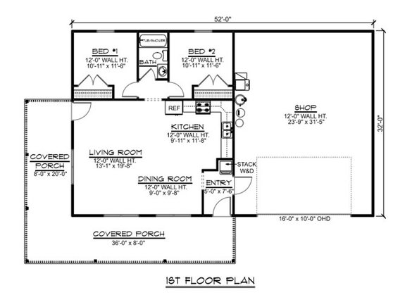
Shop-House Plan with Simple Footprint
Shop-House Plan with Simple Footprint - Front Exterior
Shop-House Plan with Simple Footprint - Main Level
Building on a small budget? Check out this practical, simple plan. Clocking in at 896 square feet, this design boasts an open layout that makes it feel bigger than it is. Sit back and relax on the wraparound porch.
Here’s a fun detail: the two-car garage features a shop area. Two bedrooms share a hall bath at the back of the plan.
Modest Two-Bedroom Design
Modest Two-Bedroom Design - Front Exterior
Modest Two-Bedroom Design - Main Level
Here’s an adorable barndominium plan that promotes modern living with a smart layout. The spacious great room flows nicely into the dining area and the kitchen. An island is perfect for relaxed meals.
The primary suite gives you direct access to the laundry room via the walk-in closet. Don’t miss the generous wraparound porch or the back porch.
Walk-In Closets in Every Bedroom
Walk-In Closets in Every Bedroom - Front Exterior
Walk-In Closets in Every Bedroom - Main Level
Timeless and cool, this barndo plan comes jam-packed with amenities. For example, each bedroom gives you a walk-in closet. A big shower and a separate tub highlight the primary suite.
Lockers keep items organized on the way in from the three-car garage. The kitchen overlooks the main living areas for a breezy vibe. We love the sizable wraparound porch.
Barndominium Plan with Safe Room
Barndominium Plan with Safe Room - Front Exterior
Barndominium Plan with Safe Room - Main Level
Spacious and upscale, this two-bedroom design has it all. The spacious floor plan makes it easy to move between the living room, the dining area, and the kitchen. There’s plenty of counter space in the kitchen, along with a large pantry.
The primary suite boasts an extra-big closet with an island and access to the laundry room. Other up-to-date features include a safe room, a handy mudroom, and a sewing room that could become an office. Oh, and there's lots of space for outdoor living to boot.
Simple Barndo Plan with Mudroom
Simple Barndo Plan with Mudroom - Front Exterior
Simple Barndo Plan with Mudroom - Main Level
Here’s a barndominium house plan that’s full of classic charm. We love the wraparound porch. Lots of windows brighten up the main living areas, while an open layout creates a contemporary vibe.
Near the two-car garage, a mudroom features a built-in desk and lockers. Storage solutions include a walk-in closet in every bedroom (including the primary suite), a roomy pantry, and attic space.
