By Gabby Torrenti
Coming in at under 2,000 square feet, the small house plans in this collection don’t skimp on smart details, outdoor spaces, and lots of room for hosting guests. From classic farmhouses with traditional charm to modern homes with luxe features, you’re sure to find the perfect fit for your family. These budget-friendly home plans have small footprints, are neighborhood-friendly, and easy to maintain due to their manageable sizes. Browse this section of floor plans to find the perfect option for your building project.
Want to see our full collection of small house design plans? See them all here.
Space-Saving Modern Farmhouse
Plan 430-250
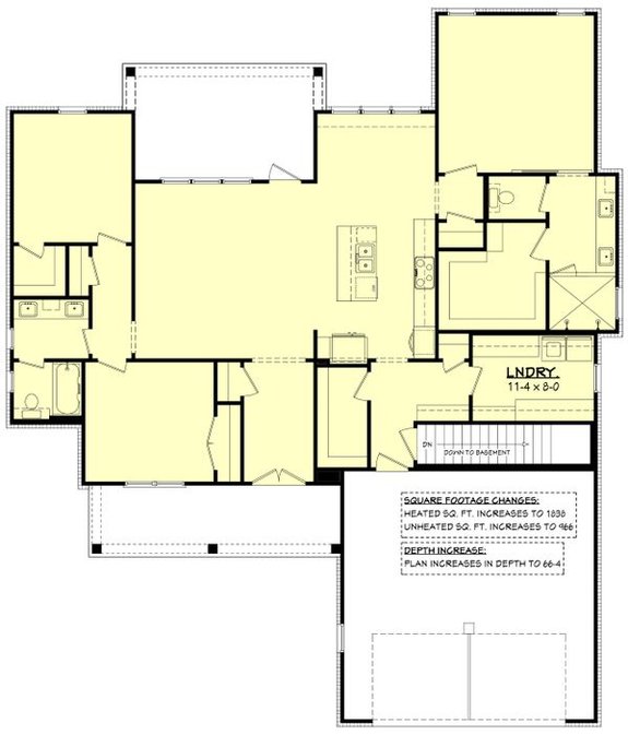
This 1,756 square foot home greets guests with classic farmhouse features, leading into an open floor plan home perfect for entertaining. A foyer at the front of the home leads into the great room, which flows seamlessly into the kitchen. A large island in the center of the kitchen is perfect for preparing meals or gathering family for a quick snack. A dining area at the back of the home provides an area to enjoy a meal together, just steps away from the rear porch. Down a short hallway, the primary suite is situated at the back of the home, giving the owners their own space to unwind. A bathroom with dual sinks and a sizable shower adds to this space’s convenience and leads directly into the large walk-in closet.
Across the home, two additional bedrooms give children or guests lots of room to relax, each with its own closet and a shared bathroom in the middle. This bathroom includes dual sinks and privacy for the toilet and shower area. Back at the front of the home, a two-car garage provides maximum storage space, leading into the garage entry space that essentially acts as a mudroom. The pantry, coat closet, and laundry room are all easily accessible from this entryway for ultimate convenience.
Sleek Farmhouse with Smart Details
Plan 1074-10
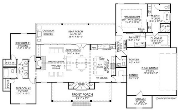
From the outside, this home epitomizes farmhouse living, but stuns with smart details and modern fixtures inside. 1,954 square feet feels grand with vaulted ceilings and an easy-to-navigate open floor plan. Beyond the front porch. a foyer welcomes you inside, leading directly into the great room. High ceilings make everything feel extra-airy. A breakfast bar at the center of the space is the perfect hub for your family to come together at the beginning or end of the day. At the back of the home, a rear porch with an outdoor kitchen is the ideal outdoor entertaining space during warm-weather months.
Back inside, the primary suite occupies most of the home’s right side and includes a sizable bedroom with a tray ceiling, a walk-in closet, and a bathroom with dual sinks, both a shower and tub, and a separate toilet closet. Steps from the suite, the laundry room and mudroom help keep your space neat and tidy. Across the home, two more bedrooms are perfect for guests or children, with a shared bathroom that provides two sinks for extra convenience.
Are you stumped on house to decorate a smaller space? Check out these ideas from Country Living.
New Modern Farmhouse with Photos
Plan 1070-151
This 1,954 square foot home packs every detail you could want into a compact space. With a living room greeting guests at the front of the home, this space is perfect for entertaining, as the dining room and kitchen are located straight ahead. The first-floor flow is uninterrupted, making the space feel larger than it is. A patio on the left side is ideal for outdoor entertaining as well.
Across the home, the primary suite consists of a sizable bedroom, a bathroom with dual sinks and a private toilet closet, and a walk-in closet for keeping belongings within reach. A short flight of stairs a few steps away leads to the second floor, where two more bedrooms give children or guests lots of space to relax. Each room has access to a shared bathroom with two sinks and a private area for bathing.
Contemporary Home with Rustic Details
Plan 1070-146
From the outside, this home is punctuated with woodsy elements, with the main entrance located up a flight of stairs, making you feel like you’re entering a chic, modern treehouse. This narrow design could work well on a smaller lot, but not a single detail is spared in this 1,731-square-foot home.
Through the front door, a great room opens the home, leading effortlessly into the kitchen, with its own attached nook for enjoying breakfast or a cup of coffee. Just steps away, a patio allows for outdoor entertaining or a quiet night overlooking the property. On the right side of the home, the primary suite provides an oasis for the owners, equipped with a bathroom with dual sinks and a walk-in closet. And since you're on the same level as the laundry room, chores are simple. Upstairs, another bedroom is the perfect private space for children or visitors, with its own full bathroom. On the lower level, a versatile family room could become your quiet place for working from home.
Modern Luxe Home
Plan 895-60
At 1,731 square feet, this home is certainly compact but feels far larger than it is. On the exterior, slanted roof details and chic stone draw guests inside, revealing a luxe single level with lots of open space. Beyond the front patio, a combined living and dining space is ideal for entertaining, with the kitchen anchoring the space. A center island in the middle makes meal prep simple and provides a hub for entertaining as well. Just around the corner, the primary suite includes a bathroom with dual sinks, a private toilet closet, and a walk-in closet. The laundry room is located nearby for added convenience. Across the home, a short hallway reveals two more bedrooms, each with their own closets, and a linen closet for storing extra supplies. A bathroom in the hallway includes dual sinks, which makes sharing this space simple.








