Blog Home > The Best 30 Ft. Wide House Plans for Narrow Lots

The Houseplans Blog

The Best 30 Ft. Wide House Plans for Narrow Lots

Check out these 30 ft. wide house plans for narrow lots.

Hero Image

April 12, 2022

Livabl Brand

Can't find what you're looking for?

Give us a call below or reach out and we’ll make sure to be in contact!

Send Us a Message

By Courtney Pittman

Building on a tight lot? Check out these 30 ft. wide house plans for narrow lots. Light-filled interiors, efficient floor plans, and compact footprints (each around 30 ft. wide) make them ideal for smaller lots or building in the city. We’ve rounded up some of our favorites below.

See more 30 ft. wide house plans for narrow lots here.

Modest House Plan with Big Kitchen Island

Modest House Plan with Big Kitchen Island Modest House Plan with Big Kitchen Island 430-277 - Front Exterior

Modest House Plan with Big Kitchen Island Modest House Plan with Big Kitchen Island 430-277 - Main Floor Plan

A charming façade makes this modest house plan shine. Inside, an open floor plan makes the kitchen the focus with its big island and eating bar. Two bedrooms and a full bath are tucked away on the right side of the plan. Don’t miss the rear porch (check out these must-have porch features from The Spruce) and the beamed vaulted ceiling in the living room.

Cottage House Plan with Vaulted Ceilings

Cottage House Plan with Vaulted Ceilings Cottage House Plan with Vaulted Ceilings 1070-174 - Front Exterior

Cottage House Plan with Vaulted Ceilings Cottage House Plan with Vaulted Ceilings 1070-174 - Main Floor Plan

Cottage House Plan with Vaulted Ceilings Cottage House Plan with Vaulted Ceilings 1070-174 - Upper Floor Plan

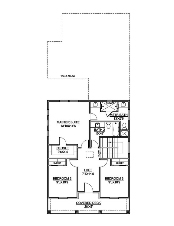
Just 29 feet wide, this cottage house plan utilizes narrow dimensions and smart amenities. The inviting front porch offers loads of curb appeal. An open floor plan makes excellent use of square footage, with the island kitchen, dining area, and vaulted family room in one shared space. The primary suite holds a spacious shower and dual sinks and is conveniently located on the main floor.

Upstairs, two more bedrooms share a full bath. A covered patio in back on the main floor is accessed from the family room.

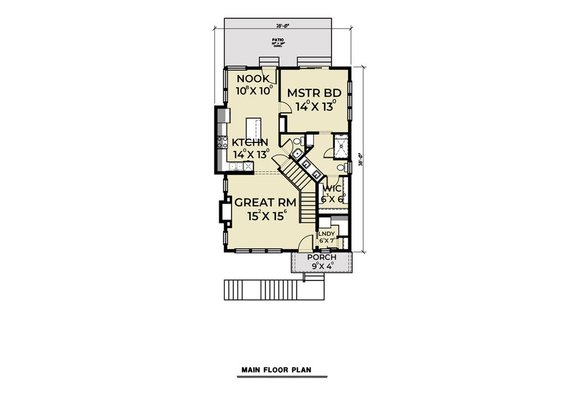
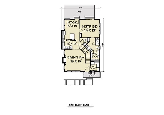
Contemporary Craftsman Design

Contemporary Craftsman Design Contemporary Craftsman Design 569-60 - Front Exterior

Contemporary Craftsman Design Contemporary Craftsman Design 569-60 - Main Floor Plan

Contemporary Craftsman Design Contemporary Craftsman Design 569-60 - Upper Floor Plan

This contemporary Craftsman house plan gives you a layout that is simple and modern. The large island in the kitchen provides plenty of space for casual meals. You’ll love the primary suite’s big walk-in closet, the upstairs laundry room, and the flexible loft. An office on the first level allows you to work from home with ease (Take a look at these home office solutions from Apartment Therapy).

Sleek and Stylish Narrow Lot House Plan

Sleek and Stylish Narrow Lot House Plan Sleek and Stylish Narrow Lot House Plan 1066-149 - Front Exterior

Sleek and Stylish Narrow Lot House Plan Sleek and Stylish Narrow Lot House Plan 1066-149 - Main Floor Plan

Sleek and Stylish Narrow Lot House Plan Sleek and Stylish Narrow Lot House Plan 1066-149 - Upper Floor Plan

Sleek, stylish, and cool, this contemporary house plan gives you big windows to let in lots of natural light. The impressive layout revolves around the open kitchen and living room, where a large island with an eating bar makes it easy to serve meals. A smart office/pantry gives you an organized place to work with a built-in desk and shelves.

Upstairs, the spacious primary suite includes a large walk-in closet, a big shower, and access to a private deck. Two secondary suites are also up here. Don’t miss the flexible loft space.

Classic Colonial Style Home Plan

Classic Colonial Style Home Plan Classic Colonial Home Plan 1073-34 - Front Exterior

Classic Colonial Style Home Plan Classic Colonial Home Plan 1073-34 - Main Floor Plan

Classic Colonial Style Home Plan Classic Colonial Home Plan 1073-34 - Upper Floor Plan

Two covered front outdoor living areas create a stunning exterior. Take a look at the kitchen, where an island opens to the big great room. The spacious primary suite is located on the second floor and gives you separate vanities and a shower with two showerheads. A bedroom on the first level could also serve as a study if needed. Other thoughtful amenities include a patio courtyard and a versatile loft.

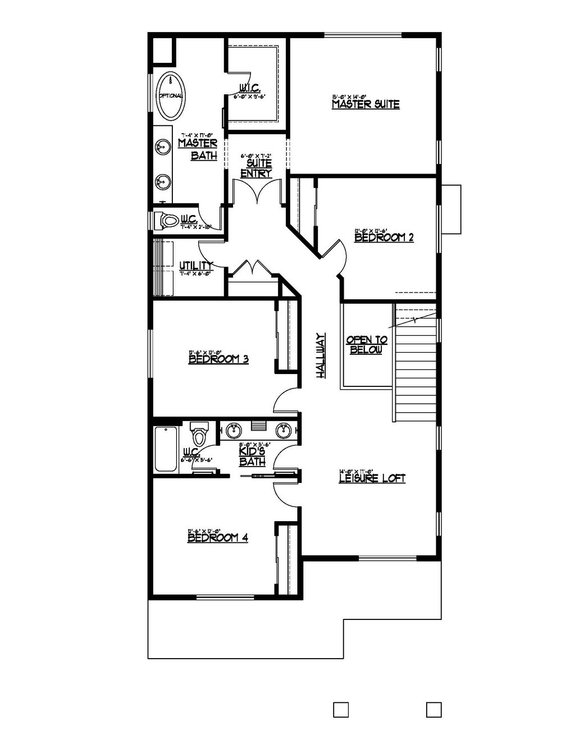
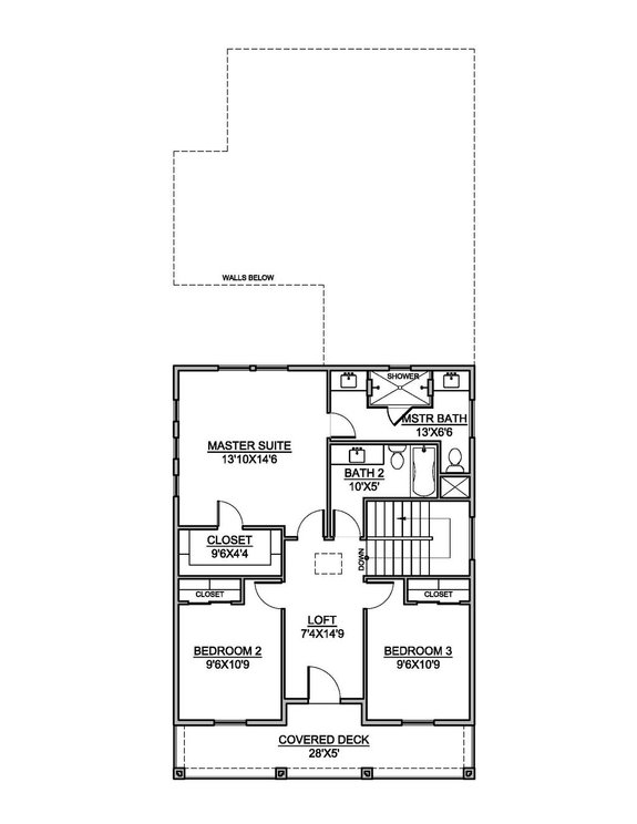
Narrow Lot House Plan with Luxe Amenities

Narrow Lot House Plan with Luxe Amenities - Front Exterior

Narrow Lot House Plan with Luxe Amenities Narrow Lot House Plan with Luxe Amenities - Main Floor Plan

Narrow Lot House Plan with Luxe Amenities Narrow Lot House Plan with Luxe Amenities - Upper Floor Plan

Although just 28 ft. wide, this narrow lot house plan lives large with an open floor plan and luxe amenities. For example, the main-level primary suite is tucked away near the back of the plan and features a separate shower and tub and an impressive walk-in closet that opens directly into the utility room for extra convenience. Upstairs, two more bedrooms enjoy walk-in closets and share a full bath.

Functional Farmhouse Plan

Functional Farmhouse Plan Functional Farmhouse Plan 430-254 - Front Exterior

Functional Farmhouse Plan Functional Farmhouse Plan 430-254 - Main Floor Plan

This stylish 1,252-square-foot home includes a smart layout that is functional and spacious. The open floor plan places the great room, island kitchen, and dining area on the right side of the home. Covered porches on both the front and the back invite you outdoors. Check out the big closet in the primary suite.

Contemporary Cottage Style

Contemporary Cottage Style Contemporary Cottage Style 25-4933 - Front Exterior

Contemporary Cottage Style Contemporary Cottage Style 25-4933 - Main Floor Plan

Contemporary Cottage Style Contemporary Cottage Style 25-4933 - Upper Floor Plan

Contemporary Cottage Style Contemporary Cottage Style 25-4933 - Lower Floor Plan

This modern cottage design wastes no space. An eating bar more counter space in the open kitchen. Relax and take in the views through the soaring windows in the vaulted great room. The sunny primary suite/loft enjoys space on the second floor, while two extra bedrooms wait on the lower level.

Modern House Plan with Three Levels

Modern House Plan with Three Levels Modern House Plan with Three Levels 1070-146 - Front Exterior

Modern House Plan with Three Levels Modern House Plan with Three Levels 1070-146 - Main Floor Plan

Modern House Plan with Three Levels Modern House Plan with Three Levels 1070-146 - Upper Floor Plan

Modern House Plan with Three Levels Modern House Plan with Three Levels 1070-146 - Lower Floor Plan

Ideal for a narrow lot, this sleek house plan provides three levels of living and a modern façade. Well-placed windows flood the great room with natural light. The main floor holds the primary gathering spaces and the primary suite.

Upstairs, the secondary bedroom includes a private bathroom, while the lower level shows off a family room. Don’t miss the peaceful outdoor living spaces.

Cute and Relaxed House Plan

Cute and Relaxed House Plan Cute and Relaxed House Plan 124-1278 - Front Exterior

Cute and Relaxed House Plan Cute and Relaxed House Plan 124-1278 - Main Floor Plan

Cute and Relaxed House Plan Cute and Relaxed House Plan 124-1278 - Upper Floor Plan

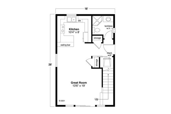
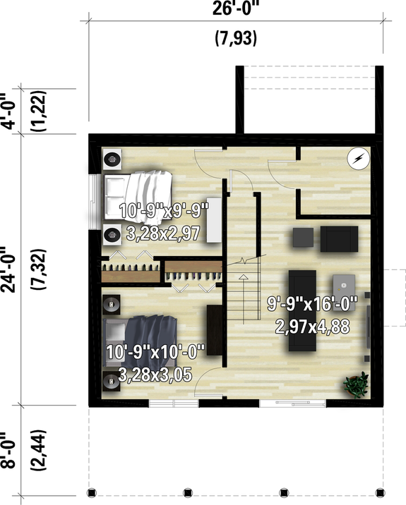
This cute 882-square-foot house plan showcases a relaxed floor plan. The kitchen's eating counter opens to the great room. A bathroom with a shower also rests on this floor. Two additional bedrooms and another bathroom round out the second level.

See more 30 ft. Wide plans for narrow lots here.

Get Our Newsletter

Be the first to see new plans, special offers, and more.

By signing up for our newsletter, you agree to our Terms & Conditions and Privacy Policy, for an account

Blog Subscribe Icon