Blog Home > The Best House Plans for Staying on Budget

The Houseplans Blog

The Best House Plans for Staying on Budget

Stay on budget with these affordable house plans.

Hero Image

September 23, 2022

Livabl Brand

Can't find what you're looking for?

Give us a call below or reach out and we’ll make sure to be in contact!

Send Us a Message

By Courtney Pittman

In the market for an affordable design? Here are ten of our best house plans for staying on budget. Look for modest footprints, minimal walls, and multi-use spaces (like kitchen islands). Our list features popular modern farmhouse plans, cute bungalows, and more.

Want more? Discover our affordable and best house plans collection here.

Best House Plan with Modern Farmhouse Style Best House Plan with Modern Farmhouse Style Best House Plan with Modern Farmhouse Style - Front Exterior

Best House Plan with Modern Farmhouse Style Best House Plan with Modern Farmhouse Style - Main Floor Plan

Looking for an affordable house plan with farmhouse flair? Here's a nice one. The efficient layout includes an island kitchen (with an eating bar) that opens to the living room and the dining nook. Sliding glass doors access the rear porch and encourage indoor/outdoor living.

We love the big walk-in closet and the custom shower in the primary suite. Don’t miss the extra-spacious pantry (with shelves and a counter), the drop zone with lockers, and the open storage in the two-car garage (take a look at these utility space ideas from HGTV).

Best House Plan with Wide Front Porch Best House Plan with Wide Front Porch Best House Plan with Wide Front Porch - Front Exterior

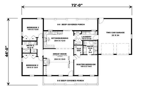
The Best House Plans for Staying on Budget Best House Plan with Wide Front Porch - Main Floor Plan

Front and rear porches deliver outdoor comfort to this three-bedroom design. Inside, the easygoing floor plan features a cathedral ceiling in the great room. Check out the generously-sized laundry room.

In the right wing of the plan, the primary suite features dual sinks, a roomy closet, and a relaxing tub. Two more bedrooms share a hall bath on the opposite side.

Contemporary Best House Plan Contemporary Best House Plan Contemporary Best House Plan - Front Exterior

Contemporary Best House Plan Contemporary Best House Plan - Main Floor Plan

Here’s a sleek, contemporary one-story house plan. The open layout displays an island kitchen that opens to the great room, while the deluxe primary suite holds a shower and a large walk-in closet. The laundry room sits conveniently nearby.

The covered patio in back gives you a nice place to kick back and relax. Two additional bedrooms wait at the front.

Best House Plan with Office Best House Plan with Office Best House Plan with Office - Front Exterior

Best House Plan with Office Best House Plan with Office - Main Floor Plan

Here’s a budget-friendly farmhouse design. Next to the foyer, an office gives you a quiet place to work. At the kitchen island, an eating bar serves up casual meals. The primary suite enjoys privacy and shines with a spa-like bathroom.

A pantry is ready to hold groceries on the way in from the two-car garage, while lockers (and a closet) keep items organized. The rear porch is ready for outdoor living (check out these outdoor living trends from Better Homes & Gardens).

Best House Plan with Ranch Style Best House Plan with Ranch Style Best House Plan with Ranch Style - Front Exterior

Best House Plan with Ranch Style Best House Plan with Ranch Style - Main Floor Plan

Board-and-batten siding, a welcoming front porch, and a metal gable roof add style to the exterior of this ranch house plan. Inside, the open kitchen feels relaxed with an island with a snack bar.

You’ll love the primary suite’s ample closet space. An optional patio in back of the home invites you to enjoy the season.

Best House Plan with Screened Porch Best House Plan with Screened Porch Best House Plan with Screened Porch - Front Exterior

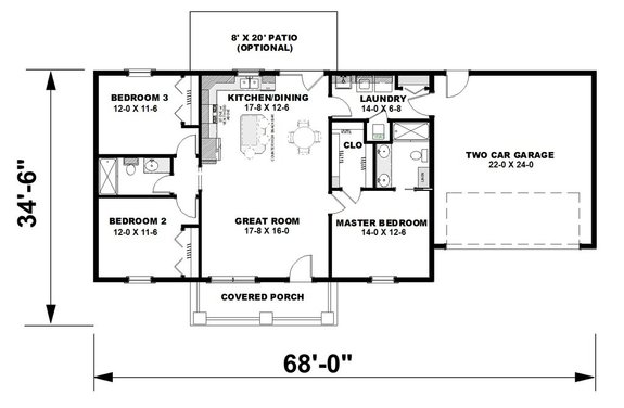
Best House Plan with Screened Porch Best House Plan with Screened Porch - Main Floor Plan

At 1,925 square feet, this three-bedroom home features a smart layout. Relax with a good book in the fireplace-warmed sitting area next to the dining nook. Nice weather? Unwind on the charming screened porch.

On the right, the primary suite feels like a retreat with a luxe bathroom and access to its own private porch. Don’t miss the lockers and bench in the clever drop zone near the garage. A handy pocket office sits near the front.

Best House Plan with Garage Apartment Best House Plan with Garage Apartment Best House Plan with Garage Apartment - Front Exterior

Best House Plan with Garage Apartment Best House Plan with Garage Apartment - Main Floor Plan

Best House Plan with Garage Apartment Best House Plan with Garage Apartment - Upper Floor Plan

Building on a tight lot? Check out this narrow garage apartment plan. An open living space waits on the second floor and includes a bedroom, a full bath, and a powder room. You’ll have plenty of storage in the walk-in closet.

A covered deck delivers even more livable space. The first level hosts the huge three-car garage, the laundry room, and another bathroom (with a shower!).

Best House Plan with Simple Layout Best House Plan with Simple Layout Best House Plan with Simple Layout - Front Exterior

Best House Plan with Simple Layout] Best House Plan with Simple Layout - Main Floor Plan

Here’s an affordable house plan with a simple footprint. The kitchen, family room, and dining area flow seamlessly together at the center of the home. For extra convenience, the mudroom boasts a bench and lockers for easy storage.

Another perk? This design features two bedroom suites (each with a walk-in closet) for versatility. An additional bedroom sits near the hall bath.

Best House Plan with Wraparound Porch Best House Plan with Wraparound Porch Best House Plan with Wraparound Porch - Front Exterior

Best House Plan with Wraparound Porch Best House Plan with Wraparound Porch - Main Floor Plan

Best House Plan with Wraparound Porch Best House Plan with Wraparound Porch - Upper Floor Plan

Warm and inviting, this country design stands out with a beautiful wraparound porch. Inside, the efficient floor plan makes the most of its modest square footage. The well-placed kitchen island overlooks the family room, creating an airy vibe.

Great for aging in place, the primary suite rests on the first floor and sports dual vanity sinks and a generous walk-in closet. Upstairs, a hall bath sits between two secondary bedrooms. A bonus room adds flexibility.

Narrow-Lot Best House Plan Narrow-Lot Best House Plan Narrow-Lot Best House Plan - Front Exterior

Narrow-Lot Best House Plan Narrow-Lot Best House Plan - Main Floor Plan

Narrow-Lot Best House Plan Narrow-Lot Best House Plan - Upper Floor Plan

Here’s a farmhouse-inspired garage apartment plan that won’t break the budget to build. The first level holds up to two vehicles and includes room for storage (under the stairs). On the second floor, the easygoing floor plan between the living space and the kitchen makes it easy to get around.

A bedroom, a full bath, and a laundry closet complete this level.

Explore more affordable best house plans here.

Get Our Newsletter

Be the first to see new plans, special offers, and more.

By signing up for our newsletter, you agree to our Terms & Conditions and Privacy Policy, for an account

Blog Subscribe Icon