By Courtney Pittman
Who can resist luxury house plans? From lavish primary suites to hardworking kitchens, these impressive designs embrace comfort and functionality – no matter the size. Look for modern farmhouse plans, sleek modern designs, timeless barndominiums, and more. Here are our top 30 luxury house plans with streamlined layouts, multi-use spaces, and (of course) bold curb appeal.
Want more? Explore our collection of luxury house plans here.
Plenty of Outdoor Living
Plenty of Outdoor Living - Front Exterior
Plenty of Outdoor Living - Main Level
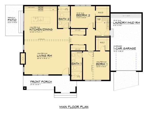
Modern farmhouse plans are (still) having a moment, and we are here for it. This classic design greets you with a welcoming front porch and country curb appeal. Inside, the island kitchen seats up to six and overlooks the open great room. A vaulted ceiling adds drama.
Stylish barn doors hide the walk-in pantry and the mudroom. The primary suite screams luxury with a spa-like bath, an extra-generous closet, and convenient access to the laundry room. Enjoy outdoor living on the rear grilling porch. A breezeway connects to the two-car garage, which features a storage closet.
Main-Level Primary Suite
Main-Level Primary Suite - Front Exterior
Main-Level Primary Suite - Main Level
Main-Level Primary Suite - Upper Level
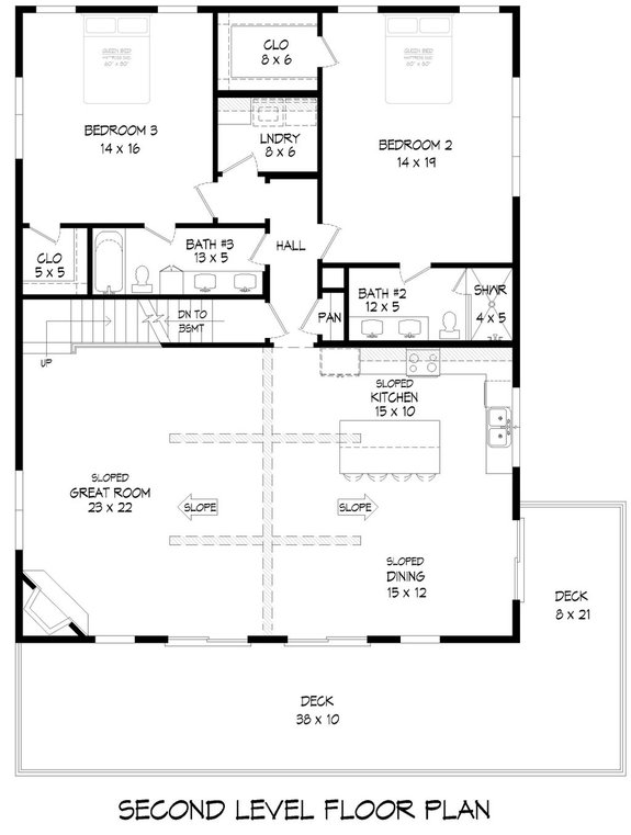
Here’s a three-bedroom plan that turns heads with Southern charm and a well-equipped layout inside. The fireplace-warmed great room features two sets of French doors that open to the rear veranda. You’ll find a walk-in pantry and a butler’s pantry connected to the island kitchen.
Next to the foyer, a dining room could also become a study or a library. The primary suite sits on the main level for easy aging in place and offers two walk-in closets. The second level includes a bonus room, storage space, and two secondary bedrooms. Don’t miss the courtyard next to the two-car garage.
Modern Farmhouse Design
Modern Farmhouse Design - Front Exterior
Modern Farmhouse Design - Main Level
This modern farmhouse design feels breezy and fresh with tons of glass in the vaulted great room. Front and rear porches offer relaxed outdoor living. On the right side of the plan, the private primary suite enjoys a wet room (with the tub inside the shower!), a big closet, and access to the laundry room.
The open kitchen shows off a generous island and a dining nook with a built-in bench. Nearby, the sizable pantry keeps groceries organized. Check out the cool bar, which comes equipped with a sink and counter space. Other highlights include a game room, an office/media room, a mudroom, and a three-car garage.
Sizable Pantry
Sizable Pantry - Front Exterior
Love the modern farmhouse look? We’ve got you covered with this sweet plan. Mixed siding, metal roof accents, and lots of windows deliver luxe curb appeal with a country twist. Inside, the super-open layout between the main living areas feels contemporary and bright.
An island (with an eating bar) in the kitchen overlooks the great room, where a fireplace creates a cozy ambiance. We love the big pantry, which features built-in cabinets and shelves. A mudroom with lockers waits close by. The optional outdoor kitchen on the rear porch is a welcome amenity.
One-Story Contemporary Plan
One-Story Contemporary Plan - Front Exterior
One-Story Contemporary Plan - Main Level
A study near the front gives you a quiet place to work from home. Nearby, the primary suite impresses with not one, but two walk-in closets and a deluxe bath. The great room, complete with a wet bar, opens to the island kitchen and the dining nook.
A wall of sliding glass doors opens to the covered lanai, where an outdoor kitchen is ready for relaxed meals. Both secondary bedrooms feature walk-in closets. A three-car garage rounds out this design.
European Plan with Pocket Study
European Plan with Pocket Study - Front Exterior
European Plan with Pocket Study - Main Level
Thanks to the super-open floor plan, this European-style design feels relaxed and modern. Work from home? Check out the pocket office next to the entry. An extra-spacious walk-in closet awaits you in the primary suite and offers direct access to the utility room.
Highlights in the kitchen include an island and a roomy pantry. Two bedrooms share a hall bath on the right side of the plan. Don’t miss the three-car garage and the covered patio out back.
Luxe House Plan for Sloping Lot
Luxe House Plan for Sloping Lot - Front Exterior
Luxe House Plan for Sloping Lot - Main Level
Luxe House Plan for Sloping Lot - Upper Level
Luxe House Plan for Sloping Lot - Lower Level
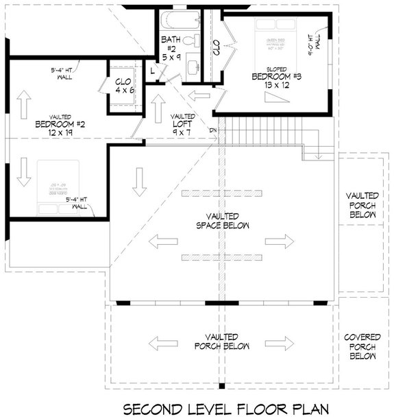
Building on a sloping lot? Check out this stunning design. Outdoor living options include a wraparound porch, an open deck, and a covered lower-level porch. The kitchen island serves the great room, where a vaulted ceiling draws the eye up.
The luxe primary suite resides on the main level and boasts a large shower, a freestanding tub, and ample closet space. A vaulted loft, two additional bedrooms, and a full bath wait upstairs, while a three-car garage and a flex space sit on the basement level.
Modern Curb Appeal
Modern Curb Appeal - Front Exterior
Modern Curb Appeal - Main level
A thoughtful floor plan makes this modern home design stand out. For example, the vaulted great room gives you a double-sided fireplace and opens to the kitchen island. There’s abundant room for groceries in the walk-in pantry (with a sink). Don’t miss the nearby butler’s pantry.
Enjoying privacy on the left side of the plan, the primary suite shows off an extra-generous closet with an island. Three additional bedroom suites wait on the right.
Plenty of Storage
Plenty of Storage - Front Exterior
Plenty of Storage - Main Level
This drool-worthy farmhouse plan has lots to love. Front and rear porches? Check. Three-car garage (with storage)? Here you go! The open layout inside offers effortless living. A well-placed island connects the kitchen to the dining area and the vaulted great room.
The pantry with built-in cabinets is a nice touch. The comfortable primary suite, along with the spacious laundry room, rests on the right side of the plan. Lockers in the mudroom keep items tidy.
Small Plan with Smart Details
Small Plan with Smart Details - Front Exterior
Small Plan with Smart Details - Main Level
Building on a tight lot? Check out this clever 1,500-square-foot farmhouse plan. In the kitchen, an island provides extra counter space for easy meal prep. The open family room features tons of glass and access to the front and rear porches for seamless indoor/outdoor living. The primary suite and two more bedrooms (each with a walk-in closet) round out this design.
Loving any of the plans you're seeing? Register now to easily save and return to your favorites!
Sleek and Seamless
Sleek and Seamless - Rear Exterior
Sleek and Seamless - Main Level
Clean lines and a shed roof grace the exterior of this modest modern house plan. A seamless layout waits inside. Our favorite part? A wall of sliding glass doors connects the great room to the rear covered porch.
In the kitchen, an island is ready for casual meals. You’ll have plenty of room to keep clothes organized in the large walk-in closet in the primary suite. Two additional bedrooms sit on either side of the foyer.
Timeless Plan with Shop
Timeless Plan with Shop - Front Exterior
Timeless Plan with Shop - Main Level
Just over 2,500 square feet, this modern farmhouse plan turns heads with a timeless exterior that includes a wide front porch. Inside, the easygoing layout places the island kitchen, the dining area, and the great room at the heart of the home. Stylish built-ins frame the fireplace.
Near the front of the plan, a guest room could double as an office. A coffee bar in the primary suite is a nice touch. A full hall bath serves the two secondary bedrooms. Other smart features include lockers and a built-in desk in the mudroom and a shop in the three-car garage.
Classic Wraparound Porch
Classic Wraparound Porch - Front Exterior
Classic Wraparound Porch - Main Level
Here’s a farmhouse plan that showcases modern living. We are here for the classic wraparound porch. Near the foyer, a versatile playroom could become a study. The island kitchen flows effortlessly into the family room, where a fireplace keeps things cozy.
Great for aging in place, the primary suite is located on the main level and gives you dual sinks, a shower, and a separate tub. A bedroom suite, two more bedrooms, and a full bath sit upstairs. Don’t miss the rear porch, which boasts a fireplace and an outdoor kitchen.
Hardworking Mudroom
Hardworking Mudroom - Front Exterior
Hardworking Mudroom - Main Level
Take a look at this eye-catching house plan. Designed with convenience and comfort in mind, this plan gives you a hardworking layout. For example, an extra-large pantry is ready to hold groceries. Just off the two-car garage, a mudroom with lockers keeps things (like pet supplies) organized.
Here’s a handy detail: each bedroom (including the primary suite) features a walk-in closet. Check out the vaulted back porch.
One-Story Plan with Hidden Pantry
One-Story Plan with Hidden Pantry - Front Exterior
One-Story Plan with Hidden Pantry - Main Level
Here’s a luxury house plan with lots of extras. The vaulted primary suite impresses with a walk-through shower (with a seat), access to the laundry room, and an island (with two dressers) in the closet). We love the hidden pantry in the island kitchen.
Unwind on the rear porch, where you’ll find an outdoor kitchen and a cozy fireplace. Other thoughtful touches include a home office, a three-car garage (with storage), and a mudroom.
Spacious Laundry Room
Spacious Laundry Room - Front Exterior
Spacious Laundry Room - Main Level
Love the barndominium look? Us too. This four-bedroom design delivers that and more. The kitchen steals the show with a generous pantry and an island that serves the great room. We are swooning over the wood-burning fireplace.
All four bedrooms rest at the back of the plan, including the primary suite and an additional bedroom suite. A three-car garage and a wraparound porch complete this plan.
Farmhouse with Flexible Hobby Room
Farmhouse with Flexible Hobby Room - Front Exterior
Farmhouse with Flexible Hobby Room - Main Level
This modern farmhouse design keeps things nice and relaxed with an open-concept floor plan. In the kitchen, an island delivers casual seating and extra room for meal prep. Amenities in the walk-in pantry include a wine fridge and an oven/microwave.
A flexible hobby room opens up all kinds of possibilities. The stunning primary suite sits at the back of the plan, while a second bedroom suite waits at the front. Note the outdoor shower.
Four-Bedroom Southern Design
Four-Bedroom Southern Design - Front Exterior
Four-Bedroom Southern Design - Main Level
We are in love with this sweet Southern house plan. Three dormer windows and brick siding deliver envious curb appeal. An open floor plan creates modern flow between the family room and the kitchen. A formal dining room sits near the foyer.
Check out the huge shower in the primary suite. A rear porch provides shaded comfort, while a concrete patio gives you even more space for outdoor living. Store up to two vehicles in the carport. A storage room waits close by.
Three Dormer Windows
Three-Dormer Windows - Front Exterior
Three-Dormer Windows - Main Level
Get farmhouse style with this country-inspired design. A wraparound porch, three dormer windows, and metal roof accents show off rustic curb appeal. An open layout waits inside.
The kitchen features an open island with an eating bar, plus a sizable walk-in pantry. A mudroom with lockers encourages tidiness. The primary suite is sure to impress with a big shower, a separate tub, and a lavish closet.
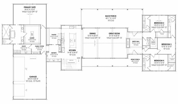
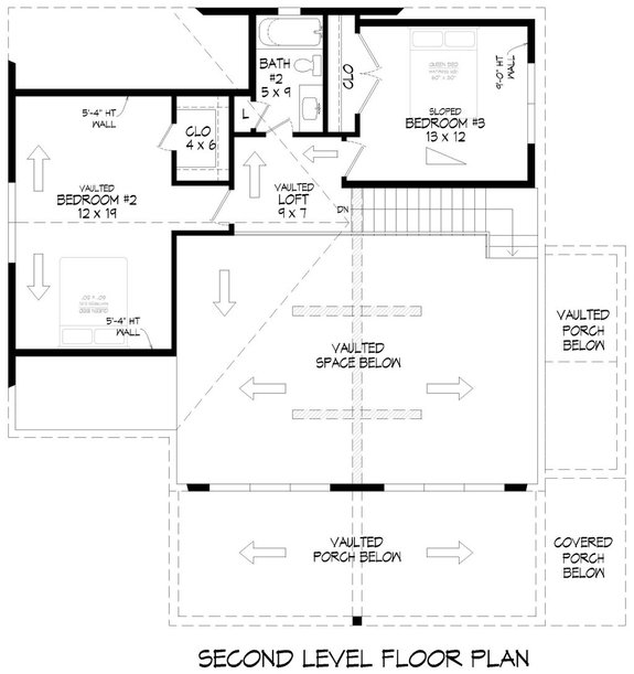
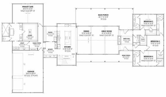
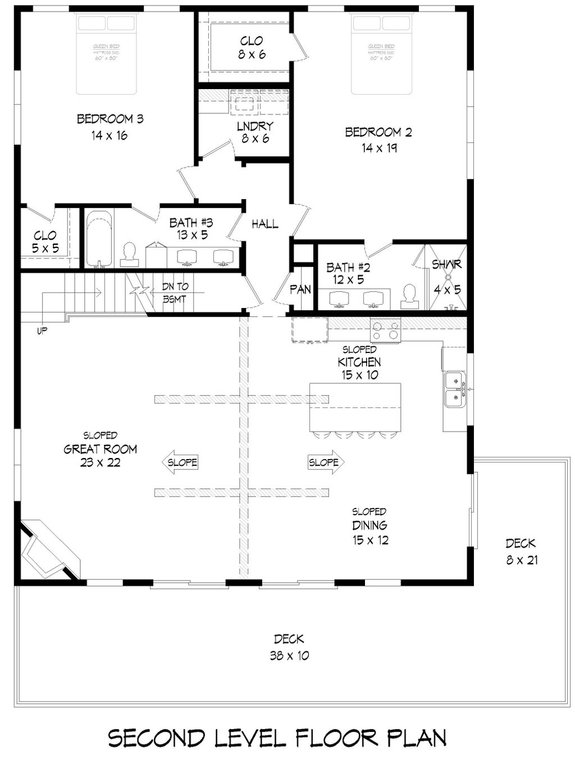
Lots of Outdoor Living
Lots of Outdoor Living - Front E xterior
Lots of Outdoor Living - Main Level
In the market for a plan with plentiful outdoor living? Here you go! This impressive design shines with a front wraparound porch and a large rear porch, which boasts an outdoor kitchen and a corner fireplace.
Inside, you’ll find an open layout with a spacious living room and a big island kitchen. The primary suite enjoys privacy on the right side of the plan and gives you a well-thought-out closet with an island. Two more bedrooms and an additional bedroom suite rest on the left.
Versatile RV Garage
Versatile RV Garage - Front Exterior
Versatile RV Garage - Main Level
Versatile RV Garage - Upper Level
Versatile RV Garage - Third Level
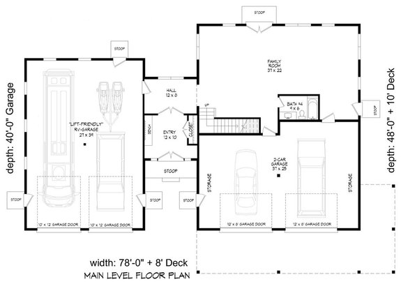
A wall of windows in the main living areas brings in loads of natural light. Smart details on the main level include a four-car garage with room for an RV, an entry with a built-in bench and a closet, and a versatile family room. The second floor offers an island kitchen, an open great room, and two bedroom suites.
Enjoy scenic views on the wraparound deck. The luxe primary suite and a loft/office complete the third level.
Thoughtful Kitchen Details
Thoughtful Kitchen Details - Front Exterior
Thoughtful Kitchen Details - Main Level
There’s no shortage of curb appeal with this farmhouse plan. We love the wood details on the wide front porch. In the kitchen, a long island with a level eating bar serves the living room. Our favorite part? The big pantry, which features a beverage cooler, built-in cabinets, and a broom cabinet.
The handy mudroom with lockers keeps you organized. Relax on the rear porch after you get work done in the home office.
Deluxe Primary Suite
Deluxe Primary Suite - Front Exterior
Deluxe Primary Suite - Main Level
If you’re looking for a luxury house plan with impressive amenities, we’ve got you covered with this design. The deluxe primary suite shows off an extra-generous closet, two sinks, a modern shower, a separate tub, and convenient access to the laundry room. French doors connect the back porch to the open great room.
Ready for casual meals, the kitchen island offers plenty of seating and includes a farmhouse sink. Check out the thoughtful home office next to the foyer.
Two-Story Luxury House Plan
Two-Story Luxury House Plan - Front Exterior
Two-Story Luxury House Plan - Main Level
Two-Story Luxury House Plan - Upper Level
It’s all in the details! This two-story traditional house plan encourages modern living with thoughtful touches throughout. For example, the main-level primary suite boasts two walk-in closets and access to a covered porch (via sliding glass doors).
Three bedroom suites wait on the second level, along with a vaulted retreat. An optional bonus room gives you room to expand now or later.
Four-Bedroom Plan with Loft
Four-Bedroom Plan with Loft - Front Exterior
Four-Bedroom Plan with Loft - Main Level
Four-Bedroom Plan with Loft - Upper Level
Who can resist a wraparound porch? Not us! We are swooning over this charming farmhouse plan. The kitchen grabs your attention with a generous island that serves the great room. A fireplace warms up chilly evenings.
Resting on the main level, the luxurious primary suite makes it easy to age in place. Flexible spaces include a home office and a loft.
Timeless Farmhouse Plan
Timeless Farmhouse Plan - Front Exterior
Timeless Farmhouse Plan - Main Level
Timeless Farmhouse Plan - Upper Level
An effortless layout and a wraparound porch highlight this timeless farmhouse design. The heart of the home, the kitchen, offers relaxed seating at the island. A bedroom suite opens to the front porch.
Upstairs, two more bedroom suites sit on either side of the big family room. Don’t miss the double garage.
Front and Rear Porches
Front and Rear Porches - Front Exterior
Front and Rear Porches - Main Level
This one-story luxury house plan gives you plenty of room to enjoy the great outdoors with front and rear porches. Note the optional outdoor kitchen on the rear porch. The super-open layout places the great room, the dining area, and the island kitchen in one big space. Check out the walk-in pantry.
The primary suite creates drama with a vaulted ceiling. Storage in the two-car garage is a nice amenity.
Four-Bedroom Design
Four-Bedroom Design - Front Exterior
Four-Bedroom Design - Main Level
Take a tour of this gorgeous four-bedroom plan. The thoughtfully designed layout features a fireplace-warmed family room that opens to the island kitchen. Wood beam accents add style.
The primary suite pampers you with a large closet and a spa-like bath. An outdoor kitchen on the rear porch is a fun addition.
Petite and Luxurious
Petite and Luxurious - Front Exterior
Petite and Luxurious - Main Level
Looking for a smaller design? Here’s a nice one. This petite one-story plan lives large with a luxe layout that makes great use of square footage. The kitchen island provides seating for informal meals.
Two bedroom suites take up space on the right side of the plan. Built-in cabinets in the garage provide room for storage.
Classic Country Curb Appeal
Classic Country Curb Appeal - Front Exterior
Classic Country Curb Appeal - Main Level
Brimming with country character and style, this country design gives you classic curb appeal with a wraparound porch and three dormer windows. The open-concept floor plan makes it a breeze to move between the family room and the island kitchen.
Nearby, the dining room sits next to the foyer. The right side of the plan hosts the large primary suite, while three secondary bedrooms (each with a walk-in closet) reside on the left.
