By Courtney Pittman
Building on a sloping lot? We’ve got you covered. Walkout basement house plans work well for hillside lots and to maximize living space. These architectural designs showcase unique indoor-outdoor living areas, versatile rec rooms, additional bedrooms, and much more. Whether you’re looking for a house plan with unfinished storage space or elaborate guest quarters, these floor plans open up all kinds of possibilities. We’ve gathered some of our most popular walkout basement house plans (with photos!) from Donald A. Gardner Architects below.
Discover walkout basement house plans with photos
Traditional House Plan with Porches
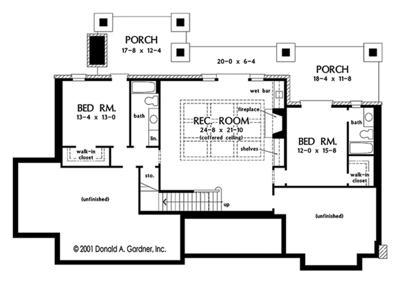
Plan 929-983
With a variety of porches on two levels, this house plan provides many options for outdoor living. The main floor gives you a great room that opens to the back porch, where skylights let in additional light. A screened porch just off the kitchen keeps the bugs at bay while you enjoy the outdoors.
The lower level features a bedroom (with an attached bathroom) and a rec room that can be used in a variety of ways. For storage or later expansion, an optional bonus space sits above the garage. Don’t miss the well-placed closets throughout the home (including a walk-in pantry) that make it easy to stay organized.
Check out these closet organization ideas from Women's Day
Elegant House Plan with Open Floor Plan
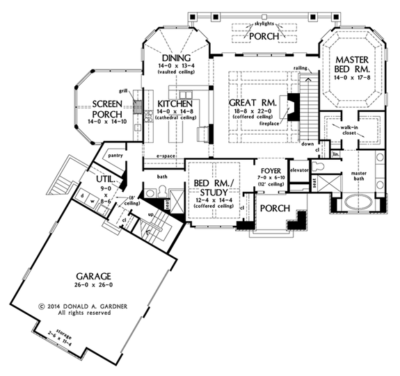
Plan 929-975
A super-open floor plan makes this hillside home bright, warm, and welcoming. From the island kitchen you can easily hold a conversation with family and friends in the great room or the open dining area. Fireplaces warm up the screened porch, the great room, and the master suite (check out the huge bathroom and two walk-in closets).
A study can be used as a home office if needed. Downstairs, you’ll love kicking back in the rec room and the spacious bedrooms (each with a private bath).
Explore these screened porch decorating ideas for all seasons from the Home Depot
Walkout Basement Plan with Screened Porch
Plan 929-992
Here’s a house plan from Don Gardner with outstanding curb appeal. Inside, an open floor plan between the main living spaces encourages relaxed living. The master suite showcases a vaulted ceiling and plenty of natural light. Near the front of the home, the study can also become a guest suite, complete with a bathroom. Just off the kitchen, a screened porch makes it easy to enjoy outdoor living – no matter the season! The walkout basement gives you two additional bedrooms, a rec room, and another porch.
Craftsman House Plan with Versatile Study
Plan 929-986
Stone, siding, and prominent gables deliver welcoming curb appeal to this Craftsman house plan. Check out the versatile bedroom/study (with a full bath) on the first floor. Enjoy hanging out in the great room or at the kitchen’s big island. Upstairs, you’ll find two more bedrooms and an additional bath. Don’t miss the luxurious bathroom in your private suite on the main level.
Get inspired with these luxury bathroom ideas from Veranda
Attractive House Plan with Two Kitchen Islands
Plan 929-970
Every detail of this attractive Craftsman house plan from Don Gardner is geared towards flexibility and ease. Two islands make it easy to prep meals and add tons of counter space to the kitchen. The master suite gives you double walk-in closets and easy access to one of the many porches. On the lower level, two bedroom suites flank a cozy rec room. Upstairs, a bonus room with skylights offers a bright space to expand later if needed.
European House Plan with Vaulted Ceilings
Plan 929-929
Explore the photos! This beautiful house plan gives you plenty of thoughtful touches. You’ll love the open floor plan and the spacious two-car garage. Vaulted ceilings in the great room add an extra dimension of space. Check out the master bedroom's double closets. The back porch (just off the great room) gives you tons of room for sitting outside when the weather is favorable, and includes a screened portion with a fireplace.
Spacious House Plan with Home Office
Plan 929-861
Need a quiet home office? This spacious house plan gives you a first-floor study that could also become a guest bedroom with a full bathroom attached. When it’s time to relax, sink into the tub in the private master suite – where dual walk-in closets and a dressing room add special touches.
A screened porch and built-in grill encourage outdoor living. The lower level includes two guest rooms, each with its own full bath, and a wine cellar. A large storage area and rec room complete the basement.
Head-Turning House Plan with Wine Cellar
Plan 929-893
Spectacular views on a hillside lot become reality with this head-turning house plan. A porch on the main level (plus a screened porch) sits above the lower-level patio. Highlights of the main-level master suite include the turreted sitting room and a huge shower in the bathroom.
The main level holds the gathering spaces (including the great room). On the walkout lower level, every bedroom is a suite and the rec room is ready for movie night. A wine cellar stores your prize bottles.



















