Blog Home > What Does a Barndominium Look Like?

The Houseplans Blog

What Does a Barndominium Look Like?

What does a barndominium look like? Find out with these plans!

Hero Image

June 3, 2024

Livabl Brand

Can't find what you're looking for?

Give us a call below or reach out and we’ll make sure to be in contact!

Send Us a Message

By Courtney Pittman

What does a barndominium look like? Think simple and rustic. While the term has been used to refer to a metal building with living space, our collection of barndominium house plans features mostly traditional wood-framed designs with rustic elements (though there are some metal-framed ones in there too).

Look for generous open-concept layouts, spacious kitchen islands, and big garages/workshops. Oh, and breezy porches to boot. Each of these barn-style plans strikes the right balance between country and modern.

Discover our collection of barndominium house plans here.

Barndo Plan with Extra Storage Barndo Plan with Extra Storage Barndo Plan with Extra Storage - Front Exterior

Barndo Plan with Extra Storage Barndo Plan with Extra Storage - Main Level

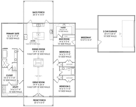
Take a look at this thoughtful barn-inspired design. The heart of the home is the great room, where a vaulted ceiling creates drama. Take a seat at the kitchen island or in the nearby dining area. Keep groceries organized in the walk-in pantry, which features built-in cabinets. Each bedroom boasts a walk-in closet – including the luxe primary suite. The three-car garage features extra room for storage with a big closet.

Barndominium Design with Big Workshop Barndominium Design with Big Workshop Barndominium Design with Big Workshop - Front Exterior

Barndominium Design with Big Workshop Barndominium Design with Big Workshop - Main Level

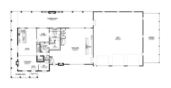
The kitchen takes center stage in this three-bedroom barndominium house plan. An island overlooks the dining area and the living room, which opens to a covered porch via sliding glass doors. At the back of the plan, the primary suite enjoys convenient access to the laundry room. Other cool details include the five-car garage/workshop and the pool house (which features a wet bar).

Barndo Plan with Mudroom Barndo Plan with Mudroom Barndo Plan with Mudroom - Front Exterior

Barndo Plan with Mudroom Barndo Plan with Mudroom - Main Level

A gabled roof and a covered front porch decorate the exterior of this barndo plan. Inside, the primary suite stands out with a large wet room (where the tub is actually in the shower!) and a generously sized closet. A vaulted ceiling in the family room adds volume, while the spacious pantry in the kitchen keeps groceries neat and tidy.

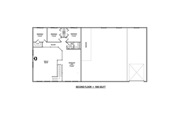
Enjoy outdoor hangouts on the vaulted back porch. Check out the mudroom just off the two-car garage. Three additional bedrooms (each with a walk-in closet) and two full baths sit on the right side of the plan.

Barndominium with Wraparound Porch Barndominium with Wraparound Porch Barndominium with Wraparound Porch - Front Exterior

Barndominium with Wraparound Porch Barndominium with Wraparound Porch - Main Level

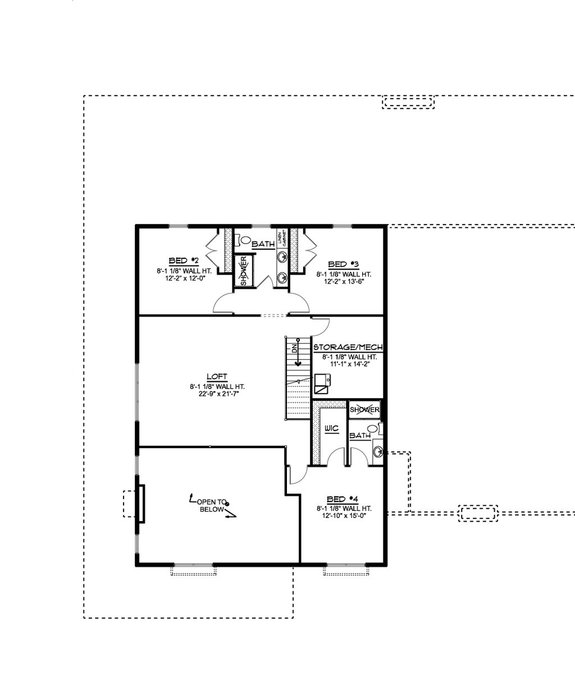
Barndominium with Wraparound Porch Barndominium with Wraparound Porch - Upper Level

Here’s a home plan that really shows off barndominium style with a big wraparound porch. An island gives you a place for relaxed meals in the kitchen. Don’t miss the super-spacious pantry. Nearby, the dining nook opens to the back patio for outdoor living.

With its location on the first floor making it easier to age in place, the primary suite also shows off a spa-like bathroom and an extra-roomy closet with a door to the hallway for simpler laundry days. Three bedrooms share a hall bath on the second level, along with a flexible loft. The three-car garage can hold an RV.

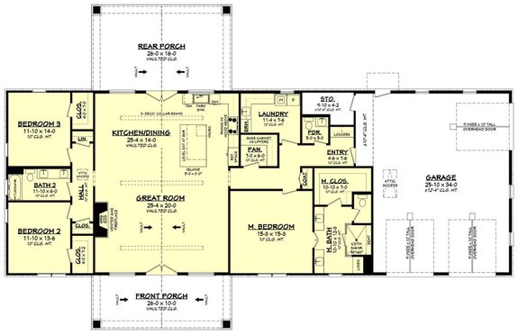
Timeless Barndominium Plan Timeless Barndominium Plan Timeless Barndominium Plan - Front Exterior

Timeless Barndominium Plan Timeless Barndominium Plan - Main Level

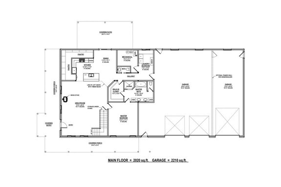
Check out this timeless barndominium house plan. A metal gable roof and metal siding deliver classic barndo curb appeal. Inside, the main living spaces are open to each other, with the kitchen island overlooking the dining area and the vaulted great room. We love the two-sided fireplace. A breezeway leads you to the two-car garage.

Secluded on the left wing of the plan, the primary suite features dual sinks, a generous closet, and direct access to the laundry room. Other highlights include: front and rear porches, a mudroom with lockers, and a walk-in pantry with a sink.

Two-Story Barndo Design with Event Space Two-Story Barndo Design with Event Space Two-Story Barndo Design with Event Space - Front Exterior

Two-Story Barndo Design with Event Space Two-Story Barndo Design with Event Space - Main Level

Two-Story Barndo Design with Event Space Two-Story Barndo Design with Event Space - Upper Level

This two-story barndominium plan is bright and open. An extensive covered porch wraps around the living areas. A big island in the kitchen invites relaxed meals. Check out the walk-through shower in the main-level primary suite.

The versatile event area opens up all kinds of possibilities. How about hosting neighborhood get-togethers here, or making it your ultra-spacious home office? The second floor holds a bedroom suite, two additional bedrooms, a hall bath, and a loft. You’ll find ample room for storage in the three-car garage/workshop.

Charming Plan with Loft Charming Plan with Loft Charming Plan with Loft - Front Exterior

Charming Plan with Loft Charming Plan with Loft - Main Level

Charming Plan with Loft Charming Plan with Loft - Upper Level

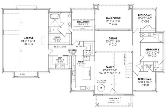
A front porch and metal awnings provide barn style to this four-bedroom plan. Thoughtful amenities include a mudroom with a built-in bench and hooks, a walk-in pantry, and a large utility room. The primary suite showcases a wet room, with the bathtub within the shower. There’s ample room for outdoor living on the lower and upper porches out back. Don’t miss the loft.

Three Bedroom Suites Three Bedroom Suites Three Bedroom Suites - Front Exterior

Three Bedroom Suites Three Bedroom Suites - Main Level

Three Bedroom Suites Three Bedroom Suites - Upper Level

This barndominium home plan gives you a spacious wraparound porch and a gable roof. The layout inside delivers a relaxed attitude with an open floor plan. The primary suite conveniently sits on the first floor and features two sinks, a walk-in closet, and access to the porch. A secondary bedroom suite waits nearby, while another bedroom suite and a loft round out the second level. Storage is plentiful in the two-car garage.

Find more barndominium house plans.

Get Our Newsletter

Be the first to see new plans, special offers, and more.

By signing up for our newsletter, you agree to our Terms & Conditions and Privacy Policy, for an account

Blog Subscribe Icon