Country Style House Plan - 1 Beds 1.5 Baths 1054 Sq/Ft Plan #22-603 - Houseplans.com
Search
REGISTER LOGIN SAVED No Saved Plans CART  Cart Empty
Don't lose your saved plans! Create an account to access your saves whenever you want. See our Terms & Conditions and Privacy Policy.
OR
Plan 22-603
Photographs may show modified designs.
Home  >  Style  >  Country

Country House Plan 22-603

Key Specs


Plan Sq Ft

1054
sq ft

Plan Bedrooms

1
Beds

Plan Bathrooms

1.5
Baths

Plan Floors

2
Floors

Plan Garages

1
Garages

Questions? Get Personalized Help
Select Plan Set Options
What's included?
$75.00
Additional Construction Sets$25.00/each

Additional hard copies of the plan (can be ordered at the time of purchase and within 90 days of the purchase date).

$100.00
$39.00
$70.00
Subtotal
$560.00
Best Price Guaranteed

Or order by phone: 1-800-913-2350
Questions? Get Personalized Help
 

 
Hours:
Ready for Your Call 7 Days a Week
Every Day 7 am - 8:30 pm Eastern

See Terms & Conditions and Privacy Policy.

Thanks for your question.

We will be in touch shortly.

Wow!
Cost to Build Reports
$1.99 with Code
CTB2026 (Limit 1)
Our Cost to Build Report gives you a personalized estimate for building your home, based on your location, plan, and materials.

Residential Construction Guide

Learn Building Basics

This downloadable, 26-page guide is full of diagrams and details about plumbing, electrical, and more.

Key Specs


Plan Sq Ft

1054
sq ft

Plan Bedrooms

1
Beds

Plan Bathrooms

1.5
Baths

Plan Floors

2
Floors

Plan Garages

1
Garages

Plan Description


This country design floor plan is 1054 sq ft and has 1 bedrooms and 1.5 bathrooms.

This plan can be customized!

Tell us about your desired changes so we can prepare an estimate for the design service. Click the button to submit your request for pricing, or call 1-800-913-2350.

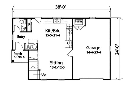
Floor Plans


Floor Plan - Main Floor

Reverse
houseplans LOGO

BUILDER Advantage Program

PRO BUILDERS

Join the club and save 5% on your first order.
PLUS download exclusive discounts and more.

LEARN MORE

Floor Plan - Upper Floor

Reverse

Full Specs & Features


Basic Features

Bedrooms : 1
Baths : 1.5
Stories: 2
Garages: 1

Dimension

Depth : 24'
Height : 25'
Width : 38'

Area

Total : 1054 sq/ft
Garage : 334 sq/ft
Main Floor : 492 sq/ft
Upper Floor : 562 sq/ft
* Total Square Footage typically only includes conditioned space and does not include garages, porches, bonus rooms, or decks.

Ceiling

Main Ceiling : 9'
Upper Ceiling Ft : 8'

Roof

Primary Pitch : 12/12
Roof Framing : Truss
Roof Load : 40 psi
Roof Type : Shingle
Secondary Pitch : 6/12

Exterior Wall Framing

Exterior Wall Finish : Lap sidiing
Framing : 2 x 4
Insulation : R-13

Bedroom Features

Fireplace
Upstairs Bedrooms

Additional Room Features

Den Office Study Computer
Great Room Living Room

Lot Characteristics

Suited For Narrow Lot

More

Economical To Build

What's included in this plan set


See a sample plan set
  • Foundation Plan(s): This page shows all necessary notations and dimensions including footings, support columns, walls, and excavated/unexcavated areas.
  • Floor Plan(s): Detailed plans for each level showing room dimensions, wall partitions, windows and doors, fixture locations, and ceiling treatments.
  • Exterior Elevations: Views of the home from all four sides showing exterior materials, roof slope, ridge heights, siding and trim notes.
  • Overhead Roof Plan(s): A view of the home from above showing roof pitch, peaks, valleys, and other details.
  • Cross Section(s): A slice of the home from roof to foundation, showing relationships between floors, roof, and foundation.
  • Electrical Plan(s): Shows the location of lights, receptacles, switches, etc. Some plans that do not include an electrical plan may have it available for an additional fee.
  • Kitchen Cabinet Elevation(s): Detailed drawings of kitchen cabinet elevations.
  • Construction Notes / Detail(s): Shows basic parts and assemblies recommended for the home so the builder can see how things come together.
  • Wall Section(s): Detailed drawings showing wall connections, from foundation to the roof, wall connections to foundation, window installation, siding installation, stair details, and more.
  • Stair Detail(s): Drawings showing stair details.
* See important information before purchasing

Pricing


Plan Options

PDF Set

Best Value!
$560.00
PDF plan sets are best for fast electronic delivery and inexpensive local printing.

CAD Set

$665.00
For use by design professionals to make substantial changes to your house plan and inexpensive local printing.

Foundation Options

Slab

$0.00
Ideal for level lot, single layer concrete poured directly on grade.

*Options with a fee may take time to prepare. Please call to confirm.

Framing Options

Wood 2x4

$0.00
Wood 2x4 Exterior Walls

Wood 2x6

$75.00
Wood 2x6 Exterior Walls

*Options with a fee may take time to prepare. Please call to confirm.

Additional Options

Right-Reading Reverse

$75.00
Choose this option to reverse your plans and to have the text and dimensions readable.

Additional Construction Sets

$25.00
Additional hard copies of the plan (can be ordered at the time of purchase and within 90 days of the purchase date).

Audio Video Design

$100.00
Receive an overlay sheet with suggested placement of audio and video components.

Construction Guide

$39.00
Educate yourself about basic building ideas with these four detailed diagrams that discuss electrical, plumbing, mechanical, and structural topics.

Material List

$70.00
A spreadsheet of building supplies needed to construct the infrastructure of your new house. Please note materials lists will not reflect add-ons such as alternate foundation and framing options.

*Options with a fee may take time to prepare. Please call to confirm.

Unless you buy an “unlimited” plan set or a multi-use license you may only build one home from a set of plans. Please call to verify if you intend to build more than once. Plan licenses are non-transferable and cannot be resold.

Need help? Let our friendly experts help you find the perfect plan!

Contact us now for a free consultation.

Coupon Codes