Country Style House Plan - 2 Beds 1.5 Baths 1059 Sq/Ft Plan #56-697 - Houseplans.com
Search
REGISTER LOGIN SAVED No Saved Plans CART  Cart Empty
Don't lose your saved plans! Create an account to access your saves whenever you want. See our Terms & Conditions and Privacy Policy.
OR
15% OFF THIS PLAN TODAY
Plan 56-697
Photographs may show modified designs.
Home  >  Style  >  Country

Country House Plan 56-697

Key Specs


Plan Sq Ft

1059
sq ft

Plan Bedrooms

2
Beds

Plan Bathrooms

1.5
Baths

Plan Floors

1
Floors

Plan Garages

0
Garages

Questions? Get Personalized Help
Select Plan Set Options
What's included?
$250.75
Additional Construction Sets$51.00/each

Additional hard copies of the plan (can be ordered at the time of purchase and within 90 days of the purchase date).

$637.50
$85.00
$33.15
$85.00
$250.75
$1275.00
Subtotal
NOW $1015.75
You save $179.25
(15% savings)
Sale ends soon!
Best Price Guaranteed

Or order by phone: 1-800-913-2350
Questions? Get Personalized Help
 

 
Hours:
Ready for Your Call 7 Days a Week
Every Day 7 am - 8:30 pm Eastern

See Terms & Conditions and Privacy Policy.

Thanks for your question.

We will be in touch shortly.

Wow!
Cost to Build Reports
$1.99 with Code
CTB2026 (Limit 1)
Our Cost to Build Report gives you a personalized estimate for building your home, based on your location, plan, and materials.

Residential Construction Guide

Learn Building Basics

This downloadable, 26-page guide is full of diagrams and details about plumbing, electrical, and more.

Key Specs


Plan Sq Ft

1059
sq ft

Plan Bedrooms

2
Beds

Plan Bathrooms

1.5
Baths

Plan Floors

1
Floors

Plan Garages

0
Garages

Plan Description


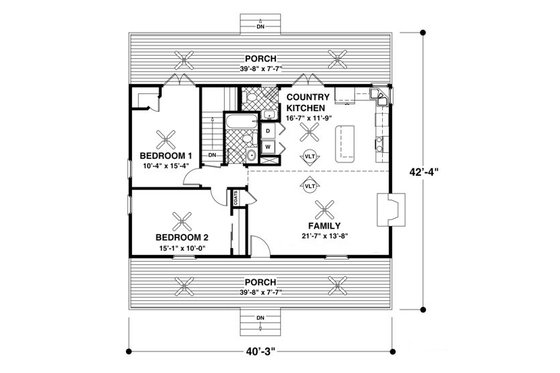
This compact home has everything you’ll need to enjoy a vacation getaway complete with two the irresistible rocking chair porches. A vaulted ceiling provides a spacious canopy for the open kitchen and family room with a warm and inviting fireplace. The kitchen has a sunny corner double sink and roomy center island /snack bar. Just off the kitchen are a convenient laundry center and a powder room with direct access from outside. Two large bedrooms feature oversized closets and convenient access to the hall bath. The full basement allows plenty of space for expansion or storage.

This plan can be customized!

Tell us about your desired changes so we can prepare an estimate for the design service. Click the button to submit your request for pricing, or call 1-800-913-2350.

Floor Plans


Floor Plan - Main Floor

Reverse
houseplans LOGO

BUILDER Advantage Program

PRO BUILDERS

Join the club and save 5% on your first order.
PLUS download exclusive discounts and more.

LEARN MORE

Full Specs & Features


Basic Features

Bedrooms : 2
Baths : 1.5
Stories: 1
Garages: 0

Dimension

Depth : 42' 4"
Height : 20'
Width : 40' 3"

Area

Total : 1059 sq/ft
Main Floor : 1059 sq/ft
* Total Square Footage typically only includes conditioned space and does not include garages, porches, bonus rooms, or decks.

Ceiling

Main Ceiling : 9'

Roof

Primary Pitch : 6:12
Roof Framing : Stick
Roof Type : Metal

Exterior Wall Framing

Exterior Wall Finish : Siding
Framing : 2 x 4

Bedroom Features

Main Floor Bedrooms
Walk In Closet

Kitchen Features

Eating Bar
Kitchen Island

Additional Room Features

Family Room Keeping Room
Main Floor Laundry

Lot Characteristics

Suited For Sloping Lot

Outdoor Spaces

Covered Front Porch
Covered Rear Porch

More

Economical To Build
Suited For Vacation Home

What's included in this plan set


See a sample plan set
Plans are typically drawn to ¼” scale and include:
  • Foundation Plan(s): This page shows all necessary notations and dimensions including footings, support columns, walls, and excavated/unexcavated areas.
  • Floor Plan(s): Detailed plans for each level showing room dimensions, wall partitions, windows and doors, fixture locations, and ceiling treatments.
  • Exterior Elevations: All four sides
  • Overhead Roof Plan(s): A view of the home from above showing roof pitch, peaks, valleys, and other details.
  • Cross Section(s): A slice of the home from roof to foundation, showing relationships between floors, roof, and foundation.
  • Electrical Plan(s): Most plans from this designer have this available
  • Kitchen Cabinet Elevation(s): Detailed drawings of kitchen cabinet elevations
  • Construction Notes / Detail(s): Shows basic parts and assemblies recommended for the home so the builder can see how things come together.
  • Rendering(s): Artist rendering
  • Specification(s): Includes general specifications, not specific to individual plans.
3D Overview: most but not all plans by this designer are offered with a 3D overview. If this is important to you please contact one of our project advisors for verification.
* See important information before purchasing

Pricing


Plan Options

PDF Set

Best Value!
$1015.75
PDF plan sets are best for fast electronic delivery and inexpensive local printing.

5 Copy Set

$1058.25
5 printed plan sets mailed to you.

8 Copy Set

$1100.75
8 printed plan sets mailed to you.

5 Copy and PDF Set

$1232.50
5 printed plan sets mailed to you plus PDF plan sets are best for fast electronic delivery and inexpensive local printing.

CAD Set

$1355.75
For use by design professionals to make substantial changes to your house plan and inexpensive local printing.

Foundation Options

Basement

$0.00
Ideal for level lot, lower level of home partially or fully underground.

Crawlspace

$297.50
Ideal for semi-sloped or level lot, home can be built off of grade, typically 18” - 48”.

Slab

$297.50
Ideal for level lot, single layer concrete poured directly on grade.

*Options with a fee may take time to prepare. Please call to confirm.

Framing Options

Wood 2x4

$0.00
Wood 2x4 Exterior Walls

Wood 2x6

$297.50
Wood 2x6 Exterior Walls

*Options with a fee may take time to prepare. Please call to confirm.

Additional Options

Right-Reading Reverse

$250.75
Choose this option to reverse your plans and to have the text and dimensions readable.

Additional Construction Sets

$51.00
Additional hard copies of the plan (can be ordered at the time of purchase and within 90 days of the purchase date).

Additional Use License

$637.50
Allows you to build one more home for each additional license purchased.

Audio Video Design

$85.00
Receive an overlay sheet with suggested placement of audio and video components.

Construction Guide

$33.15
Educate yourself about basic building ideas with these four detailed diagrams that discuss electrical, plumbing, mechanical, and structural topics.

Lighting Design

$85.00
Receive an overlay sheet with suggested placement of lighting fixtures.

Material List

$250.75
A spreadsheet of building supplies needed to construct the infrastructure of your new house. Please note materials lists will not reflect add-ons such as alternate foundation and framing options.

Unlimited Use License

$1275.00
Allows you to build this home as many times as you want.

*Options with a fee may take time to prepare. Please call to confirm.

Unless you buy an “unlimited” plan set or a multi-use license you may only build one home from a set of plans. Please call to verify if you intend to build more than once. Plan licenses are non-transferable and cannot be resold.

Other Plans By This Designer

See all plans by
this designer

Need help? Let our friendly experts help you find the perfect plan!

Contact us now for a free consultation.