Don't lose your saved plans! 
Create an account to access your saves whenever you want. See our Terms & Conditions and Privacy Policy.
OR

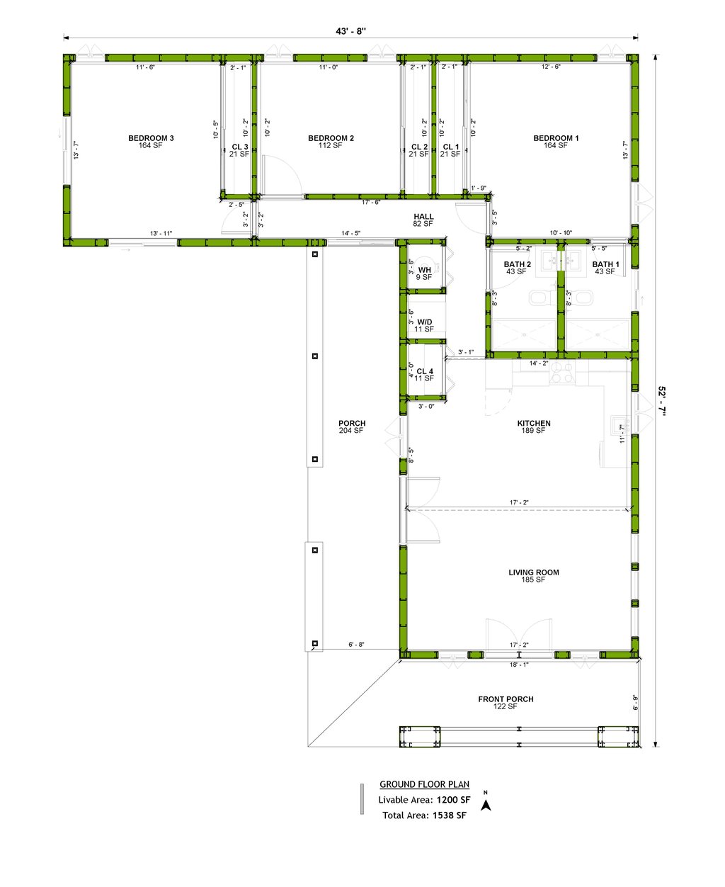
Southwest House Plan 1106-106 1200 Sq Ft, 3 Bed, 2 Bath, 1 Floor, 0 Garage

Key Specs
  • 3
    Beds
  • 2
    Baths
  • 1
    Floors
  • 0
    Garages
  • 1200
    Square Feet
This Spanish home is 1200 sf of living space, which includes 3 bedrooms, 2 bathrooms, a living area, and a kitchen. This home comes with 2 spacious porches, bringing the total footprint up to 1538 sf. This plan set is engineered for 2 x 4 steel framing, with 2 x 6 exterior framing available as an add-on option. Each set comes with a Comprehensive Generic-Materials Shopping List that includes MEP schematics and a foundation plan that you'll take to a local engineer to have reviewed and adapted to your specific site. You'll also receive a Building Instructions Guide and access to 20+ How-To Videos. While the plan shows steel framing, you can also reference it to fully build in wood by using 16" OC stud spacing instead of 24" OC, and by using the appropriately rated connection hardware. Please reach out with any questions.

Questions on this plan?

New to the process and looking for some help to kick things off? Let us know a bit about your plans and we’ll be happy to help.

Budget & Customization Tools

Modify icon
Customize this Plan
Tell us about your desired changes and we can prepare an estimate.
Cost to Build icon
Cost to Build Report
A personalized estimate based on your location, plan, & materials.
Cost to Build icon
Residential Construction Guide
This downloadable, 26-page guide is full of diagrams and details about plumbing, electrical, and more.

Full specs & Features

Basic Features

Bedrooms: 3
Baths: 2
Stories: 1
Garages: 0

Dimension

Depth: 52' 7"
Height: 12'
Width: 43' 8"

Area

Total: 1200 sq/ft
Porch: 326 sq/ft
* Total Square Footage typically only includes conditioned space and does not include garages, porches, bonus rooms, or decks.

Ceiling

Lower Ceiling: 8'
Upper Ceiling Ft: 11'

Roof

Primary Pitch: 4/12
Roof Framing: Cold Formed Steel
Roof Load: Inquire for info

Exterior Wall Framing

Framing: Cold Formed Steel

Bedroom Features

Main Floor Bedrooms
Main Floor Master Bedroom

Additional Room Features

Main Floor Laundry

Lot Characteristics

Suited For Corner Lot

Outdoor Spaces

Covered Front Porch
Wrap Around Porch

More

Economical To Build
Empty Nester
Suited For Vacation Home

Energy Efficient Features

Energy Efficient Design

What's Included

All plans are drawn at ¼” scale or larger and include :

  • Foundation Plan: This page shows all necessary notations and dimensions including support columns, walls, and excavated/unexcavated areas.
  • Exterior Elevations: Views of the home from all four sides showing exterior materials and measurements.
  • Floor Plan(s): Detailed plans for each level showing room dimensions, wall partitions, windows and doors, etc.
  • Cross Section: A slice of the home from roof to foundation, showing important details like stairs and wall construction.
  • Overhead Roof Plan(s): A view of the home from above showing roof pitch, peaks, valleys, and other details.
  • Construction Notes and Details: Shows the builder how things come together, like walls, the chimney, insulation, and more.

FAQs

Are designs on Houseplans ready to submit to my building department for permitting?

It depends on where you're building. Our plans contain enough information for a professional builder to construct your home, but your local government may require additional information before permitting. We strongly advise that you talk with your builder before you get started. If you are building for yourself, we recommend visiting your local building department to start your diligence. Read more here.

Can I make changes to a plan?

Absolutely! Our modification service allows you to customize almost anything - whether it's adding an extra garage bay, adjusting square footage, changing the roof pitch, or more, the plan modification service is a great value and can be completed quickly. Additionally, if you purchase an electronic plan set (PDF or CAD), you may have the option to make changes locally. CAD files offer the most flexibility for custom edits. Just let us know what you're thinking, and we’ll provide an estimate and timeframe to get started. Learn more here.

How much does a house cost to build?

Find out! Build costs vary based on the size of the home, materials used, and local rates for goods and labor. Our Cost to Build report is a great way to get some basic costs dialed in before you order your plans. Just plug in your postal code, select your desired construction quality, and we'll calculate for you.

Learn more about Cost to Build reports here.

Can I trust Houseplans?

Founded in 2004, Houseplans works with hundreds of architects and designers to offer their plans at a fraction of the price of custom design. Houseplans has an "Excellent" rating on TrustPilot.

Read more about us here.

Does Houseplans offer live support?

Yes, Houseplans has a dedicated team of house plan advisors with decades of experience between them. You can reach them by calling, emailing, filling out a form on the page of a plan that you like, or going to the Contact Us page. We're available to talk every day, even on weekends.

Builder Advantage Home

Builder Advantage Program

Are you a Pro Builder? Join the club, save 5% on your first order, get exclusive discounts, and more.

Learn More

You may also like

Save Plan
Southwest

Plan 72-127

$1191.96

beds3

bd

baths2.5

ba

stories1

story

square feet2015

sq ft

Save Plan
Mediterranean

Plan 135-166

$2800.00

beds4

bd

baths3.5

ba

stories2

stories

square feet4923

sq ft

Recently viewed plans

Exterior - Front Elevation for Adobe / Southwestern House Plan #1106-106 - 3 bed, 2 bath
Save Plan

Plan 1106-106

$1300.00

beds3

bd

baths2

ba

stories1

story

square feet1200

sq ft

Exterior - Front Elevation for Cottage House Plan #515-12 - 2 bed, 1 bath
Save Plan

Plan 515-12

$725.00

beds2

bd

baths1

ba

stories1

story

square feet815

sq ft

Signature
Exterior - Front Elevation for Farmhouse House Plan #929-35 - 2 bed, 2 bath
Save Plan

Plan 929-35

$1425.00

beds2

bd

baths2

ba

stories1

story

square feet1299

sq ft

Exterior - Front Elevation for Modern House Plan #895-139 - 3 bed, 2 bath
Save Plan

Plan 895-139

$1200.00

beds3

bd

baths2

ba

stories1

story

square feet2145

sq ft

Exterior - Front Elevation for Traditional House Plan #124-1300 - 2 bed, 1.5 bath
Save Plan

Plan 124-1300

$685.00

beds2

bd

baths1.5

ba

stories2

stories

square feet998

sq ft

Exterior - Front Elevation for Modern House Plan #20-2562 - 2 bed, 1 bath
Save Plan

Plan 20-2562

$1105.00

beds2

bd

baths1

ba

stories1

story

square feet682

sq ft

Exterior - Other Elevation for Barndominium House Plan #1092-52 - 4 bed, 3 bath
Save Plan

Plan 1092-52

$1750.00

beds4

bd

baths3

ba

stories2

stories

square feet3048

sq ft

Exterior - Front Elevation for Modern House Plan #484-1 - 3 bed, 3.5 bath
Save Plan

Plan 484-1

$3795.00

beds3

bd

baths3.5

ba

stories3

stories

square feet1990

sq ft

Exterior - Front Elevation for Modern House Plan #484-2 - 3 bed, 3.5 bath
Save Plan

Plan 484-2

$1995.00

beds3

bd

baths3.5

ba

stories2

stories

square feet1845

sq ft

Exterior - Front Elevation for Ranch House Plan #489-15 - 4 bed, 4.5 bath
Save Plan

Plan 489-15

$2897.00

beds4

bd

baths4.5

ba

stories1

story

square feet2772

sq ft

Exterior - Front Elevation for Craftsman House Plan #1084-4 - 3 bed, 2.5 bath
Save Plan

Plan 1084-4

$1349.00

beds3

bd

baths2.5

ba

stories1

story

square feet2496

sq ft