Don't lose your saved plans! 
Create an account to access your saves whenever you want. See our Terms & Conditions and Privacy Policy.
OR

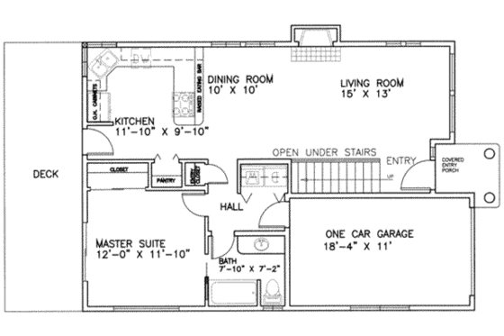
Traditional House Plan 117-188 1360 Sq Ft, 3 Bed, 2 Bath, 2 Floor, 1 Garage

Key Specs
  • 3
    Beds
  • 2
    Baths
  • 2
    Floors
  • 1
    Garages
  • 1360
    Square Feet
This traditional design floor plan is 1360 sq ft and has 3 bedrooms and 2 bathrooms.

Questions on this plan?

New to the process and looking for some help to kick things off? Let us know a bit about your plans and we’ll be happy to help.

Budget & Customization Tools

Modify icon
Customize this Plan
Tell us about your desired changes and we can prepare an estimate.
Cost to Build icon
Cost to Build Report
A personalized estimate based on your location, plan, & materials.
Cost to Build icon
Residential Construction Guide
This downloadable, 26-page guide is full of diagrams and details about plumbing, electrical, and more.

Full specs & Features

Basic Features

Bedrooms: 3
Baths: 2
Stories: 2
Garages: 1

Dimension

Depth: 29' 2"
Height: 28' 5"
Width: 40'

Area

Total: 1360 sq/ft
Bonus: 183 sq/ft
First Floor: 829 sq/ft
Second Floor: 432 sq/ft
* Total Square Footage typically only includes conditioned space and does not include garages, porches, bonus rooms, or decks.

Roof

Primary Pitch: 7:12
Roof Framing: Truss
Roof Type: Shingle

Exterior Wall Framing

Exterior Wall Finish: Siding
Framing: 2"x6"

Kitchen Features

Eating Bar

Additional Room Features

Storage Area

What's Included

  • Foundation Plan(s): Footing locations, foundation details, etc.
  • Floor Plan(s): Layout of floor plan, window/door schedule, interior and exterior dimensions
  • Exterior Elevations: Exterior on all four sides, siding notes, roof pitches, garage door heights, etc.
  • Overhead Roof Plan(s): A view of the home from above showing roof pitch, peaks, valleys, and other details.
  • Cross Section(s): Cut-through view of home. Shows foundation, insulation, wall construction, ceiling heights, etc.
  • Electrical Plan(s): Lighting, switches, electrical outlet placement throughout home.
  • Detail Sheet(s): Additional structural details included in most log and ICF plans. Important: design loads and weather conditions vary by region. As a result the size, spacing, and layout of all structural elements in this home design may need approval by a structural engineer or code official based on your specific site location.
  • Construction Notes / Detail(s): Referencing the entirety of the project.
  • Framing Detail(s): Location of supporting walls and beams. Location/spacing of floor joists, floor framing details. Layout of roof, roof framing details, truss/rafter locations, connection details etc. If included, the framing layout is intended to be a suggested layout only. Design loads and weather conditions vary by region. As a result the size, spacing, and layout of all structural elements in this home design may need approval by a structural engineer or code official based on your specific site location.

FAQs

Are designs on Houseplans ready to submit to my building department for permitting?

It depends on where you're building. Our plans contain enough information for a professional builder to construct your home, but your local government may require additional information before permitting. We strongly advise that you talk with your builder before you get started. If you are building for yourself, we recommend visiting your local building department to start your diligence. Read more here.

Can I make changes to a plan?

Absolutely! Our modification service allows you to customize almost anything - whether it's adding an extra garage bay, adjusting square footage, changing the roof pitch, or more, the plan modification service is a great value and can be completed quickly. Additionally, if you purchase an electronic plan set (PDF or CAD), you may have the option to make changes locally. CAD files offer the most flexibility for custom edits. Just let us know what you're thinking, and we’ll provide an estimate and timeframe to get started. Learn more here.

How much does a house cost to build?

Find out! Build costs vary based on the size of the home, materials used, and local rates for goods and labor. Our Cost to Build report is a great way to get some basic costs dialed in before you order your plans. Just plug in your postal code, select your desired construction quality, and we'll calculate for you.

Learn more about Cost to Build reports here.

Can I trust Houseplans?

Founded in 2004, Houseplans works with hundreds of architects and designers to offer their plans at a fraction of the price of custom design. Houseplans has an "Excellent" rating on TrustPilot.

Read more about us here.

Does Houseplans offer live support?

Yes, Houseplans has a dedicated team of house plan advisors with decades of experience between them. You can reach them by calling, emailing, filling out a form on the page of a plan that you like, or going to the Contact Us page. We're available to talk every day, even on weekends.

Builder Advantage Home

Builder Advantage Program

Are you a Pro Builder? Join the club, save 5% on your first order, get exclusive discounts, and more.

Learn More

You may also like

Save Plan
Traditional

Plan 20-2346

$1305.00

beds4

bd

baths2.5

ba

stories2

stories

square feet2257

sq ft

View Related Collections
Shop All Styles

Recently viewed plans

Exterior - Front Elevation for Traditional House Plan #117-188 - 3 bed, 2 bath
Save Plan

Plan 117-188

$1315.00

beds3

bd

baths2

ba

stories2

stories

square feet1360

sq ft