Don't lose your saved plans! 
Create an account to access your saves whenever you want. See our Terms & Conditions and Privacy Policy.
OR

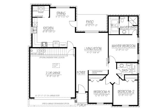
Southwest House Plan 1061-21 1381 Sq Ft, 3 Bed, 2 Bath, 1 Floor, 2 Garage

Question icon
Get Expert Advice
Key Specs
  • 3
    Beds
  • 2
    Baths
  • 1
    Floors
  • 2
    Garages
  • 1381
    Square Feet
This adobe / southwestern design floor plan is 1381 sq ft and has 3 bedrooms and 2 bathrooms.

Questions on this plan?

New to the process and looking for some help to kick things off? Let us know a bit about your plans and we’ll be happy to help.

Budget & Customization Tools

Modify icon
Customize this Plan
Tell us about your desired changes and we can prepare an estimate.
Cost to Build icon
Cost to Build Report
A personalized estimate based on your location, plan, & materials. / FAQ
Cost to Build icon
Residential Construction Guide
This downloadable, 26-page guide is full of diagrams and details about plumbing, electrical, and more.

Full specs & Features

Basic Features

Bedrooms: 3
Baths: 2
Stories: 1
Garages: 2

Dimension

Depth: 45' 6"
Height: 19' 2"
Width: 49'

Area

Total: 1381 sq/ft
First Floor: 1381 sq/ft height 8'
Garage: 490 sq/ft
* Total Square Footage typically only includes conditioned space and does not include garages, porches, bonus rooms, or decks.

Roof

Primary Pitch: 7:12
Roof Framing: Truss
Roof Type: Composition

Exterior Wall Framing

Exterior Wall Finish: Brick
Framing: Wood - 2x6

Additional Room Features

Main Floor Laundry

Rooms

Bedroom 2:

116 sq/ft width 10' 8" x depth 10' 10"

Bedroom 3:

103 sq/ft width 10' 6" x depth 9' 10"

Covered Front Porch:

26 sq/ft

Covered Rear Patio:

93 sq/ft width 13' x depth 7' 2"

Dining Area:

119 sq/ft width 11' x depth 10' 10"

Garage:

490 sq/ft width 19' 8" x depth 21' 8"

Kitchen:

142 sq/ft width 18' 8" x depth 13'

Living Room:

248 sq/ft width 14' x depth 16' 6"

Master Bedroom:

150 sq/ft width 12' 8" x depth 11' 10"

What's Included

  • Foundation Plan(s): This page shows all necessary notations and dimensions including footings, support columns, walls, and excavated/unexcavated areas.
  • Floor Plan(s): Detailed plans for each level showing room dimensions, wall partitions, windows and doors, fixture locations, and ceiling treatments.
  • Exterior Elevations: Views of the home from all four sides showing exterior materials, roof slope, ridge heights, siding and trim notes.
  • Overhead Roof Plan(s): May not be available for all plans. A view of the home from above showing roof pitch, peaks, valleys, and other details.
  • Cross Section(s): A slice of the home from roof to foundation, showing relationships between floors, roof, and foundation.
  • Construction Notes / Detail(s): Shows basic parts and assemblies recommended for the home so the builder can see how things come together.

FAQs

Are designs on Houseplans ready to submit to my building department for permitting?

It depends on where you're building. Our plans contain enough information for a professional builder to construct your home, but your local government may require additional information before permitting. We strongly advise that you talk with your builder before you get started. If you are building for yourself, we recommend visiting your local building department to start your diligence. Read more here.

Can I make changes to a plan?

Absolutely! Our modification service allows you to customize almost anything - whether it's adding an extra garage bay, adjusting square footage, changing the roof pitch, or more, the plan modification service is a great value and can be completed quickly. Additionally, if you purchase an electronic plan set (PDF or CAD), you may have the option to make changes locally. CAD files offer the most flexibility for custom edits. Just let us know what you're thinking, and we’ll provide an estimate and timeframe to get started. Learn more here.

How much does a house cost to build?

Find out! Build costs vary based on the size of the home, materials used, and local rates for goods and labor. Our Cost to Build report is a great way to get some basic costs dialed in before you order your plans. Just plug in your postal code, select your desired construction quality, and we'll calculate for you.

Learn more about Cost to Build reports here.

Can I trust Houseplans?

Founded in 2004, Houseplans works with hundreds of architects and designers to offer their plans at a fraction of the price of custom design. Houseplans has an "Excellent" rating on TrustPilot.

Read more about us here.

Does Houseplans offer live support?

Yes, Houseplans has a dedicated team of house plan advisors with decades of experience between them. You can reach them by calling, emailing, filling out a form on the page of a plan that you like, or going to the Contact Us page. We're available to talk every day, even on weekends.

Builder Advantage Home

Builder Advantage Program

Are you a Pro Builder? Join the club, save 5% on your first order, get exclusive discounts, and more.

Learn More