Don't lose your saved plans! 
Create an account to access your saves whenever you want. See our Terms & Conditions and Privacy Policy.
OR

Farmhouse House Plan 30-355 1466 Sq Ft, 3 Bed, 2 Bath, 2 Floor, 2 Garage

Key Specs
  • 3
    Beds
  • 2
    Baths
  • 2
    Floors
  • 2
    Garages
  • 1466
    Square Feet
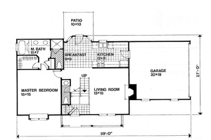
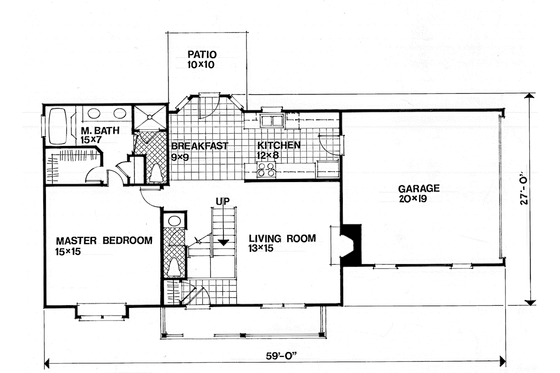
This charming Country Victorian design offers beautiful detail to allow you to personalize your vision. Whether traditional or rustic, custom trims and accents can transform the home. The exterior features a picturesque facade with gabled roofs, decorative woodwork, and inviting windows. Guests relax on the Covered Porch, and once inside, the Living Room radiates coziness from a central hearth. The open space seamlessly transitions into the Dining area and Kitchen, perfect for entertaining. Modern appliances, ample counter space, and convenient access to the breakfast nook add convenience to its charm. The Main Suite on the left side offers privacy and tranquility, while being located conveniently on the Main Level. The spacious sleeping area features a sunny box bay window, ideal for reading or romantic seating. The upgraded Master Bath includes a large garden tub, separate glass-enclosed shower, private toilet area, dual vanities, linen closet, and walk-in closet. These thoughtful elements create an elegant yet functional retreat. Ascending the stairs, the Upper Level offers a well-planned layout with two generously sized Bedrooms, ample closet space, and large windows. A centrally located hall Bath features a full bathtub, vanity, and storage. A Laundry closet and two linen closets provide extra storage. Beyond these essentials, the upper level boasts a Bonus room, adaptable to various needs, such as an additional bedroom, home office, playroom, or hobby room. If finished, it would add even more area to this plan. The outdoor living areas to the rear feature a Patio, perfect for barbecues and relaxation. The attached Garage offers ample space for vehicles, storage, and a workshop, conveniently connected to the Kitchen. This elegant three-bedroom home combines elegance, comfort, and functionality in a timeless design. With its welcoming facade, well-appointed interiors, and versatile spaces, it’s the perfect blend of warm appeal and convenience, offering a delightful base for creating your ideal living experience.

Questions on this plan?

New to the process and looking for some help to kick things off? Let us know a bit about your plans and we’ll be happy to help.

Budget & Customization Tools

Modify icon
Customize this Plan
Tell us about your desired changes and we can prepare an estimate.
Cost to Build icon
Cost to Build Report
A personalized estimate based on your location, plan, & materials.
Cost to Build icon
Residential Construction Guide
This downloadable, 26-page guide is full of diagrams and details about plumbing, electrical, and more.

Full specs & Features

Basic Features

Bedrooms: 3
Baths: 2
Stories: 2
Garages: 2

Dimension

Depth: 31'
Height: 25' 7"
Width: 58' 6"

Area

Total: 1466 sq/ft
Decks: 100 sq/ft
Garage: 410 sq/ft
Main Floor: 988 sq/ft
Optional Bonus Room: 200 sq/ft
Porch: 84 sq/ft
Upper Floor: 478 sq/ft
* Total Square Footage typically only includes conditioned space and does not include garages, porches, bonus rooms, or decks.

Ceiling

Main Ceiling: 8' 1"
Upper Ceiling Ft: 8' 1"

Roof

Primary Pitch: 12:12
Roof Framing: 2x
Roof Type: stick

Exterior Wall Framing

Exterior Wall Finish: siding
Framing: 2x4
Insulation: batt

Bedroom Features

Main Floor Master Bedroom
Split Bedrooms
Upstairs Bedrooms
Walk In Closet

Additional Room Features

Great Room Living Room
Unfinished Future Space
Upstairs Laundry

Garage Features

Side Entry Garage

Lot Characteristics

Suited For View Lot

Outdoor Spaces

Covered Front Porch

What's Included

All plans are drawn at ¼” scale or larger and include :

  • Foundation Plan: This page shows all necessary notations and dimensions including support columns, walls, and excavated/unexcavated areas.
  • Exterior Elevations: Views of the home from all four sides showing exterior materials and measurements.
  • Floor Plan(s): Detailed plans for each level showing room dimensions, wall partitions, windows and doors, etc.
  • Cross Section: A slice of the home from roof to foundation, showing important details like stairs and wall construction.
  • Overhead Roof Plan(s): A view of the home from above showing roof pitch, peaks, valleys, and other details.
  • Construction Notes and Details: Shows the builder how things come together, like walls, the chimney, insulation, and more.

FAQs

Are designs on Houseplans ready to submit to my building department for permitting?

It depends on where you're building. Our plans contain enough information for a professional builder to construct your home, but your local government may require additional information before permitting. We strongly advise that you talk with your builder before you get started. If you are building for yourself, we recommend visiting your local building department to start your diligence. Read more here.

Can I make changes to a plan?

Absolutely! Our modification service allows you to customize almost anything - whether it's adding an extra garage bay, adjusting square footage, changing the roof pitch, or more, the plan modification service is a great value and can be completed quickly. Additionally, if you purchase an electronic plan set (PDF or CAD), you may have the option to make changes locally. CAD files offer the most flexibility for custom edits. Just let us know what you're thinking, and we’ll provide an estimate and timeframe to get started. Learn more here.

How much does a house cost to build?

Find out! Build costs vary based on the size of the home, materials used, and local rates for goods and labor. Our Cost to Build report is a great way to get some basic costs dialed in before you order your plans. Just plug in your postal code, select your desired construction quality, and we'll calculate for you.

Learn more about Cost to Build reports here.

Can I trust Houseplans?

Founded in 2004, Houseplans works with hundreds of architects and designers to offer their plans at a fraction of the price of custom design. Houseplans has an "Excellent" rating on TrustPilot.

Read more about us here.

Does Houseplans offer live support?

Yes, Houseplans has a dedicated team of house plan advisors with decades of experience between them. You can reach them by calling, emailing, filling out a form on the page of a plan that you like, or going to the Contact Us page. We're available to talk every day, even on weekends.

Builder Advantage Home

Builder Advantage Program

Are you a Pro Builder? Join the club, save 5% on your first order, get exclusive discounts, and more.

Learn More

You may also like

Save Plan
Farmhouse

Plan 430-422

$1445.00

beds3

bd

baths2.5

ba

stories1

story

square feet2494

sq ft

Save Plan
Victorian

Plan 410-3612

$1166.00

beds4

bd

baths4.5

ba

stories2

stories

square feet3574

sq ft

Save Plan
Country

Plan 427-1

$897.60

beds3

bd

baths2.5

ba

stories2

stories

square feet1908

sq ft

Recently viewed plans

Exterior - Front Elevation for Farmhouse House Plan #30-355 - 3 bed, 2 bath
Save Plan

Plan 30-355

$1010.00

beds3

bd

baths2

ba

stories2

stories

square feet1466

sq ft

Exterior - Front Elevation for Cottage House Plan #126-269 - 2 bed, 1 bath
Save Plan

Plan 126-269

$1195.00

beds2

bd

baths1

ba

stories1

story

square feet951

sq ft

Exterior - Front Elevation for Farmhouse House Plan #932-34 - 3 bed, 2 bath
Save Plan

Plan 932-34

$1688.00

beds3

bd

baths2

ba

stories2

stories

square feet2200

sq ft

Exterior - Front Elevation for Farmhouse House Plan #1081-34 - 4 bed, 4.5 bath
Save Plan

Plan 1081-34

$1795.00

beds4

bd

baths4.5

ba

stories1

story

square feet3543

sq ft

Signature
Exterior - Rear Elevation for Farmhouse House Plan #928-373 - 3 bed, 3.5 bath
Save Plan

Plan 928-373

$1995.00

beds3

bd

baths3.5

ba

stories2

stories

square feet3181

sq ft