Farmhouse Style House Plan - 2 Beds 2 Baths 1480 Sq/Ft Plan #57-366 - Houseplans.com
Search
REGISTER LOGIN SAVED No Saved Plans CART  Cart Empty
Don't lose your saved plans! Create an account to access your saves whenever you want. See our Terms & Conditions and Privacy Policy.
OR
Plan 57-366
Photographs may show modified designs.
Home  >  Style  >  Farmhouse

Farmhouse House Plan 57-366

Key Specs


Plan Sq Ft

1480
sq ft

Plan Bedrooms

2
Beds

Plan Bathrooms

2
Baths

Plan Floors

1
Floors

Plan Garages

2
Garages

Questions? Get Personalized Help
Select Plan Set Options
What's included?
$150.00
Additional Construction Sets$50.00/each

Additional hard copies of the plan (can be ordered at the time of purchase and within 90 days of the purchase date).

$100.00
$39.00
$100.00
$125.00
$350.00
Subtotal
$949.00
Best Price Guaranteed

Or order by phone: 1-800-913-2350
Questions? Get Personalized Help
 

 
Hours:
Ready for Your Call 7 Days a Week
Every Day 7 am - 8:30 pm Eastern

See Terms & Conditions and Privacy Policy.

Thanks for your question.

We will be in touch shortly.

Wow!
Cost to Build Reports
$1.99 with Code
CTBFALL (Limit 1)
Our Cost to Build Report gives you a personalized estimate for building your home, based on your location, plan, and materials.

Residential Construction Guide

Learn Building Basics

This downloadable, 26-page guide is full of diagrams and details about plumbing, electrical, and more.

Key Specs


Plan Sq Ft

1480
sq ft

Plan Bedrooms

2
Beds

Plan Bathrooms

2
Baths

Plan Floors

1
Floors

Plan Garages

2
Garages

Plan Description


This farmhouse design floor plan is 1480 sq ft and has 2 bedrooms and 2 bathrooms.

This plan can be customized!

Tell us about your desired changes so we can prepare an estimate for the design service. Click the button to submit your request for pricing, or call 1-800-913-2350.

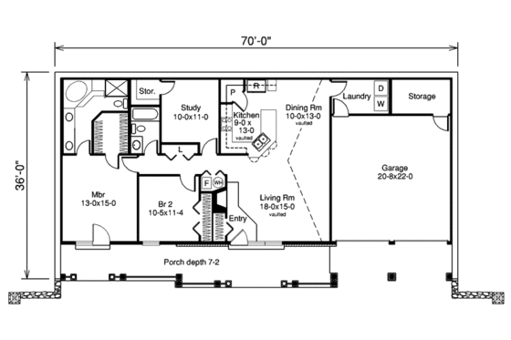
Floor Plans


Floor Plan - Main Floor

Reverse
houseplans LOGO

BUILDER Advantage Program

PRO BUILDERS

Join the club and save 5% on your first order.
PLUS download exclusive discounts and more.

LEARN MORE

Full Specs & Features


Basic Features

Bedrooms : 2
Baths : 2
Stories: 1
Garages: 2

Dimension

Depth : 36'
Height : 13' 2"
Width : 70'

Area

Total : 1480 sq/ft
First Floor: 1480 sq/ft height 8'
Garage: 453 sq/ft height 8'
Porch: 260 sq/ft
* Total Square Footage typically only includes conditioned space and does not include garages, porches, bonus rooms, or decks.

Ceiling

Main Ceiling : 8'

Roof

Primary Pitch : 8:12
Roof Framing : Truss
Roof Load : 40
Roof Type : shingle

Exterior Wall Framing

Exterior Wall Finish : stone veneer/siding
Framing : 2 x 6

Bedroom Features

Walk In Closet

Kitchen Features

Breakfast Nook
Eating Bar
Walk In Pantry Cabinet Pantry

Additional Room Features

Den Office Study Computer
Great Room Living Room
Storage Area

Garage Features

Front Entry Garage

Outdoor Spaces

Covered Front Porch

More

Empty Nester

Rooms

Bedroom 2:

width 10' 5" x depth 11' 4"

Dining:

width 10' x depth 13'

Garage:

453 sq/ft width 20' 8" x depth 22'

Kitchen:

width 9' x depth 13'

Living Room:

width 18' x depth 15'

Master Bedroom:

width 13' x depth 15'

Study:

width 10' x depth 11'

What's included in this plan set


See a sample plan set
Plans are typically drawn to ¼” scale and include:
  • Cover Sheet: The coversheet offers a rendering or visual representation of the front of the home. It also suggests a potential version of the architectural style, materials, and façade options to help the customer, builder, or customer’s HOA or building department visualize the final exterior.
  • Foundation Plan(s): The foundation plan is used to show how the foundation should be built. It explains the thickness of the foundation walls, floor joist sizes and spacing, column locations, window/door/vent locations and sizes, for basement plans potentially suggested furnace/water heater locations, plumbing (where required) and miscellaneous construction details related to the foundation and basement.
  • Floor Plan(s): The floor plans of the home indicate the layout/construction of eachfloor of the house. Items typically included are room dimensions, wall sizes, plumbingelectrical locations, stair locations, door/window sizes, kitchen and bath layouts, ceilingconditions in each space, flooring, structural information and any special conditionsrelated to the floor plan.
  • Exterior Elevations: The elevation sheets communicate the material/dimensions that the designer envisioned, creating the correct look and feel on the outside of the house. Some of the items typically shown on an elevation sheet include materials used on the exterior of the house, size and shape of windows and doors, size and shape of vents, size of the trim, height and dimensions of various elements, depth of foundations, types of shingles and moldings, pitch of the roof, placement of materials (example: brick soldier course, brick quoins, etc.), and possibly a roof plan ( “bird’s eye” view showing the roof slopes, ridges, valleys and any saddles) and/ or the location of gutters and downspouts.
  • Interior Elevations: The details , sections, and interior elevations sheets provide enlarged, precise, and focused drawings of specific construction elements that cannot be fully or clearly explained at the standard scale used in the floor plan. They often zoom-in or dissect important or complex parts of the design, showing exactly how those elements are built, joined, or finished such as walls, drainage, framing, material junctions, stair handrails, or built-ins and cabinetry. They are essential for accuracy, compliance, and construction quality.
  • Overhead Roof Plan(s): A view of the home from above showing roof pitch, peaks, valleys, and other details.
  • Cross Section(s): A slice of the home from roof to foundation, showing relationships between floors, roof, and foundation.
  • Construction Notes / Detail(s): Shows basic parts and assemblies recommended for the home so the builder can see how things come together.
* See important information before purchasing

Pricing


Plan Options

5 Copy Set

$949.00
5 printed plan sets mailed to you.

PDF Set

Best Value!
$949.00
PDF plan sets are best for fast electronic delivery and inexpensive local printing.

5 Copy and PDF Set

$1049.00
5 printed plan sets mailed to you plus PDF plan sets are best for fast electronic delivery and inexpensive local printing.

PDF Unlimited Build

$1299.00
PDF plan sets are best for fast electronic delivery and inexpensive local printing.

Five Copy and PDF Set Unlimited Build

$1399.00
5 printed plan sets mailed to you plus PDF plan sets are best for fast electronic delivery and inexpensive local printing.

CAD and PDF Set

$1449.00
For use by design professionals to make substantial changes to your house plan and inexpensive local printing plus PDF plan sets are best for fast electronic delivery and inexpensive local printing.

CAD Set

$1449.00
For use by design professionals to make substantial changes to your house plan and inexpensive local printing.

CAD and PDF Set Unlimited Build

$1799.00
For use by design professionals to make substantial changes to your house plan and inexpensive local printing plus PDF plan sets are best for fast electronic delivery and inexpensive local printing.

CAD Unlimited Build

$1799.00
For use by design professionals to make substantial changes to your house plan and inexpensive local printing.

Foundation Options

Slab

$0.00
Ideal for level lot, single layer concrete poured directly on grade.

*Options with a fee may take time to prepare. Please call to confirm.

Framing Options

Wood 2x6

$0.00
Wood 2x6 Exterior Walls

*Options with a fee may take time to prepare. Please call to confirm.

Additional Options

Right-Reading Reverse

$150.00
Choose this option to reverse your plans and to have the text and dimensions readable.

Additional Construction Sets

$50.00
Additional hard copies of the plan (can be ordered at the time of purchase and within 90 days of the purchase date).

Audio Video Design

$100.00
Receive an overlay sheet with suggested placement of audio and video components.

Construction Guide

$39.00
Educate yourself about basic building ideas with these four detailed diagrams that discuss electrical, plumbing, mechanical, and structural topics.

Lighting Design

$100.00
Receive an overlay sheet with suggested placement of lighting fixtures.

Material List

$125.00
A spreadsheet of building supplies needed to construct the infrastructure of your new house. Please note materials lists will not reflect add-ons such as alternate foundation and framing options.

Unlimited Use License

$350.00
Allows you to build this home as many times as you want.

*Options with a fee may take time to prepare. Please call to confirm.

Unless you buy an “unlimited” plan set or a multi-use license you may only build one home from a set of plans. Please call to verify if you intend to build more than once. Plan licenses are non-transferable and cannot be resold.

Need help? Let our friendly experts help you find the perfect plan!

Contact us now for a free consultation.

Coupon Codes