Farmhouse Style House Plan - 3 Beds 2 Baths 1526 Sq/Ft Plan #430-405 - Houseplans.com
Search
REGISTER LOGIN SAVED No Saved Plans CART  Cart Empty
Don't lose your saved plans! Create an account to access your saves whenever you want. See our Terms & Conditions and Privacy Policy.
OR
Plan 430-405
Photographs may show modified designs.
Home  >  Style  >  Farmhouse

Farmhouse House Plan 430-405

Key Specs


Plan Sq Ft

1526
sq ft

Plan Bedrooms

3
Beds

Plan Bathrooms

2
Baths

Plan Floors

1
Floors

Plan Garages

2
Garages

Questions? Get Personalized Help
Select Plan Set Options
What's included?
$225.00
Additional Construction Sets$100.00/each

Additional hard copies of the plan (can be ordered at the time of purchase and within 90 days of the purchase date).

$495.00
$165.00
$39.00
$250.00
Subtotal
$1345.00
Best Price Guaranteed

Or order by phone: 1-800-913-2350
Questions? Get Personalized Help
 

 
Hours:
Ready for Your Call 7 Days a Week
Every Day 7 am - 8:30 pm Eastern

See Terms & Conditions and Privacy Policy.

Thanks for your question.

We will be in touch shortly.

Wow!
Cost to Build Reports
$1.99 with Code
CTBFALL (Limit 1)
Our Cost to Build Report gives you a personalized estimate for building your home, based on your location, plan, and materials.

Residential Construction Guide

Learn Building Basics

This downloadable, 26-page guide is full of diagrams and details about plumbing, electrical, and more.

Key Specs


Plan Sq Ft

1526
sq ft

Plan Bedrooms

3
Beds

Plan Bathrooms

2
Baths

Plan Floors

1
Floors

Plan Garages

2
Garages

Plan Description


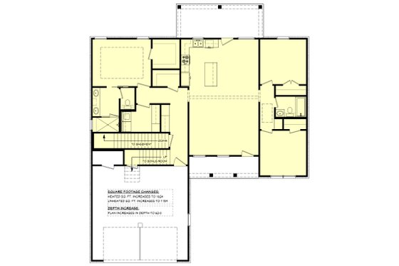
Welcome to your dream home—modern farmhouse charm meets budget-friendly design. This beautifully crafted 3-bedroom, 2-bath home offers the perfect blend of style, comfort, and functionality. Step into an open-concept floor plan where the kitchen, dining, and living areas flow seamlessly beneath a stunning vaulted ceiling—ideal for both everyday living and entertaining. The private main suite serves as a serene retreat, featuring a spacious walk-in closet and a luxurious bathroom with a custom tile shower. Two additional bedrooms and a full bathroom provide plenty of room for family, guests, or hobbies. Need more space? The unfinished bonus room over the garage gives you the flexibility to create a home office, playroom, or guest suite—customized to your needs. This home blends timeless farmhouse style with modern conveniences—ideal for families looking for comfort, flexibility, and room to grow.

This plan can be customized!

Tell us about your desired changes so we can prepare an estimate for the design service. Click the button to submit your request for pricing, or call 1-800-913-2350.

Floor Plans


Floor Plan - Main Floor

Reverse
houseplans LOGO

BUILDER Advantage Program

PRO BUILDERS

Join the club and save 5% on your first order.
PLUS download exclusive discounts and more.

LEARN MORE

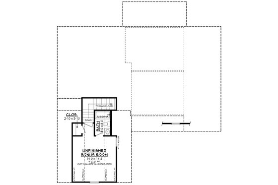
Floor Plan - Upper Floor

Reverse

Floor Plan - Other Floor

Reverse

Full Specs & Features


Basic Features

Bedrooms : 3
Baths : 2
Stories: 1
Garages: 2

Dimension

Depth : 59'
Height : 25'
Width : 53'

Area

Total : 1526 sq/ft
Bonus : 320 sq/ft
Garage : 559 sq/ft
Main Floor : 1526 sq/ft
Porch : 250 sq/ft
Storage : 31 sq/ft
* Total Square Footage typically only includes conditioned space and does not include garages, porches, bonus rooms, or decks.

Ceiling

Bonus Ceiling : 9'
Garage Ceiling : 9'
Main Ceiling : 9'
Upper Ceiling Ft : 0"

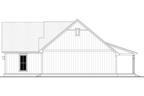
Roof

Primary Pitch : 10:12
Roof Type : stick
Secondary Pitch : 12:12, 4:12

Exterior Wall Framing

Exterior Wall Finish : board & batten with brick skirt
Framing : 2x4

Bedroom Features

Guest Suite
Main Floor Bedrooms
Main Floor Master Bedroom
Split Bedrooms
Walk In Closet

Kitchen Features

Breakfast Nook
Eating Bar
Kitchen Island
Walk In Pantry Cabinet Pantry

Additional Room Features

Great Room Living Room
Main Floor Laundry
Mud Room
Storage Area
Unfinished Future Space

Garage Features

Front Entry Garage

Outdoor Spaces

Covered Front Porch
Covered Rear Porch

More

Economical To Build
Empty Nester
Wheelchair Adaptable

Energy Efficient Features

Energy Efficient Design

What's included in this plan set


See a sample plan set
Plans are typically drawn to ¼” scale and include:
  • Cover Sheet: Drawing index, designer contact info, plan name/number, legal disclaimers.
  • Foundation Plan(s): This page shows all necessary notations and dimensions including footings, support columns, walls, and excavated/unexcavated areas.
  • Floor Plan(s): Detailed plans for each level showing room dimensions, wall partitions, windows and doors, fixture locations, and ceiling treatments.
  • Exterior Elevations: Views of the home from all four sides showing exterior materials, roof slope, ridge heights, siding and trim notes.
  • Interior Elevations: Detailed drawings of kitchen cabinet elevations and other elements like built-ins.
  • Overhead Roof Plan(s): A view of the home from above showing roof pitch, peaks, valleys, and other details.
  • Cross Section(s): A slice of the home from roof to foundation, showing relationships between floors, roof, and foundation.
  • Electrical Plan(s): Shows the location of lights, receptacles, switches, etc. Some plans that do not include an electrical plan may have it available for an additional fee.
  • Construction Notes and Detail(s): Shows basic parts and assemblies recommended for the home so the builder can see how things come together.
  • Stair Detail(s): Drawings showing stair details.

*Material List Note: When a material list is ordered, a list of the materials needed to build this plan will be sent. Please note that the materials list will conform to the standard plan (slab or crawlspace only). Additional options such as a Basement or 2x6 Wall conversion will not be reflected in the material list. Please call for details.


Note about 2x6 Wall Option: If choosing the 2x6 wall option, the added stud depth will be applied towards the interior of the walls.

* See important information before purchasing

Pricing


Plan Options

PDF Set

Best Value!
$1345.00
PDF plan sets are best for fast electronic delivery and inexpensive local printing.

5 Copy and PDF Set

$1595.00
5 printed plan sets mailed to you plus PDF plan sets are best for fast electronic delivery and inexpensive local printing.

PDF Unlimited Build

$2045.00
PDF plan sets are best for fast electronic delivery and inexpensive local printing.

CAD Unlimited Build

$2445.00
For use by design professionals to make substantial changes to your house plan and inexpensive local printing.

Foundation Options

Slab

$0.00
Ideal for level lot, single layer concrete poured directly on grade.

Crawlspace

$100.00
Ideal for semi-sloped or level lot, home can be built off of grade, typically 18” - 48”.

Basement

$395.00
Ideal for level lot, lower level of home partially or fully underground.

Walk Out Basement

$395.00
Ideal for a sloping lot, lower level with outdoor access.

*Options with a fee may take time to prepare. Please call to confirm.

Framing Options

Wood 2x4

$0.00
Wood 2x4 Exterior Walls

Wood 2x6

$325.00
Wood 2x6 Exterior Walls

*Options with a fee may take time to prepare. Please call to confirm.

Additional Options

Right-Reading Reverse

$225.00
Choose this option to reverse your plans and to have the text and dimensions readable.

Additional Construction Sets

$100.00
Additional hard copies of the plan (can be ordered at the time of purchase and within 90 days of the purchase date).

Additional Use License

$495.00
Allows you to build one more home for each additional license purchased.

Audio Video Design

$165.00
Receive an overlay sheet with suggested placement of audio and video components.

Construction Guide

$39.00
Educate yourself about basic building ideas with these four detailed diagrams that discuss electrical, plumbing, mechanical, and structural topics.

Material List

$250.00
A spreadsheet of building supplies needed to construct the infrastructure of your new house. Please note materials lists will not reflect add-ons such as alternate foundation and framing options.

*Options with a fee may take time to prepare. Please call to confirm.

Unless you buy an “unlimited” plan set or a multi-use license you may only build one home from a set of plans. Please call to verify if you intend to build more than once. Plan licenses are non-transferable and cannot be resold.

Other Plans By This Designer

See all plans by
this designer

Need help? Let our friendly experts help you find the perfect plan!

Contact us now for a free consultation.